1. AnbieterArrow Icon
  2. KAMPAArrow Icon
  3. Kundenhaus in Ellwangen
Slide 1
Slide 2
Slide 3
Slide 4
Slide 5
Slide 6
KAMPA_Logo.jpg
KAMPAKundenhaus in Ellwangen
homeKlassische Familienhäuser
livingArea170 m²
energyStandardEffizienzhaus 40 Plus
Preis anfragen
Katalog bestellen

Kundenhaus in Ellwangen

WIR SIND SELBSTVERSORGER! 

Schön, wenn junge Baufamilien Verantwortung übernehmen: für sich, für die nächste Generation und für die Umwelt. Ohne Komfortverzicht – mit einem Zugewinn an (finanzieller) Freiheit.

Nicht am falschen Ende sparen
Realisiert hat das Paar sein Traumhaus mit dem Premiumhersteller Kampa. Dabei spielte ihnen die regionale Nähe in den Karten. Nur rund 20 Kilometer trennen das Grundstück vom Sitz des Unternehmens in Aalen-Waldhausen, wo auch das Bemusterungszentrum beheimatet ist. Die erwiesenermaßen sehr gute Bauqualität sowie die Firmenphilosophie vom „Selbstversorger mit echter Plusenergie“ haben die Bauherren sofort angesprochen. „Uns war wichtig, in die Zukunft zu investieren, in eine Technologie, die uns eine größtmögliche Unabhängigkeit von Stromversorgern garantiert und in einen Baustoff, der nachwächst“, sagt der Bauherr, und ist überzeugt: „Nur wer heute schon im Standard von morgen baut.“ , kann langfristig sorgenfrei und ruhig Gewissens wohnen.“ Smart Home erwies sich ebenfalls als ein großes Thema, das vor allem den Bauherren begeisterte: Neben der Steuerung der Heizung lassen sich die Haushaltsgeräte wie Spül- und Waschmaschine, die Rollläden oder der Herd per App auch von unterwegs bedienen. „Das ist mehr als nur eine Spielerei und tatsächlich hilfreich und komfortabel“, findet mittlerweile auch die Bauherrin.

 

Flexibel bleiben
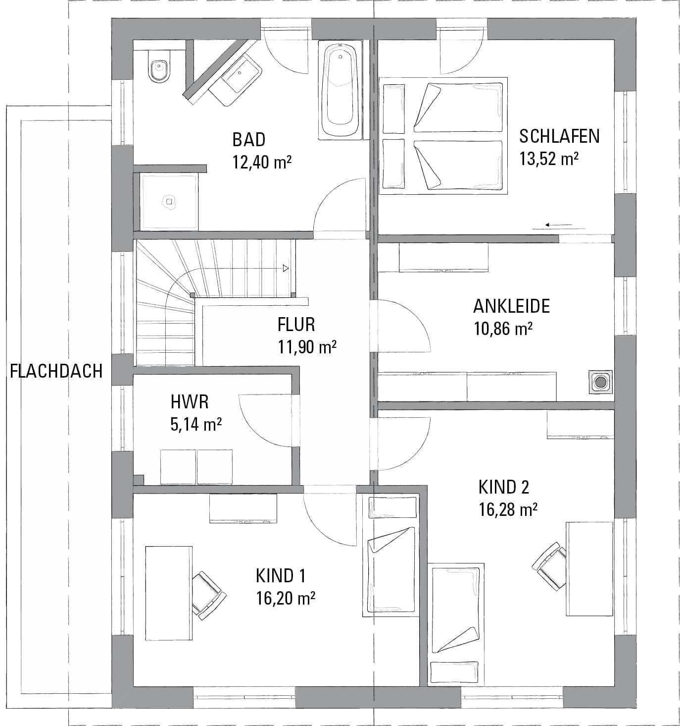
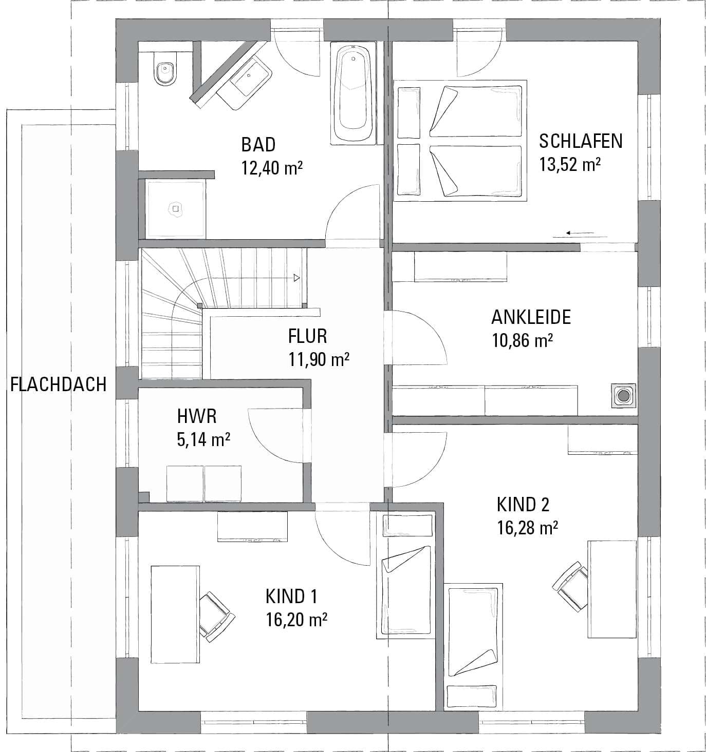
Bezüglich des Grundrisses haben die beiden ebenfalls schon an später gedacht: zwei Räume im Obergeschoss ihres knapp 170 Quadratmeter großen Hauses können bei Familienzuwachs als Kinderzimmer genutzt werden. Das Bad – ausgestattet mit Wanne und bodengleicher Dusche – ist mit gut 12 Quadratmetern großzügig gestaltet, und am langen Waschtisch würden Eltern und Kids Platz finden. Im repräsentativen Erdgeschoss legt das Paar Wert auf Offenheit, die sich auch in den großen Glasflächen auf der Terrassenseite widerspiegelt. Diese bieten nicht nur Ausblick, sondern holen gleichzeitig die Natur ins Haus. Küche, Esstisch und Sofa-TV-Ecke sind in L-Form zueinander angeordnet. „Von der Couch aus hat man keinen direkten Blick in den Arbeitsbereich der Küche. Das ist praktisch, so müssen wir nicht immer sofort alles Kochgeschirr beseitigen“, freut sich die Bauherrin. Der Kochbereich ist durch einen Küchentresen optisch vom Essplatz separiert. Nützlichen, zusätzlichen Stauraum bietet die Speisekammer im hinteren Teil der Küche.

Ein Text der biz Verlag GmbH

Hausdaten

Hausart Icon
HausartEinfamilienhaus
Bauweise Icon
BauweiseHolz-Tafelbau
Baustil Icon
BaustilKlassische Familienhäuser
Fassade Icon
FassadePutz
Wohnfläche Icon
Wohnfläche170 m²
Dachform Icon
DachformSattel-/Giebeldach
Energiestandard Icon
EnergiestandardEffizienzhaus 40 Plus
Immobilientyp Icon
ImmobilientypKundenhaus
Hauseigenschaften Icon
HauseigenschaftenGästezimmer
Heizungsart Icon
HeizungsartWärmepumpe (Luft, Wasser, oder beides)
Pfeil nach unten linksWir schaffen Platz für Ihre Träume

Grundriss

no description
Kundenhaus in Ellwangen Grundriss (EG)
no description
Kundenhaus in Ellwangen Grundriss (DG)

Unser Team vor Ort

Jürgen LehnertFachberater*in bei KAMPA
7366_lehnert_juergen
Wir beraten Sie gerne!Arrow Icon

Kataloge

KAMPA: Hauskatalog
KAMPA

KAMPA: Hauskatalog


House and TreeParksHouse and PinMusterhausHouse on HandAnbieter