1. AnbieterArrow Icon
  2. KAMPAArrow Icon
  3. Kundenhaus im Ostalbkreis
Slide 1
Slide 2
Slide 3
Slide 4
Slide 5
Slide 6
Slide 7
Slide 8
Slide 9
Slide 10
Slide 11
KAMPA_Logo.jpg
KAMPAKundenhaus im Ostalbkreis
homeKlassische Familienhäuser
livingArea163 m²
energyStandardEffizienzhaus 40 Plus
Preis anfragen
Katalog bestellen

Kundenhaus im Ostalbkreis

Ein Nest für jetzt und später

Papa, Papa, Kind Die Bauherren, die sich gerne als kleine Regenbogenfamilie bezeichnen, sind stolz auf ihr neues Traum-Zuhause. Sie ließen schlüsselfertig bauen. So blieb der Kopf frei für Berufliches – und für die Innengestaltung.

Sebastian (32) und Florian (37) haben ihren Traum vom eigenen Haus am östlichen Rand der schwäbischen Alb verwirklicht. 163 Quadratmeter moderne Wohnfläche unter einem klassischen Satteldach und hinter einer grünen Eingangsüberdachung. Da beide Bauherren voll berufstätig sind – ihre kleine Tochter war zu Planungsbeginn noch nicht auf der Welt – stand von Anfang an fest: „Wir bauen schlüsselfertig, wünschen uns einen verlässlichen Fertigstellungstermin und benötigen einen Keller für zusätzlichen Stau- und Lebensraum.“

Freier wohnen
Das Ehepaar hatte zuvor in einer Eigentumswohnung gelebt. „Die war zwar schön, allerdings waren wir dort nie allein. Nachbarn über uns, Nachbarn unter uns. Das haben wir immer als störend Empfunden“, erzählt Sebastian. „Und wir wünschten uns unseren ganz persönlichen Ort, an dem wir eine Familie gründen und zusammen alt werden möchten“.

Gewünscht – gesucht – gefunden
Nachbarn legten Sebastian und Florian den Premiumhersteller Kampa ans Herz. Dieser wurde genauestens unter die Lupe genommen und bestand den Test in jeder Hinsicht: bezüglich der Nachhaltigkeit, der Bauqualität, Architektur sowie der großen Auswahl an bereits im Standard inkludierten Produkten in der Bemusterung. Zu guter Letzt war noch ausschlaggebend, dass Kampa Haus und Keller schlüsselfertig anbietet. Alles aus einer Hand, sodass sich die Baufamilie aus der Koordination und Organisation unterschiedlicher Gewerke komplett heraushalten konnte.

Magic Moments
An zwei ganz besondere Gegebenheiten denken die beiden gerne zurück. „Es war ein harter Winter“, erinnert sich Sebastian. „Kurz vor dem Aufbau-Termin entwickelte sich auf unserer Bodenplatte eine 30 Zentimeter dicke Eisschicht. Panik! Wir hatten Sorge, dass unser Haus nicht gestellt werden kann. Zum Glück eilten Freunde und auch unsere Nachbarn herbei und halfen uns, das Eis zu entfernen. Es war ein schönes Gefühl, so viel Teamwork und Hilfsbereitschaft zu erleben.“

Auch Florian hat eine besondere Erinnerung an die Hausbauphase: „Wir besuchten die Produktion, als unsere Wände gefertigt wurden. Das war schon ein sehr emotionaler Moment für mich. Eine unserer Wände durften wir beschriften. Bei Hausstellung fanden wir diese in unserer Küche wieder. Da wurde mir noch einmal bewusst: Das ist unser Zuhause für immer.“

Ein Text der biz Verlag GmbH 

Hausdaten

Hausart Icon
HausartEinfamilienhaus
Bauweise Icon
BauweiseHolz-Tafelbau
Baustil Icon
BaustilKlassische Familienhäuser
Fassade Icon
FassadePutz
Außenmaße Icon
Außenmaße10.95 m x 9.65 m
Wohnfläche Icon
Wohnfläche163 m²
Dachform Icon
DachformSattel-/Giebeldach
Energiestandard Icon
EnergiestandardEffizienzhaus 40 Plus
Immobilientyp Icon
ImmobilientypKundenhaus
Hauseigenschaften Icon
HauseigenschaftenTerasse
Heizungsart Icon
HeizungsartWärmepumpe (Luft, Wasser, oder beides)
Pfeil nach unten linksWir schaffen Platz für Ihre Träume

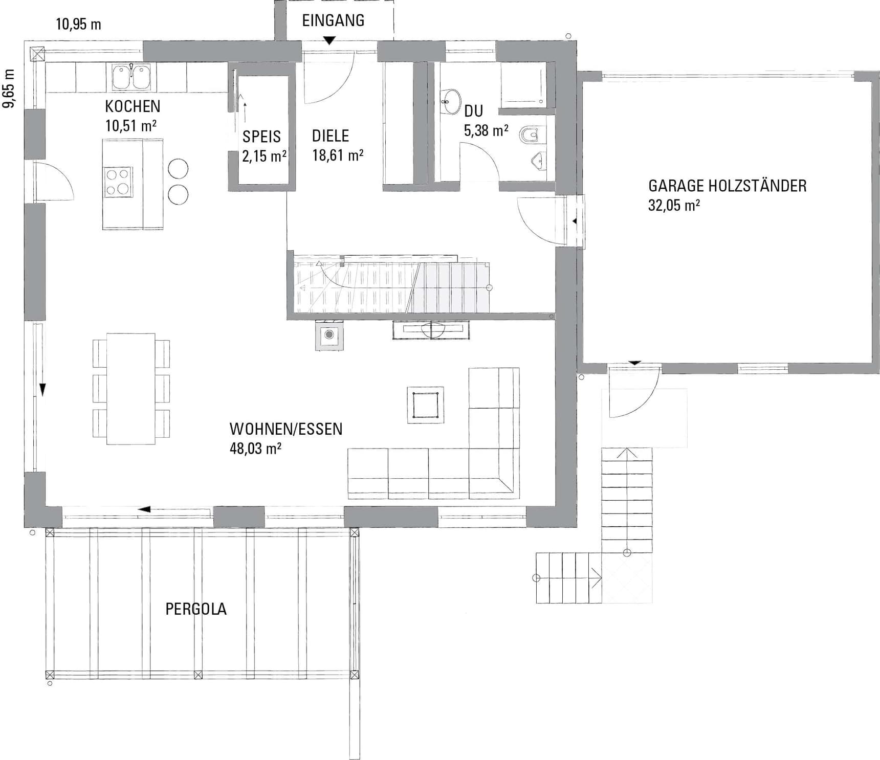
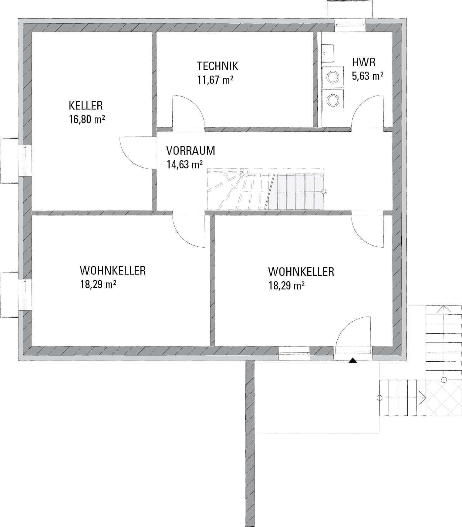
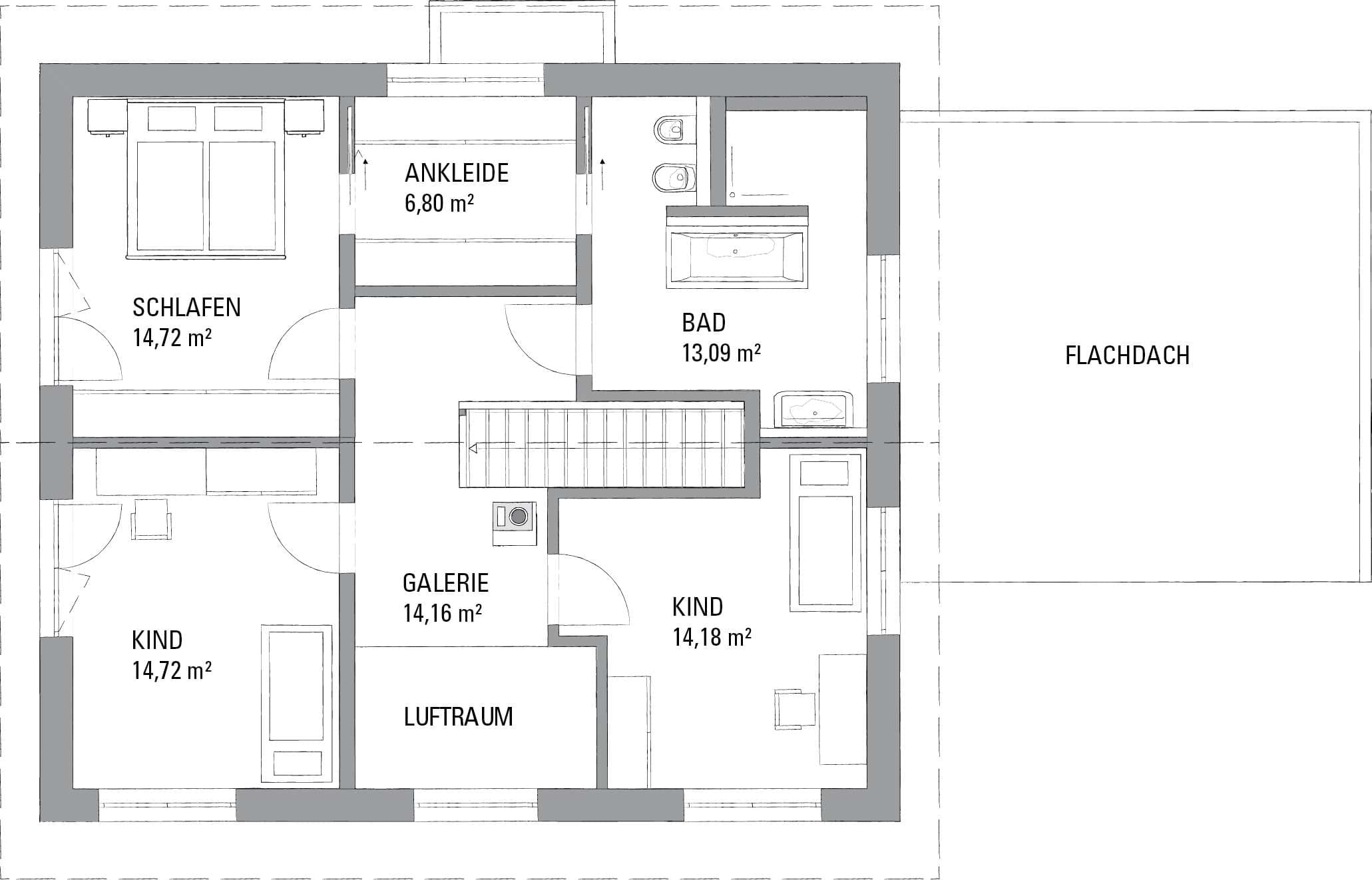
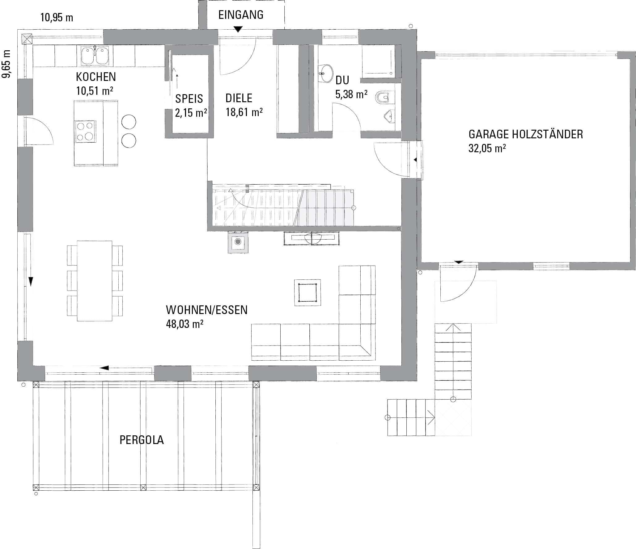
Grundriss

no description
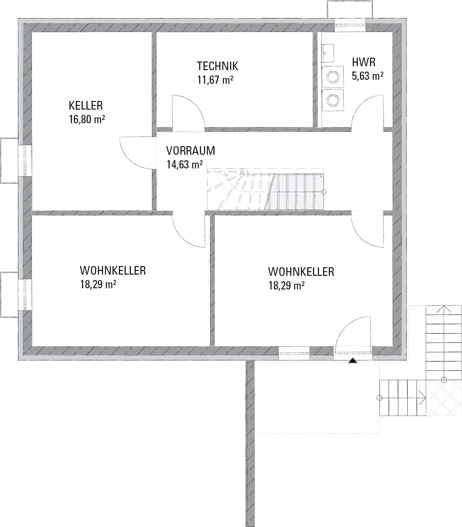
Kundenhaus im Ostalbkreis Grundriss (Keller)Wohnfläche KG: 85,31 m²
no description
Kundenhaus im Ostalbkreis Grundriss (EG)Wohnfläche EG: 84,68 m²
no description
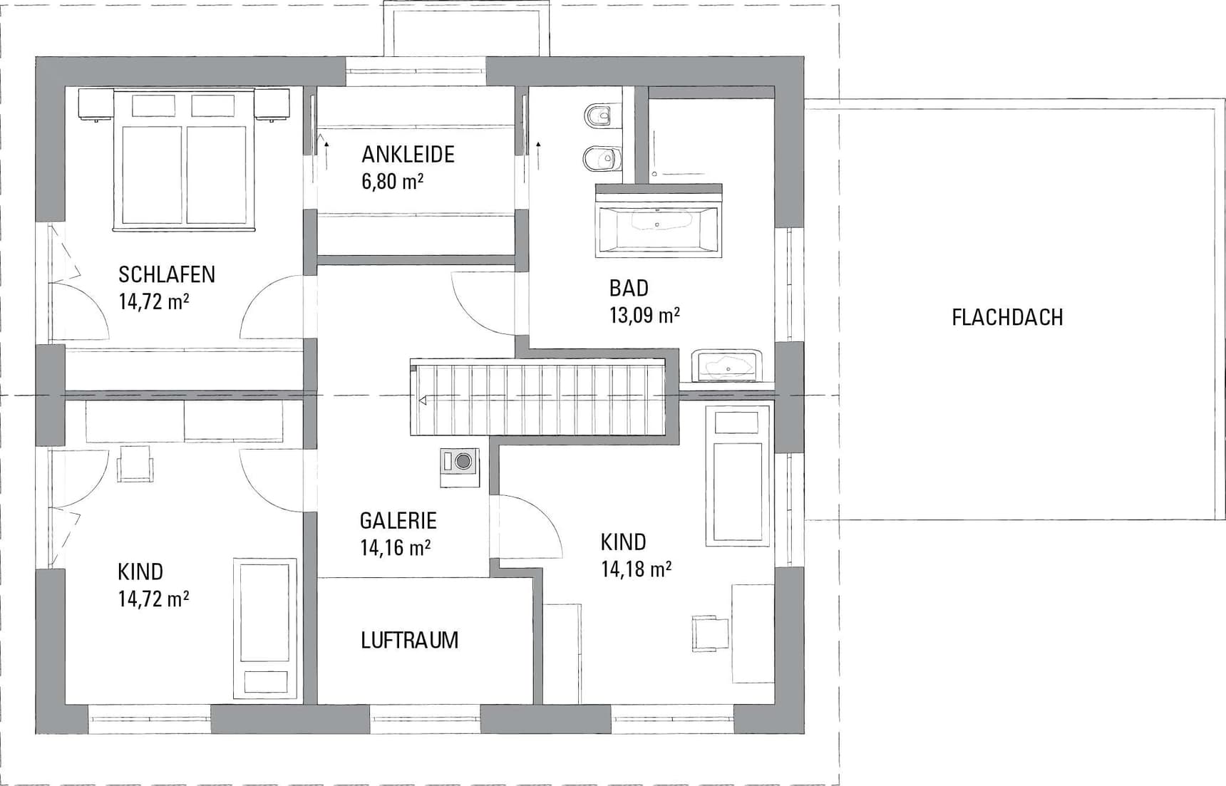
Kundenhaus im Ostalbkreis Grundriss (OG)Wohnfläche OG: 77,67 m²

Unser Team vor Ort

Jürgen LehnertFachberater*in bei KAMPA
7366_lehnert_juergen
Wir beraten Sie gerne!Arrow Icon

Kataloge

KAMPA: Hauskatalog
KAMPA

KAMPA: Hauskatalog


House and TreeParksHouse and PinMusterhausHouse on HandAnbieter