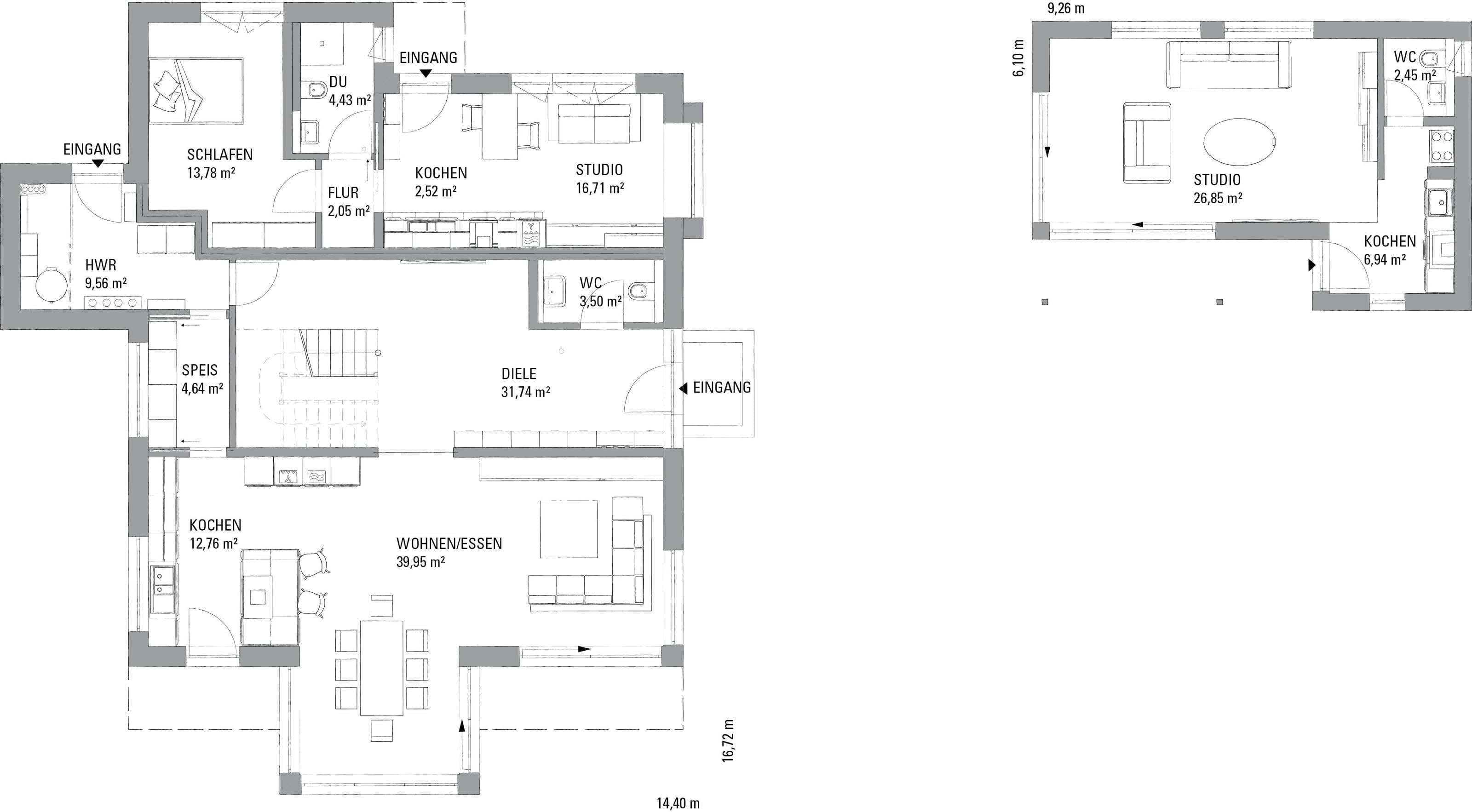
Das als Musterhaus Mühlenbeck konzipierte Ensemble im brandenburgischen Mühlenbeck ist weit mehr als nur ein Musterhaus: Das Ensemble umfasst ein zweigeschossiges Musterhaus mit einer Wohnfläche von insgesamt rund
220 m² inkl. einer in sich geschlossenen, separat zugänglichen Einliegerwohnung. Ein Tiny House, hier präsentiert als Homeoffice mit WC und Teeküche, komplettiert die Gesamtanlage. Neben Dialog und Information steht die Inspiration an erster Stelle:
Das KAMPA Begegnungszentrum Bauen der Zukunft in Mühlenbeck liefert zahlreiche Ideen und Anregungen für das persönliche KAMPA Traumhaus!
Durchdachte Raumkonzepte bieten vielseitige Möglichkeiten
Das Musterhaus mit Einliegerwohnung – ein Satteldachhaus der Linie LANOS – zeichnet sich ebenso wie das Tiny House durch eine elegante, moderne Architektursprache aus und zeigt anschaulich, wie Wohnen im Mehrgenerationenhaus aussehen kann. Das Musterhaus präsentiert sich mit einem barrierefrei zugänglichen Entree, einer designstarken Podesttreppe und einer großzügigen, lichtdurchfluteten Wohnen-Kochen-Essen-Zone mit stylischer Küche und Tresen. Das Obergeschoss ist geprägt von fließenden Übergängen, einem Elternbereich mit eigenem Zugang zum Balkon und einem einzigartigen Blick vom Bett über das begrünte Flachdach in die Natur. Alle Badezimmer spielen mit unterschiedlichen Design- und Farbthemen und verfügen über bodenebene Duschnischen.
Damit Jung und Alt unter einem Dach leben können ohne auf Privatsphäre verzichten zu müssen, verfügt die ca. 40 m² große Einliegerwohnung über eine separate Eingangstür. Die eigenständige Wohneinheit punktet mit einladender Wohnküche und
einem gemütlichen Sitzfenster. In Kombination mit einem geräumigen Schlafzimmer und einem Bad inklusive bodenebener Dusche mit Tageslicht bietet die Einliegerwohnung ausreichend Platz und Komfort.
Dass KAMPA auch das Wohnen im Garten schöner macht, stellt das ca. 37 m² große Tiny House mit Studio, WC und Kochzeile unter Beweis. Es kann als Homeoffice, Gästehaus oder Fitnessraum genutzt werden oder einfach als perfekter Rückzugsort für die Auszeit im Grünen.
Inspirierendes Designkonzept
Sämtliche Badezimmer in Haupt- und Einliegerwohnung sowie im Tiny House spielen mit ganz unterschiedlichen Design- und Farbthemen. Für den Wow-Effekt sorgt die auffallende Wandgestaltung mit modernen Dekorfliesen, die – fein abgestimmt auf die
exklusiven Oberflächen der Armaturen – Motive aus der Natur zeigen.
Lichtgestaltung, Badmöbel sowie die Spiegelauswahl dienen nicht nur der Funktionalität, sondern runden das stimmige Gesamtbild ab. Bei allen Wohneinheiten fällt der sehr hohe Standard der Ausstattung sofort ins Auge und macht Lust auf die
Gestaltung des individuellen Wohntraums. Echtes Plus: Möbel, Fliesen und sogar die Beleuchtung können über KAMPA bezogen werden.






