1. AnbieterArrow Icon
  2. Haas Fertigbau GmbHArrow Icon
  3. Musterhaus Hessdorf 169
Slide 1
Location Icon
Slide 2
Location Icon
Slide 3
Location Icon
Slide 4
Location Icon
Slide 5
Location Icon
Slide 6
Location Icon
Slide 7
Location Icon
Haas_Logo.png
Haas Fertigbau GmbHMusterhaus Hessdorf 169
homeKlassische Familienhäuser
livingArea251 m²
energyStandardEffizienzhaus 40
Preis anfragen

Musterhaus Hessdorf 169

Mehrgenerationenhaus mit viel Licht

Viel Glas, viel Licht, viel Sonne und eine variantenreiche Raumgestaltung! Das Mehrgenerationenhaus  Haas MH Heßdorf 169 zeigt, wie flexibel Wohnraum in einem modernen Fertighaus genutzt werden kann. Ein offenes Foyer verbindet das Haupthaus mit einem großzügigen Anbau. Dieser kann als eigenes Büro für Selbstständige dienen oder Platz für Gäste, Kinder, Großeltern und das Hobby bieten. Natürlich lässt sich der Anbau des Musterhauses mit eigenem Eingang auch als Einliegerwohnung vermieten – eine perfekte Einnahmequelle! Vereinbaren Sie einen Beratungstermin und informieren Sie sich zu den Möglichkeiten des Hausbaus mit Haas Haus.

Weitere Informationen zum Fertighaus Haas MH Hessdorf 169 von Haas Haus. Dieses und weitere Musterhäuser von Haas Haus finden Sie mit den aktuellen Öffnungszeiten auf unserer Website.

Hausdaten

Hausart Icon
HausartObjektbau
Bauweise Icon
BauweiseHolz-Tafelbau
Anzahl Räume Icon
Anzahl Räume7
Baustil Icon
BaustilKlassische Familienhäuser
Fassade Icon
FassadePutz
Außenmaße Icon
Außenmaße10.97 m x 9.48 m
Wohnfläche Icon
Wohnfläche251.36 m²
Dachform Icon
DachformSattel-/Giebeldach
Energiestandard Icon
EnergiestandardEffizienzhaus 40
Immobilientyp Icon
ImmobilientypMusterhaus
Dachneigung Icon
Dachneigung45°
Kniestock Icon
Kniestock0.64 m
Hauseigenschaften Icon
HauseigenschaftenEinliegerwohnung
Hausdämmstoff Icon
HausdämmstoffMineralfaser (Glaswolle, Steinwolle)
Heizungsart Icon
HeizungsartWärmepumpe (Luft, Wasser, oder beides)
Pfeil nach unten linksWir schaffen Platz für Ihre Träume

Grundriss

Grundriss Erdgeschoss Haas Musterhaus Hessdorf: Offener Wohn-Essbereich, Küche, Arbeitszimmer, Windfang und WC
Musterhaus Hessdorf 169 Grundriss (EG)Wohnfläche EG: 126,77 m²
Bitte gib mir eine SEO-optimierte Meta-Beschreibung von diesem Bild und gib mir nur die Haupt-Bildbeschreibung
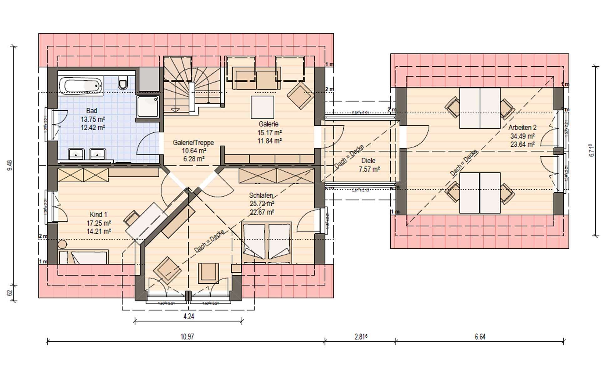
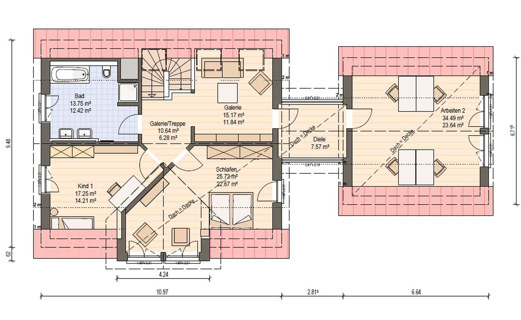
Musterhaus Hessdorf 169 Grundriss (DG)Wohnfläche DG: 124,59 m²

Öffnungszeiten

Montag:Geschlossen
Dienstag:Geschlossen
Mittwoch:09:00 - 16:00 Uhr
Donnerstag:09:00 - 16:00 Uhr
Freitag:09:00 - 16:00 Uhr
Samstag:09:00 - 16:00 Uhr
Sonntag:09:00 - 16:00 Uhr

(öffnet Mittwoch um 13:00 Uhr)

Christi Himmelfahrt
10:00 - 17:00 Uhr

Adresse

Im Gewerbepark 30
Heßdorf 91093

Anfahrt planen

Beratungstermin

Fertighaus Team in Heßdorf

Musterhaus Hessdorf 169

360°Rundgang starten
no description

Unser Team vor Ort

Haas Haus Team HeßdorfFachberater*in bei Haas Fertigbau GmbH
Default Avatar
Wir beraten Sie gerne!Arrow Icon
House and TreeParksHouse and PinMusterhausHouse on HandAnbieter