1. AnbieterArrow Icon
  2. Haas Fertigbau GmbHArrow Icon
  3. Die Neuerfindung von Zuhause.
Slide 1
Slide 2
Slide 3
Slide 4
Haas_Logo.png
Haas Fertigbau GmbHDie Neuerfindung von Zuhause.
homeSchwedenhäuser
livingArea130 m²
Preis anfragen
Katalog bestellen

Die Neuerfindung von Zuhause.

Sigurd Larsen x Haas

Rückzugsort mit Weitblick

The Panorama House setzt auf eine erhöhte Bauweise und schwebt quasi über dem Gelände. Diese besondere Position bietet nicht nur eine spektakuläre Aussicht, sondern löst zugleich potenzielle Herausforderungen bei hügeligem, felsigem oder feuchtem Untergrund.


Erhöhte Bauweise für einzigartige Perspektiven

Auf stabilen Pfeilern errichtet, bietet das Haus eine ideale Lösung für schwierige Grundstücke. Große Panoramafenster im Hauptraum lassen Sie mitten in der Natur wohnen – mit optimalem Schutz und unvergleichlichem Ausblick.
 

Wärme und Funktionalität vereint

Der zentrale Wohnbereich mit Kamin und offen gestalteter Küche wird zum Herzstück des Hauses. Ein abgesenkter Sitzbereich schafft zusätzliche Geborgenheit und verstärkt die Nähe zur Natur.
 

Harmonie mit der Natur

The Panorama House verschmilzt mit seiner Umgebung. Die Architektur passt sich dem Gelände an und lässt drinnen und draußen ineinander übergehen. Oberlichter erhellen Servicebereiche, während sich Schlaf- und Funktionsräume dezent zurückziehen.

Hausdaten

Hausart Icon
HausartEinfamilienhaus
Anzahl Räume Icon
Anzahl Räume7
Baustil Icon
BaustilSchwedenhäuser
Fassade Icon
FassadeHolz
Außenmaße Icon
Außenmaße12 m x 13.5 m
Wohnfläche Icon
Wohnfläche130 m²
Dachform Icon
DachformFlachdach
Etagen Icon
Etagen1
Immobilientyp Icon
ImmobilientypPlanungsidee
Pfeil nach unten linksWir schaffen Platz für Ihre Träume

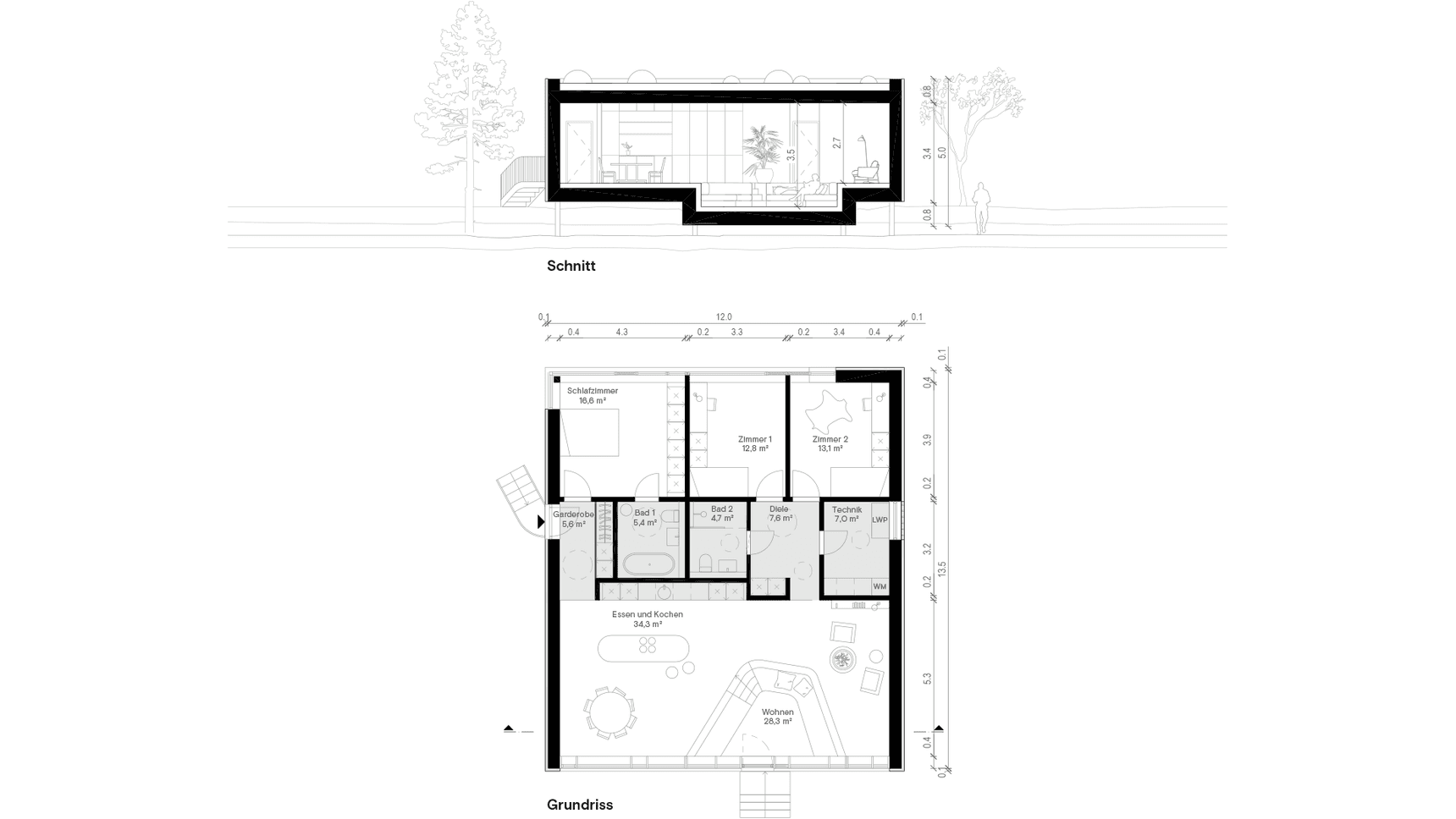
Grundriss

16-9-The-Panorma-House_Grundriss-2.png
Die Neuerfindung von Zuhause. Grundriss (EG)Wohnfläche EG: 130 m²
thumbnail_16_9_The_Panorma_House_Grundriss_1_fe1c3a27ba.png
Die Neuerfindung von Zuhause. Grundriss (DG)

Die Neuerfindung von Zuhause.

360°Rundgang starten

Kataloge

Haas Haus: Hauskatalog
Haas Fertigbau GmbH

Haas Haus: Hauskatalog


House and TreeParksHouse and PinMusterhausHouse on HandAnbieter