1. AnbieterArrow Icon
  2. Haas Fertigbau GmbHArrow Icon
  3. Haas D 112 E
Slide 1
Slide 2
Slide 3
Slide 4
Slide 5
Slide 6
Haas_Logo.png
Haas Fertigbau GmbHHaas D 112 E
homeKlassische Familienhäuser
livingArea112 m²
energyStandardEffizienzhaus 40 Plus
Preis anfragen
Katalog bestellen

Haas D 112 E

Zwei Seiten, ein Zuhause

Das Haas Doppelhaus D 112 vereint modernes Wohnen mit vielfältigen Gestaltungsmöglichkeiten und passt sich ideal an Ihren individuellen Lebensstil an. Beide Haushälften sind einzigartig konzipiert und bieten Lösungen, die gezielt auf unterschiedliche Bedürfnisse abgestimmt sind.

Die linke Haushälfte steht für exklusives Wohnen auf höchstem Niveau. Großzügige Glasflächen und eine anspruchsvolle Fassadengestaltung schaffen eine edle Ästhetik, die mit durchdachten Details nicht nur optisch begeistert, sondern auch langfristigen Mehrwert bietet.

Die rechte Haushälfte konzentriert sich auf ein smartes, budgetfreundliches Konzept. Klare Linien, praktische Lösungen wie Doppelfenster und eine Fertigteilgarage sorgen für funktionales und modernes Wohnen. Diese Haushälfte kombiniert Komfort und Flexibilität ohne Kompromisse.

Das Haas Doppelhaus D 112 bietet ein Zuhause, das sich Ihren Anforderungen anpasst und mit Ihnen wächst. Erleben Sie die perfekte Symbiose aus Design, Funktionalität und Nachhaltigkeit – heute und für die Zukunft.

Hausdaten

Hausart Icon
HausartDoppelhaus
Bauweise Icon
BauweiseHolz-Tafelbau
Baustil Icon
BaustilKlassische Familienhäuser
Außenmaße Icon
Außenmaße10 m x 7 m
Wohnfläche Icon
Wohnfläche112 m²
Dachform Icon
DachformSattel-/Giebeldach
Energiestandard Icon
EnergiestandardEffizienzhaus 40 Plus
Immobilientyp Icon
ImmobilientypPlanungsidee
Pfeil nach unten linksWir schaffen Platz für Ihre Träume

Grundriss

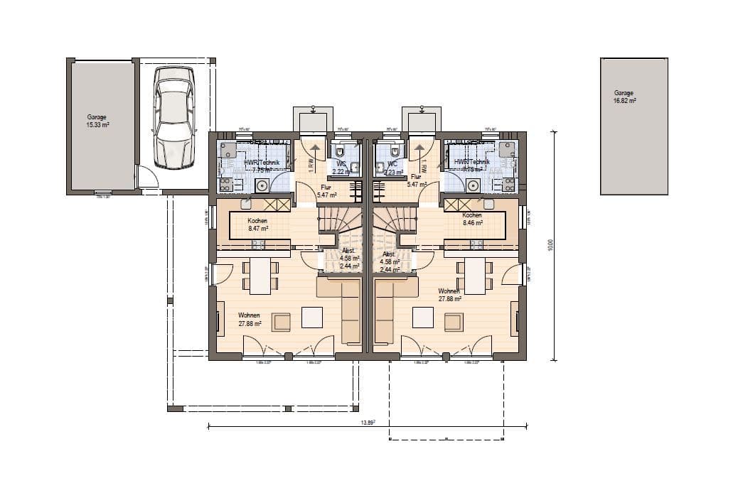
Haas D 112 Erdgeschoss.JPG
Haas D 112 E Grundriss (EG)
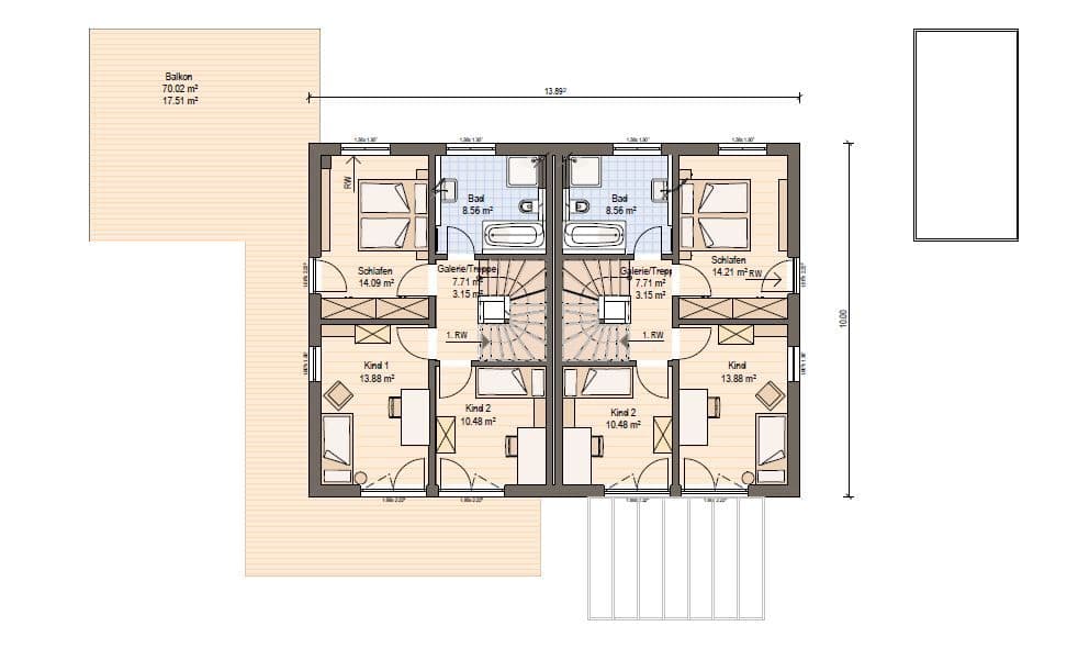
Haas D 112 Obergeschoss.JPG
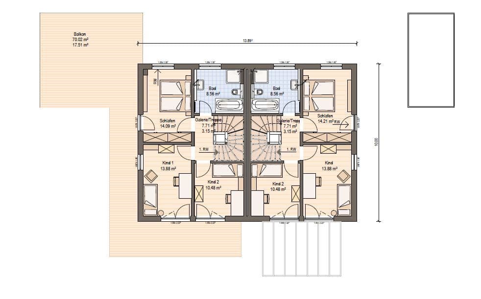
Haas D 112 E Grundriss (OG)
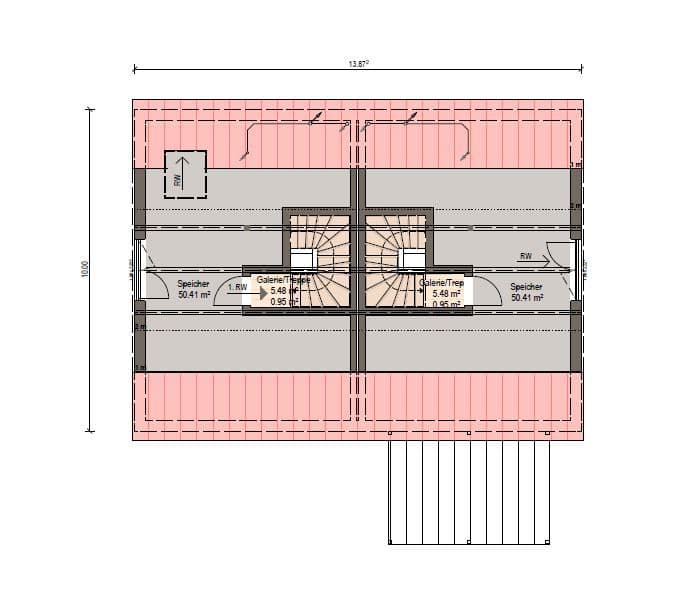
Haas D 112 Dachgeschoss.JPG
Haas D 112 E Grundriss (DG)

Kataloge

Haas Haus: Hauskatalog
Haas Fertigbau GmbH

Haas Haus: Hauskatalog


House and TreeParksHouse and PinMusterhausHouse on HandAnbieter