1. AnbieterArrow Icon
  2. Haas Fertigbau GmbHArrow Icon
  3. Haas Brava BT 84
Slide 1
Slide 2
Slide 3
Haas_Logo.png
Haas Fertigbau GmbHHaas Brava BT 84
homeBungalow
livingArea84 m²
energyStandardEffizienzhaus 40
Preis anfragen
Katalog bestellen

Haas Brava BT 84

Der flexible und nachhaltige Bungalow für jede Lebensphase

Der Haas Brava BT 84 ist ein vielseitiger, kompakter und pflegeleichter Bungalow, der ideal zu Ihrem mobilen und vielfältigen Lebensstil passt. Dank durchdachter Flexibilität und barrierefreier Planungsoptionen fügt sich dieser Bungalow nahtlos in Veränderungen Ihres Lebensumfelds oder Alters ein. Egal ob für Pflegebedürftigkeit, Wohnungstausch, zusätzliche Zimmer für Betreuungspersonen, Enkelkinder oder Vermietungen – die Modul-Optionen des Haas Brava BT 84 schaffen im Handumdrehen mehr Raum und sorgen für hohe Anpassungsfähigkeit.

Weitere Informationen finden Sie auf unserer Webseite.

Hausdaten

Hausart Icon
HausartEinfamilienhaus
Bauweise Icon
BauweiseMassivholzkonstruktion
Anzahl Räume Icon
Anzahl Räume3
Baustil Icon
BaustilBungalow
Fassade Icon
FassadePutz
Außenmaße Icon
Außenmaße12.8 m x 8.25 m
Wohnfläche Icon
Wohnfläche84 m²
Dachform Icon
DachformWalm-/Zeltdach
Etagen Icon
Etagen1
Energiestandard Icon
EnergiestandardEffizienzhaus 40
Immobilientyp Icon
ImmobilientypPlanungsidee
Dachneigung Icon
Dachneigung22°
Heizungsart Icon
HeizungsartWärmepumpe (Luft, Wasser, oder beides)
Pfeil nach unten linksWir schaffen Platz für Ihre Träume

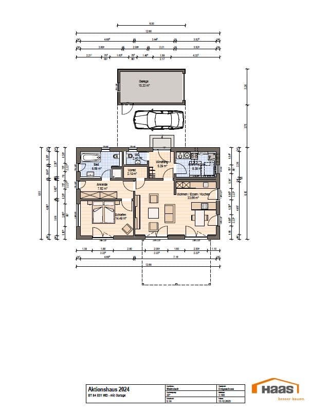
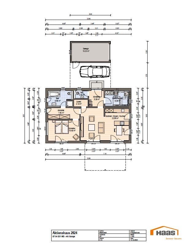
Grundriss

Grundriss Brava BT 84.JPG
Haas Brava BT 84 Grundriss (EG)Wohnfläche EG: 84 m²

Öffnungszeiten

Montag:08:00 - 15:00 Uhr
Dienstag:08:00 - 15:00 Uhr
Mittwoch:08:00 - 15:00 Uhr
Donnerstag:08:00 - 15:00 Uhr
Freitag:08:00 - 15:00 Uhr
Samstag:08:00 - 15:00 Uhr
Sonntag:08:00 - 15:00 Uhr

(öffnet Freitag um 12:00 Uhr)

Beratungstermin

Fertighaus Team in undefined

Unser Team vor Ort

Haas Haus Team FalkenbergFachberater*in bei Haas Fertigbau GmbH
Default Avatar
Wir beraten Sie gerne!Arrow Icon

Kataloge

Haas Haus: Hauskatalog
Haas Fertigbau GmbH

Haas Haus: Hauskatalog


House and TreeParksHouse and PinMusterhausHouse on HandAnbieter