1. AnbieterArrow Icon
  2. Haas Fertigbau GmbHArrow Icon
  3. Haas Fertighaus - Musterhaus Köln 171
Slide 1
Location Icon
Slide 2
Location Icon
Slide 3
Location Icon
Slide 4
Location Icon
Slide 5
Location Icon
Slide 6
Location Icon
Slide 7
Location Icon
Slide 8
Location Icon
Slide 9
Location Icon
Slide 10
Location Icon
Haas_Logo.png
Haas Fertigbau GmbHHaas Fertighaus - Musterhaus Köln 171
homeKlassische Familienhäuser
livingArea247 m²
energyStandardEffizienzhaus 40
Preis anfragen

Haas Fertighaus - Musterhaus Köln 171

Das Mehrgenerationenhaus für die flexible Familienplanung

Wer sich für ein Mehrgenerationenhaus mit Wohnräumen, die im Laufe der Zeit unterschiedlich genutzt werden können, interessiert, der ist mit dem Musterhaus Haas MH Köln 171 richtig beraten. Haas Haus hat damit ein fortschrittliches und funktionelles Mehrgenerationenhaus realisiert, das eine flexible Wohnraumnutzung zulässt. So bietet der separate Anbau des Mehrgenerationenhauses ausreichend Platz für eine vielseitige Nutzung:

  • Für größere Familien ist im Anbau Platz für die erwachsenen Kinder.
  • Auch zum Wohnen im Alter kann der Anbau des Fertighauses fungieren.
  • Für Selbstständige bietet sich die Nutzung als Büro mit Besprechungsraum an.
  • Auch als Einliegerwohnung für Mieter, Freunde oder Gäste kann der Anbau genutzt werden.
  • Wer ein platzintensives Hobby pflegt, kann den Anbau dafür einsetzen.

Weitere Informationen zum Fertighaus Haas MH Köln 171 von Haas Haus. Dieses und weitere Musterhäuser von Haas Haus finden Sie mit den aktuellen Öffnungszeiten auf unserer Website.

Hausdaten

Hausart Icon
HausartObjektbau
Bauweise Icon
BauweiseMassivholzkonstruktion
Anzahl Räume Icon
Anzahl Räume6
Baustil Icon
BaustilKlassische Familienhäuser
Fassade Icon
FassadePutz
Außenmaße Icon
Außenmaße10.97 m x 9.48 m
Wohnfläche Icon
Wohnfläche246.76 m²
Dachform Icon
DachformSattel-/Giebeldach
Energiestandard Icon
EnergiestandardEffizienzhaus 40
Immobilientyp Icon
ImmobilientypMusterhaus
Dachneigung Icon
Dachneigung42°
Kniestock Icon
Kniestock1 m
Hauseigenschaften Icon
HauseigenschaftenGästezimmer
Hausdämmstoff Icon
HausdämmstoffMineralfaser (Glaswolle, Steinwolle)
Heizungsart Icon
HeizungsartWärmepumpe (Luft, Wasser, oder beides)
Pfeil nach unten linksWir schaffen Platz für Ihre Träume

Grundriss

Haas Fertigbau Musterhaus Köln 171 Grundriss Erdgeschoss - Raumaufteilung mit offenem Wohn-Essbereich, Küche, Arbeitszimmer und HWR
Haas Fertighaus - Musterhaus Köln 171 Grundriss (EG)Wohnfläche EG: 128,4 m²
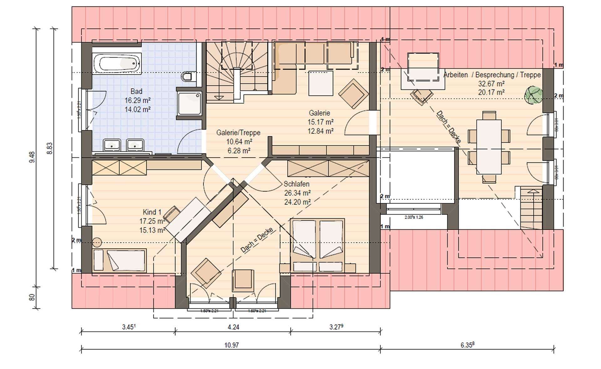
Haas Fertigbau Musterhaus Köln 171 Grundriss Obergeschoss - Raumaufteilung mit Elternschlafzimmer, Kinderzimmer, Galerie und Badezimmer
Haas Fertighaus - Musterhaus Köln 171 Grundriss (DG)Wohnfläche DG: 118,36 m²

Öffnungszeiten

Montag:Geschlossen
Dienstag:Geschlossen
Mittwoch:09:00 - 16:00 Uhr
Donnerstag:09:00 - 16:00 Uhr
Freitag:09:00 - 16:00 Uhr
Samstag:09:00 - 16:00 Uhr
Sonntag:09:00 - 16:00 Uhr

(schließt heute 16:00 Uhr)

Christi Himmelfahrt
10:00 - 17:00 Uhr

Adresse

Europaallee 45
Frechen 50226

Anfahrt planen

Beratungstermin

Fertighaus Team in Frechen

Haas Fertighaus - Musterhaus Köln 171

360°Rundgang starten
no description

Unser Team vor Ort

Haas Haus Team KölnFachberater*in bei Haas Fertigbau GmbH
Default Avatar
Wir beraten Sie gerne!Arrow Icon
House and TreeParksHouse and PinMusterhausHouse on HandAnbieter