1. AnbieterArrow Icon
  2. Haas Fertigbau GmbHArrow Icon
  3. Haas Fertigbau - Haus O 163 B
Slide 1
Slide 2
Slide 3
Slide 4
Slide 5
Slide 6
Slide 7
Slide 8
Slide 9
Slide 10
Slide 11
Slide 12
Haas_Logo.png
Haas Fertigbau GmbHHaas Fertigbau - Haus O 163 B
homeStadtvillen
livingArea168 m²
energyStandardEffizienzhaus 40
Preis anfragen
Katalog bestellen

Haas Fertigbau - Haus O 163 B

Stadtvilla bauen, großzügig wohnen

Wer träumt nicht vom eigenen Luxushaus? Der Hausentwurf Haas O 163 B von Haas Haus ist das ideale Haus für all jene, die eine mediterrane, exklusive Stadtvilla bauen wollen. Unter der für ein Toskana Haus typischen Dachform Walmdach verbirgt das Fertighaus alles, was sich eine Familie wünscht, die Wert auf eine gewisse Portion Luxus legt:

  • Eine Wohnfläche von über 160 m² bietet ausreichend Platz für bis zu fünf Personen.
  • Die Küche ist offen gestaltet und geht direkt in das Esszimmer und den Wohnbereich über.
  • Zahlreiche bodentiefe Fenster lassen viel Licht in alle Zimmer der Stadtvilla fließen - das schafft ein herrliches Wohngefühl.
  • Im Erdgeschoss wartet das Fertighaus mit einem eigenen Gästebereich bestehend aus geräumigem Gästezimmer und eigenem Bad mit Dusche auf. Das ist perfekt für ältere Kinder, die Großeltern oder ein Au-pair Mädchen.
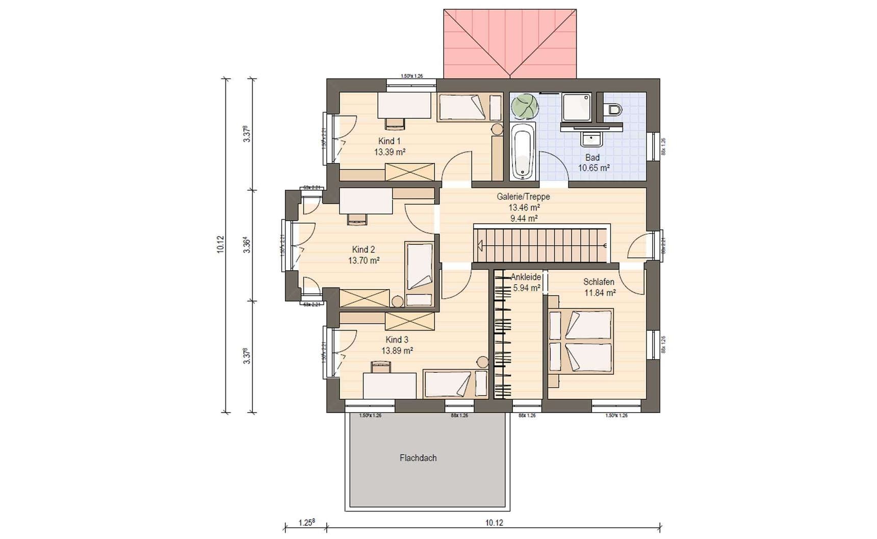
  • Eine moderne, geradläufige Treppe führt in die Galerie im Obergeschoss der Villa.
  • Durch den geräumigen Grundriss finden dort drei Kinderzimmer sowie das Elternschlafzimmer mit begehbarem Kleiderschrank ab Platz.
  • Nicht zu vergessen ist das große Familienbad, bei dem Dusche und WC durch eine Wand diskret vom Waschbecken abgetrennt sind.

Konfigurieren Sie sich Ihr persönliches Traumhaus

Bei dem Stadthaus Haas O 163 B stehen Ihnen beim Hausbau alle Türen offen. So können Sie die Dachform variieren. Wie wäre es z.B. mit einem modernen Pultdach, einem klassischen Satteldach oder mit einem Flachdach mit dem Sie Ihre Stadtvilla modern bauen können. Auch den Grundriss können Sie anpassen und zudem sind verschiedene Anbaubauteile und Fassadengestaltungen möglich. 

Weitere Informationen zum Baureihenhaus Haas O 163 B von Haas Haus

Hausdaten

Hausart Icon
HausartEinfamilienhaus
Bauweise Icon
BauweiseHolz-Tafelbau
Anzahl Räume Icon
Anzahl Räume6
Baustil Icon
BaustilStadtvillen
Fassade Icon
FassadePutz
Außenmaße Icon
Außenmaße10.12 m x 10.12 m
Wohnfläche Icon
Wohnfläche168.09 m²
Dachform Icon
DachformWalm-/Zeltdach
Energiestandard Icon
EnergiestandardEffizienzhaus 40
Immobilientyp Icon
ImmobilientypPlanungsidee
Dachneigung Icon
Dachneigung22°
Hauseigenschaften Icon
HauseigenschaftenGästezimmer
Hausdämmstoff Icon
HausdämmstoffMineralfaser (Glaswolle, Steinwolle)
Heizungsart Icon
HeizungsartWärmepumpe (Luft, Wasser, oder beides)
Pfeil nach unten linksWir schaffen Platz für Ihre Träume

Grundriss

no description
Haas Fertigbau - Haus O 163 B Grundriss (EG)Wohnfläche EG: 85,22 m²
no description
Haas Fertigbau - Haus O 163 B Grundriss (OG)Wohnfläche OG: 82,87 m²

Unser Team vor Ort

Haas Haus Team FalkenbergFachberater*in bei Haas Fertigbau GmbH
Default Avatar
Wir beraten Sie gerne!Arrow Icon

Kataloge

Haas Haus: Hauskatalog
Haas Fertigbau GmbH

Haas Haus: Hauskatalog


House and TreeParksHouse and PinMusterhausHouse on HandAnbieter