1. AnbieterArrow Icon
  2. Haas Fertigbau GmbHArrow Icon
  3. Haas Fertigbau - Haus O 155 A
Slide 1
Slide 2
Slide 3
Slide 4
Slide 5
Slide 6
Slide 7
Slide 8
Haas_Logo.png
Haas Fertigbau GmbHHaas Fertigbau - Haus O 155 A
homeKlassische Familienhäuser
livingArea159 m²
energyStandardEffizienzhaus 40
Preis anfragen
Katalog bestellen

Haas Fertigbau - Haus O 155 A

Einfamilienhaus mit Platz für fünf Personen

Das Fertighaus Haas O 155 A überzeugt mit freien Sichtachsen nach außen und innen. Sitzen Sie auf der Couch im Erker des Einfamilienhauses, kann Ihr Blick durch die großflächigen Terrassentüren in den Garten schweifen. Zugleich haben Sie auch die offene Küche und den Essbereich im Blick. Über die geradlinige Treppe gelangen Sie in die Galerie im Dachgeschoss. Von ihr gehen zwei Kinderzimmer, ein Ankleidezimmer und das Familienbad ab. Da das Einfamilienhaus im Erdgeschoss ein weiteres Bad mit Dusche und ein Schlafzimmer besitzt, bietet es ideal für Familien mit drei Kindern oder einem Au-Pair Mädchen.

Weitere Informationen zum Baureihenhaus Haas O 155 A von Haas Haus

Hausdaten

Hausart Icon
HausartEinfamilienhaus
Bauweise Icon
BauweiseMassivholzkonstruktion
Anzahl Räume Icon
Anzahl Räume5
Baustil Icon
BaustilKlassische Familienhäuser
Fassade Icon
FassadePutz
Außenmaße Icon
Außenmaße10.72 m x 9.12 m
Wohnfläche Icon
Wohnfläche158.7 m²
Dachform Icon
DachformSattel-/Giebeldach
Energiestandard Icon
EnergiestandardEffizienzhaus 40
Immobilientyp Icon
ImmobilientypPlanungsidee
Dachneigung Icon
Dachneigung38°
Kniestock Icon
Kniestock1.6 m
Hauseigenschaften Icon
HauseigenschaftenGästezimmer
Hausdämmstoff Icon
HausdämmstoffMineralfaser (Glaswolle, Steinwolle)
Heizungsart Icon
HeizungsartWärmepumpe (Luft, Wasser, oder beides)
Pfeil nach unten linksWir schaffen Platz für Ihre Träume

Grundriss

Grundriss_Haas_Einfamilienhaus_O_155_A_EG.PNG
Haas Fertigbau - Haus O 155 A Grundriss (EG)Wohnfläche EG: 82,15 m²
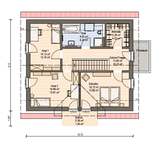
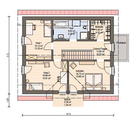
Grundriss_Haas_Einfamilienhaus_O_155_A_OG.PNG
Haas Fertigbau - Haus O 155 A Grundriss (DG)Wohnfläche DG: 76,55 m²

Unser Team vor Ort

Haas Haus Team FalkenbergFachberater*in bei Haas Fertigbau GmbH
Default Avatar
Wir beraten Sie gerne!Arrow Icon

Kataloge

Haas Haus: Hauskatalog
Haas Fertigbau GmbH

Haas Haus: Hauskatalog


House and TreeParksHouse and PinMusterhausHouse on HandAnbieter