1. AnbieterArrow Icon
  2. Haas Fertigbau GmbHArrow Icon
  3. Haas Fertigbau - Haus O 140 A
Slide 1
Slide 2
Slide 3
Slide 4
Slide 5
Slide 6
Slide 7
Slide 8
Slide 9
Slide 10
Haas_Logo.png
Haas Fertigbau GmbHHaas Fertigbau - Haus O 140 A
homeKlassische Familienhäuser
livingArea147 m²
energyStandardEffizienzhaus 40
Preis anfragen
Katalog bestellen

Haas Fertigbau - Haus O 140 A

Zeitlos modernes Fertighaus

Dieses klassische Einfamilienhaus ist unser Renner bei jungen Baufamilien. Der Grund: Das Fertighaus bietet im Grundriss immense Möglichkeiten zur Individualisierung und ist ganz vielfältig zu überdachen. Hier stellen wir Ihnen mit dem Haas O 140 A eine Variante mit Satteldach vor. Besonders hervorzuheben ist die dankbare Raumreserve im Erdgeschoss – Sie müssen nur entscheiden, wie Sie diese nutzen wollen:

  • Als Arbeitszimmer für die Selbstständigkeit?
  • Oder als drittes Kinderzimmer, wenn die Familienplanung doch noch nicht abgeschlossen war?

Wie bei jedem Fertighaus der Baureihe Haas O 140 haben Sie auch bei dieser Version viel Freiheit bei der Gestaltung Ihres Traumhauses. Erweitern Sie ihr Traumhaus, wie beim Haas O 140 A gezeigt, mit einem Erker, versehen Sie das Fertighaus mit einem modernen Flachdach und kombinieren Sie genau den Erd- und Obergeschoss-Grundriss, der für Sie am besten passt. Am besten vereinbaren Sie gleich noch heute einen Beratungstermin.

Weitere Informationen zum Baureihenhaus Haas O 140 A von Haas Haus

Hausdaten

Hausart Icon
HausartEinfamilienhaus
Bauweise Icon
BauweiseHolz-Tafelbau
Anzahl Räume Icon
Anzahl Räume5
Baustil Icon
BaustilKlassische Familienhäuser
Fassade Icon
FassadePutz
Außenmaße Icon
Außenmaße10.62 m x 8.42 m
Wohnfläche Icon
Wohnfläche146.7 m²
Dachform Icon
DachformSattel-/Giebeldach
Energiestandard Icon
EnergiestandardEffizienzhaus 40
Immobilientyp Icon
ImmobilientypPlanungsidee
Dachneigung Icon
Dachneigung38°
Kniestock Icon
Kniestock1.6 m
Hauseigenschaften Icon
HauseigenschaftenGästezimmer
Hausdämmstoff Icon
HausdämmstoffMineralfaser (Glaswolle, Steinwolle)
Heizungsart Icon
HeizungsartWärmepumpe (Luft, Wasser, oder beides)
Pfeil nach unten linksWir schaffen Platz für Ihre Träume

Grundriss

no description
Haas Fertigbau - Haus O 140 A Grundriss (EG)Wohnfläche EG: 77,47 m²
no description
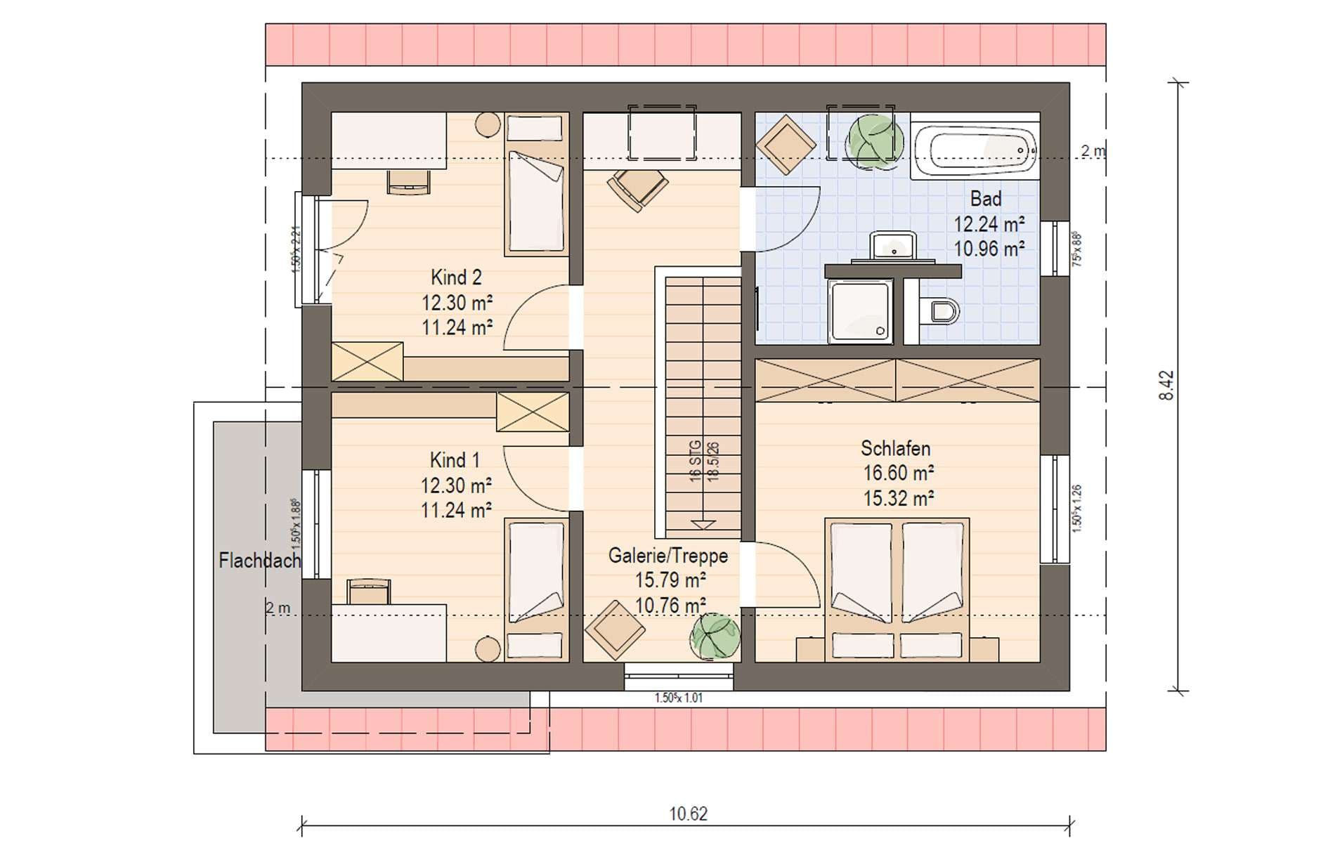
Haas Fertigbau - Haus O 140 A Grundriss (DG)Wohnfläche DG: 69,23 m²

Unser Team vor Ort

Haas Haus Team FalkenbergFachberater*in bei Haas Fertigbau GmbH
Default Avatar
Wir beraten Sie gerne!Arrow Icon

Kataloge

Haas Haus: Hauskatalog
Haas Fertigbau GmbH

Haas Haus: Hauskatalog


House and TreeParksHouse and PinMusterhausHouse on HandAnbieter