1. AnbieterArrow Icon
  2. Haas Fertigbau GmbHArrow Icon
  3. Haas Fertigbau - Haus O 130 B
Slide 1
Slide 2
Slide 3
Slide 4
Slide 5
Slide 6
Slide 7
Haas_Logo.png
Haas Fertigbau GmbHHaas Fertigbau - Haus O 130 B
homeLandhäuser
livingArea129 m²
energyStandardEffizienzhaus 40
Preis anfragen
Katalog bestellen

Haas Fertigbau - Haus O 130 B

Modernes Fertighaus trifft auf Landhausstil

Sie schätzen das zeitlose Design eines Landhauses, wollen zugleich aber auch ein Haus mit modernem Touch? Dann ist das Fertighaus Haas O 130 B vielleicht Ihr Traumhaus. Der klassische Landhausstil wird durch das rote Satteldach und die partielle Holzverkleidung erzeugt. Gleichzeitig lockert die über Eck gestaltete Terrassenüberdachung die Architektur des Hauses auf. Mit der großen Terrasse und modernen Lounge-Möbeln erhält das Einfamilienhaus beinah mediterranes Flair.

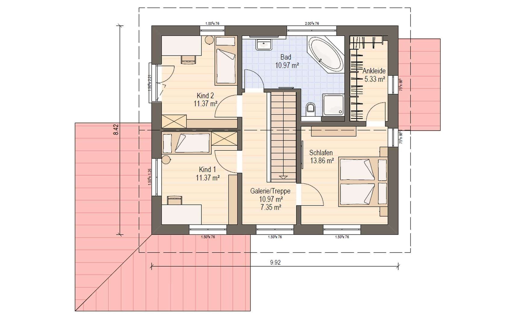
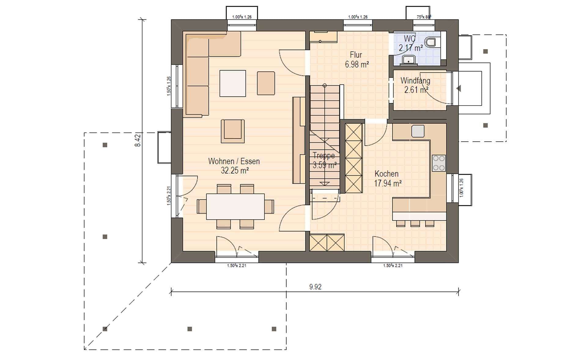
Innen bietet Ihnen das Haus alles, was eine vierköpfige Familie braucht:

  • eine großzügige Küche mit direkt angrenzendem Esszimmer und hellem Wohnbereich
  • zwei beinah identisch geschnittene Kinderzimmer
  • ein lichtdurchflutetes Elternschlafzimmer mit Ankleide
  • ein geräumiges Familienbad mit Eckbadewanne

Konfigurieren Sie sich Ihr persönliches Traumhaus

Wir wissen: Jede Baufamilie ist einzigartig. Daher bietet Ihnen der Haus-Konfigurator die Möglichkeit, selbst zum Architekten zu werden. Versuchen Sie es und verwandeln Sie dieses Haus in Ihr Traumhaus!

Weitere Informationen zum Baureihenhaus Haas O 130 B von Haas Haus

Hausdaten

Hausart Icon
HausartEinfamilienhaus
Bauweise Icon
BauweiseMassivholzkonstruktion
Anzahl Räume Icon
Anzahl Räume4
Baustil Icon
BaustilLandhäuser
Fassade Icon
FassadePutz
Außenmaße Icon
Außenmaße9.92 m x 8.42 m
Wohnfläche Icon
Wohnfläche129.41 m²
Dachform Icon
DachformSattel-/Giebeldach
Energiestandard Icon
EnergiestandardEffizienzhaus 40
Immobilientyp Icon
ImmobilientypPlanungsidee
Dachneigung Icon
Dachneigung22°
Kniestock Icon
Kniestock2.2 m
Hauseigenschaften Icon
HauseigenschaftenTerasse
Hausdämmstoff Icon
HausdämmstoffMineralfaser (Glaswolle, Steinwolle)
Heizungsart Icon
HeizungsartWärmepumpe (Luft, Wasser, oder beides)
Pfeil nach unten linksWir schaffen Platz für Ihre Träume

Grundriss

no description
Haas Fertigbau - Haus O 130 B Grundriss (EG)Wohnfläche EG: 65,54 m²
no description
Haas Fertigbau - Haus O 130 B Grundriss (DG)Wohnfläche DG: 63,87 m²

Unser Team vor Ort

Haas Haus Team FalkenbergFachberater*in bei Haas Fertigbau GmbH
Default Avatar
Wir beraten Sie gerne!Arrow Icon

Kataloge

Haas Haus: Hauskatalog
Haas Fertigbau GmbH

Haas Haus: Hauskatalog


House and TreeParksHouse and PinMusterhausHouse on HandAnbieter
Haas Fertigbau - Haus O 130 B