1. AnbieterArrow Icon
  2. Haas Fertigbau GmbHArrow Icon
  3. Haas Fertighaus - Musterhaus MH Poing G 154
Slide 1
Location Icon
Slide 2
Location Icon
Slide 3
Location Icon
Slide 4
Location Icon
Slide 5
Location Icon
Slide 6
Location Icon
Slide 7
Location Icon
Slide 8
Location Icon
Slide 9
Location Icon
Haas_Logo.png
Haas Fertigbau GmbHHaas Fertighaus - Musterhaus MH Poing G 154
homeKlassische Familienhäuser
livingArea160 m²
energyStandardEffizienzhaus 40
Preis anfragen

Haas Fertighaus - Musterhaus MH Poing G 154

Beliebtes Musterhaus von Haas Haus

Das Haas MH Poing G 154 ist ein Einfamilienhaus mit zahlreichen Highlights:

  • Bereits im Eingang zeigt sich der erste Vorzug: eine Diele mit offener Galerie.
  • Ebenso wenig zu verachten ist der große Erker über Eck, dessen bodentiefe Fenster viel Licht ins Haus fliesen lassen.
  • Großer Vorteil für jede Familie ist die geräumige Vorratskammer und das Büro. Sie schaffen Stauraum.
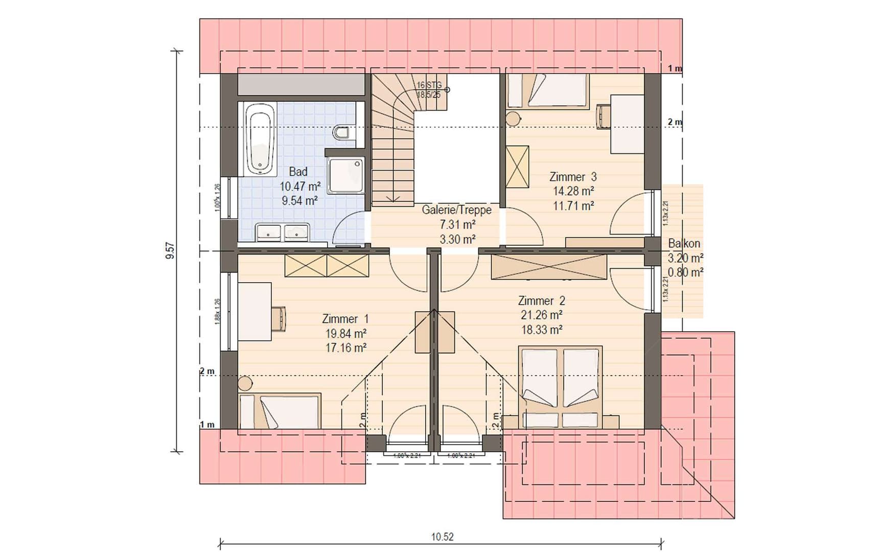
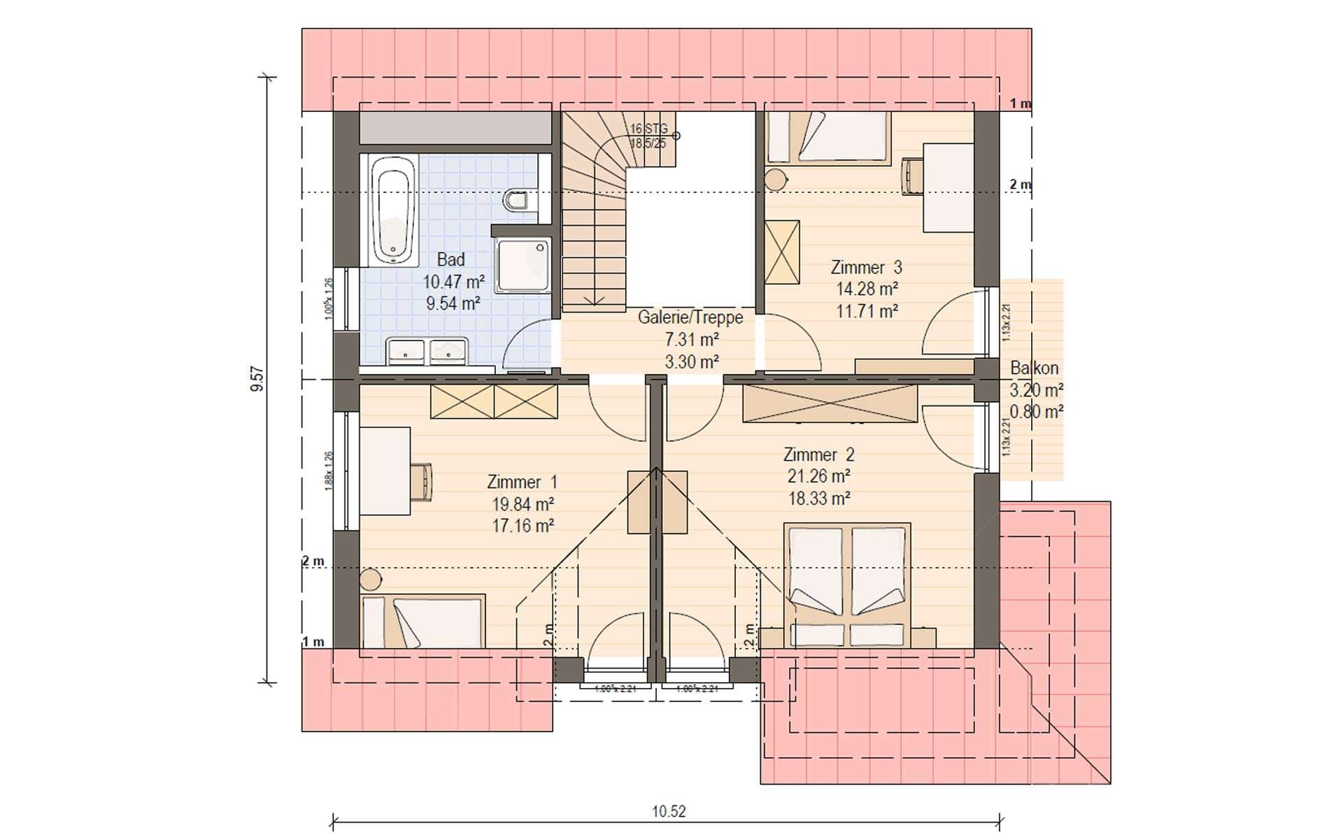
  • Im Dachgeschoss wartet das Fertighaus mit drei Schlafzimmern und einem großen Familienbad auf.
  • Auch ein Balkon darf natürlich nicht fehlen.

Kurzum: Das Haus bietet alles, was eine Familie benötigt. Am besten ist Sie besuchen das Musterhaus von Haas Haus in Poing und überzeugen sich von seiner intelligenten Raumaufteilung und der ansprechenden Architektur. 

Weitere Informationen zum Musterhaus Haas MH Poing G 154 von Haas Haus.

Dieses und weitere Musterhäuser von Haas Haus finden Sie mit den aktuellen Öffnungszeiten auf unserer Website.

Hausdaten

Hausart Icon
HausartEinfamilienhaus
Bauweise Icon
BauweiseHolz-Tafelbau
Anzahl Räume Icon
Anzahl Räume5
Baustil Icon
BaustilKlassische Familienhäuser
Fassade Icon
FassadePutz
Außenmaße Icon
Außenmaße10.52 m x 9.57 m
Wohnfläche Icon
Wohnfläche160.32 m²
Dachform Icon
DachformSattel-/Giebeldach
Energiestandard Icon
EnergiestandardEffizienzhaus 40
Pfeil nach unten linksWir schaffen Platz für Ihre Träume

Grundriss

no description
Haas Fertighaus - Musterhaus MH Poing G 154 Grundriss (EG)
no description
Haas Fertighaus - Musterhaus MH Poing G 154 Grundriss (DG)

Öffnungszeiten

Montag:Geschlossen
Dienstag:Geschlossen
Mittwoch:09:00 - 16:00 Uhr
Donnerstag:09:00 - 16:00 Uhr
Freitag:09:00 - 16:00 Uhr
Samstag:09:00 - 16:00 Uhr
Sonntag:09:00 - 16:00 Uhr

(öffnet Donnerstag um 13:00 Uhr)

Adresse

Senator-Gerauer-Straße 25
Poing 85586

Anfahrt planen

Beratungstermin

Fertighaus Team in Poing

Haas Fertighaus - Musterhaus MH Poing G 154

360°Rundgang starten
no description

Unser Team vor Ort

Haas Haus Team PoingFachberater*in bei Haas Fertigbau GmbH
Default Avatar
Wir beraten Sie gerne!Arrow Icon
House and TreeParksHouse and PinHäuser liveHouse on HandAnbieter