1. AnbieterArrow Icon
  2. Haas Fertigbau GmbHArrow Icon
  3. Haas Fertighaus - Musterhaus MH Hirschaid 151
Slide 1
Location Icon
Slide 2
Location Icon
Slide 3
Location Icon
Slide 4
Location Icon
Slide 5
Location Icon
Slide 6
Location Icon
Slide 7
Location Icon
Haas_Logo.png
Haas Fertigbau GmbHHaas Fertighaus - Musterhaus MH Hirschaid 151
homeKlassische Familienhäuser
livingArea150 m²
energyStandardEffizienzhaus 40
Preis anfragen

Haas Fertighaus - Musterhaus MH Hirschaid 151

Das zeitlose Einfamilienhaus

Modern und offen wohnen im Fertighaus von Haas Haus. Bei der Planung des Musterhauses Haas MH Hirschaid 151 wurde besonderen Wert auf eine moderne Architektur und funktionelle Grundrissplanung gelegt. Die offene Raumgestaltung des Fertighauses vermittelt Großzügigkeit und Wohnkomfort. Viel Licht, viel Sonne, viel Freiheit garantieren die großflächige Verglasung. Auch technisch ist das Einfamilienhaus energiesparend und sicher, etwa durch die wärmedämmende Wandausführung. 

Weitere Informationen zum Fertighaus Haas MH Hirschaid 151 von Haas Haus. Dieses und weitere Musterhäuser von Haas Haus finden Sie mit den aktuellen Öffnungszeiten auf unserer Website.

Hausdaten

Hausart Icon
HausartEinfamilienhaus
Bauweise Icon
BauweiseHolz-Tafelbau
Anzahl Räume Icon
Anzahl Räume4
Baustil Icon
BaustilKlassische Familienhäuser
Fassade Icon
FassadePutz
Außenmaße Icon
Außenmaße11.71 m x 8.08 m
Wohnfläche Icon
Wohnfläche150.38 m²
Dachform Icon
DachformSattel-/Giebeldach
Energiestandard Icon
EnergiestandardEffizienzhaus 40
Immobilientyp Icon
ImmobilientypMusterhaus
Dachneigung Icon
Dachneigung36°
Kniestock Icon
Kniestock1.2 m
Hauseigenschaften Icon
HauseigenschaftenTerasse
Hausdämmstoff Icon
HausdämmstoffMineralfaser (Glaswolle, Steinwolle)
Heizungsart Icon
HeizungsartWärmepumpe (Luft, Wasser, oder beides)
Pfeil nach unten linksWir schaffen Platz für Ihre Träume

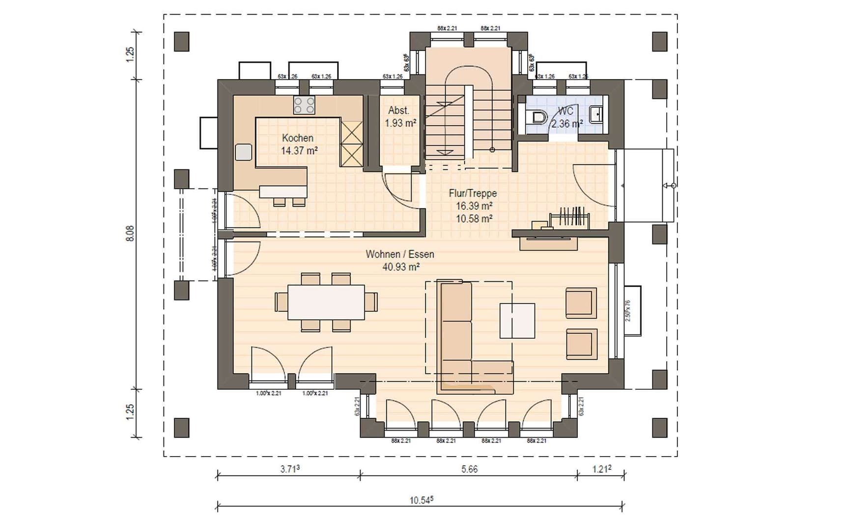
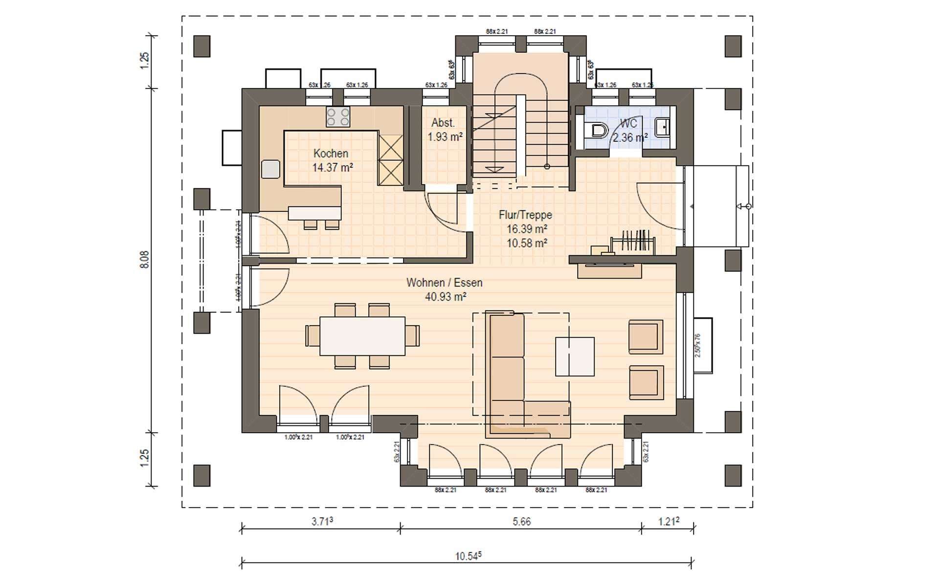
Grundriss

no description
Haas Fertighaus - Musterhaus MH Hirschaid 151 Grundriss (EG)Wohnfläche EG: 75,98 m²
no description
Haas Fertighaus - Musterhaus MH Hirschaid 151 Grundriss (DG)Wohnfläche DG: 74,4 m²

Unser Team vor Ort

Haas Haus Team HirschaidFachberater*in bei Haas Fertigbau GmbH
Default Avatar
Wir beraten Sie gerne!Arrow Icon
House and TreeParksHouse and PinMusterhausHouse on HandAnbieter