1. AnbieterArrow Icon
  2. Haas Fertigbau GmbHArrow Icon
  3. Haas Villa Mallorca
Slide 1
Slide 2
Slide 3
Slide 4
Slide 5
Slide 6
Slide 7
Slide 8
Slide 9
Slide 10
Haas_Logo.png
Haas Fertigbau GmbHHaas Villa Mallorca
homeVillen
livingArea129 m²
energyStandardEffizienzhaus 40
Preis anfragen
Katalog bestellen

Haas Villa Mallorca

Mediterrane Villa

Außen mediterran - innen hell und offen: Die Haas Villa Toskana vereint beides gekonnt! So sind sowohl der Eingangsbereich als auch die großzügige, über Eck gestaltete Terrasse überdacht, wobei das Dach auf stilvollen Säulen ruht – das verleiht südländisches Flair! Nicht nur schick, sondern auch praktisch ist das Walmdach: Schindel in chargierenden Terrakottatönen verstärken den mallorquinischen Stil der Villa, zugleich stehen dank des Walmdachs zwei Vollgeschosse zur Verfügung.

Innen überzeugt das Fertighaus im Erdgeschoss mit einem großzügigen Wohn- und Essbereich mit offener Küche. Praktisch hierbei sind gleich drei Elemente:
•    Der Abstellraum unter der halb-gewendelten Treppe, der nah an der Küche liegt und sich daher als Vorratskammer eignet. 
•    Ein eigenes Gästezimmer mit Gästebad. 
•    Der ausgelagerte Hauswirtschafts- und Technikraum.

Im Obergeschoss befinden sich das Elternschlafzimmer mit separater Ankleide und zwei Kinderzimmer. Schön hierbei ist, dass jedes Schlafzimmer von zwei Seiten belichtet wird. Im hellen Familienbad findet neben WC, Wanne und Waschbecken auch eine großzügige, begehbare Dusche in einer extra Nische Platz - hier sparen Sie sich die Glasabtrennung und damit Putzaufwand.

Weitere Informationen zur Villa Toskana von Haas Haus.
 

Hausdaten

Hausart Icon
HausartEinfamilienhaus
Bauweise Icon
BauweiseHolz-Tafelbau
Anzahl Räume Icon
Anzahl Räume4
Baustil Icon
BaustilVillen
Fassade Icon
FassadePutz
Außenmaße Icon
Außenmaße10 m x 8 m
Wohnfläche Icon
Wohnfläche129.42 m²
Dachform Icon
DachformWalm-/Zeltdach
Energiestandard Icon
EnergiestandardEffizienzhaus 40
Immobilientyp Icon
ImmobilientypPlanungsidee
Dachneigung Icon
Dachneigung22°
Hauseigenschaften Icon
HauseigenschaftenGästezimmer
Hausdämmstoff Icon
HausdämmstoffMineralfaser (Glaswolle, Steinwolle)
Heizungsart Icon
HeizungsartWärmepumpe (Luft, Wasser, oder beides)
Pfeil nach unten linksWir schaffen Platz für Ihre Träume

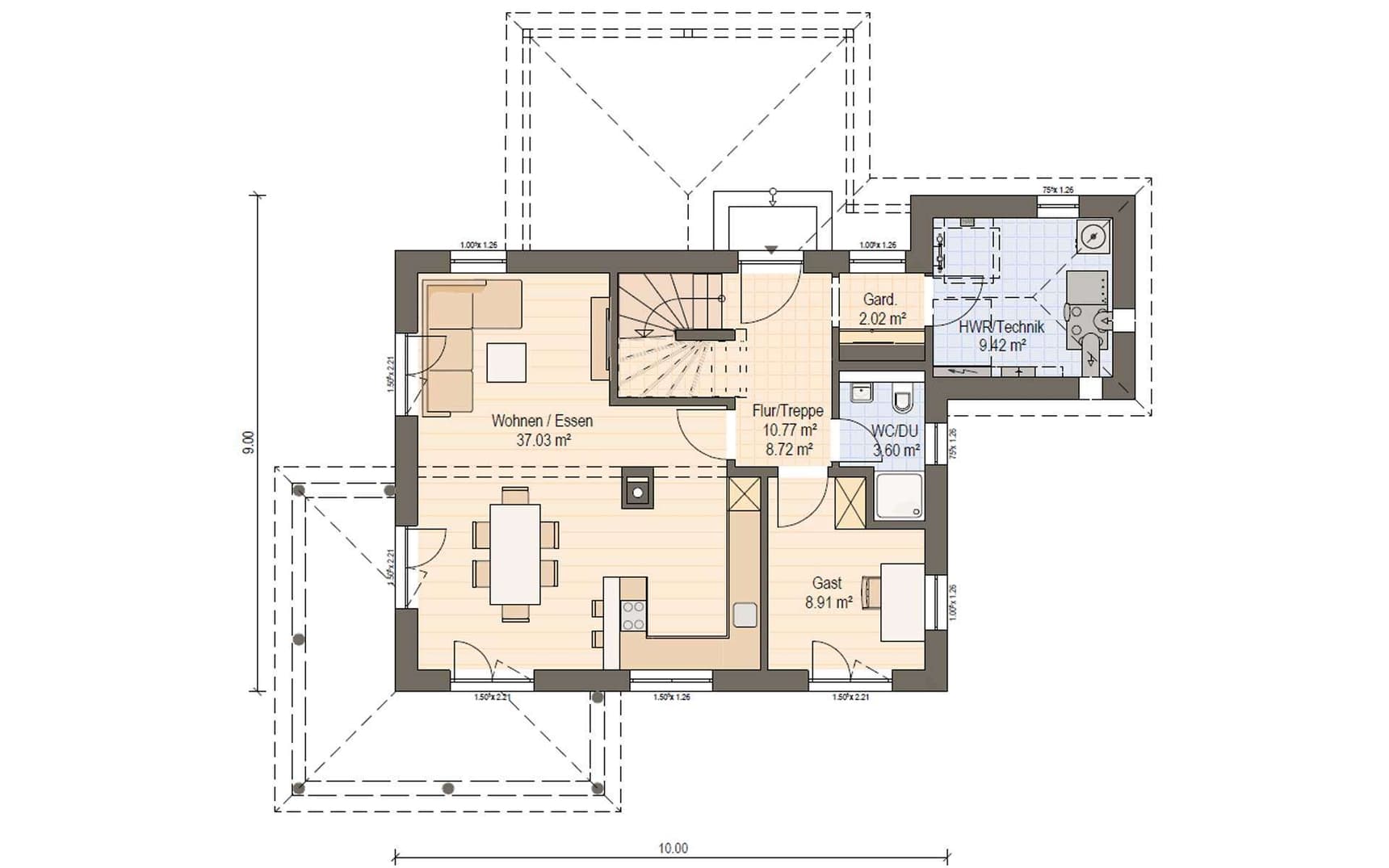
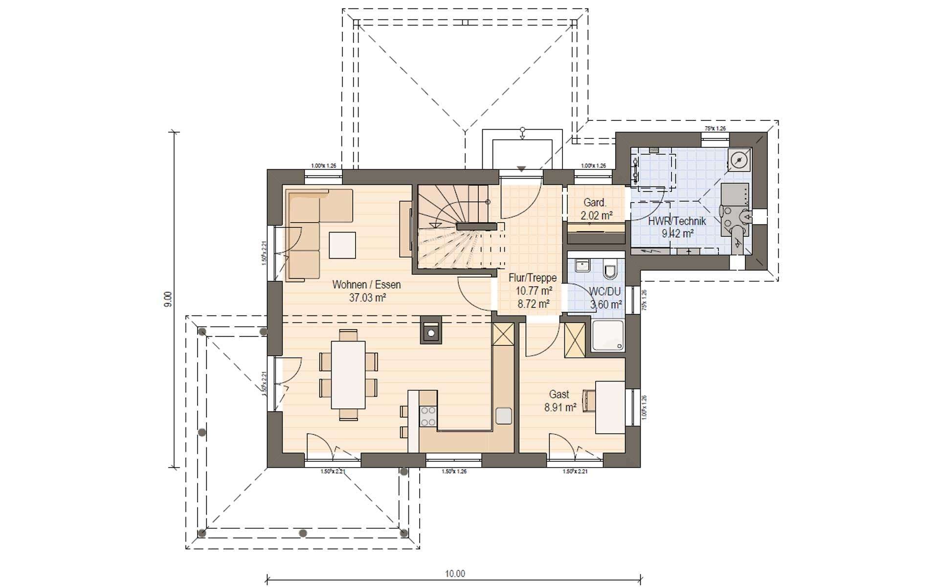
Grundriss

no description
Haas Villa Mallorca Grundriss (EG)Wohnfläche EG: 65,26 m²
no description
Haas Villa Mallorca Grundriss (OG)Wohnfläche OG: 64,12 m²

Unser Team vor Ort

Haas Haus Team KölnFachberater*in bei Haas Fertigbau GmbH
Default Avatar
Wir beraten Sie gerne!Arrow Icon

Kataloge

Haas Haus: Hauskatalog
Haas Fertigbau GmbH

Haas Haus: Hauskatalog


House and TreeParksHouse and PinMusterhausHouse on HandAnbieter