1. AnbieterArrow Icon
  2. Haas Fertigbau GmbHArrow Icon
  3. Haas Haus - D 128 A
Slide 1
Slide 2
Slide 3
Slide 4
Slide 5
Slide 6
Slide 7
Slide 8
Slide 9
Slide 10
Haas_Logo.png
Haas Fertigbau GmbHHaas Haus - D 128 A
homeKlassische Familienhäuser
livingArea126 m²
energyStandardEffizienzhaus 55
Preis anfragen
Katalog bestellen

Haas Haus - D 128 A

Doppelhaus mit Gaube

Wenn Sie ein Doppelhaus bauen, geht es meist darum, Kompromisse einzugehen. Damit diese sich bei der Planung aber in Grenzen halten, hat Haas Haus die Fertighaus Baureihe Haas D entwickelt. Hierbei müssen Sie sich mit Ihren Nachbarn auf die Dachform einigen, ansonsten haben Sie große Wahlfreiheit:
•    Entscheiden Sie sich für den Bau auf Bodenplatte oder mit Keller.
•    Schaffen Sie Akzente mit einem Balkon oder einer Gaube.
•    Wählen Sie aus verschiedenen Erdgeschossmöglichkeiten und kombinieren Sie diese mit dem für Sie passenden Ober- bzw. Dachgeschoss.

Die hier präsentierte Variante Haas D 128 A ist ein Doppelhaus, das mit kleinen Details überzeugen kann:
•    Die Garderobe und der Abstellraum unter der halb gewendelten Treppe schaffen Stauraum im Erdgeschoss.
•    Die in einer U-Form gestalteten Küche bietet Hobbyköchen viel Platz.
•    Der große Wohn-Essbereich öffnet sich zur Küche und Treppe hin - das schafft ein modernes Wohngefühl.
•    Das Elternschlafzimmer verfügt über eine eigene Ankleide.
•    Die beiden Kinderzimmer im Dachgeschoss sind identisch geschnitten und gleich groß.

Weitere Informationen zum Fertighaus Haas D 128 A von Haas Haus.

Hausdaten

Hausart Icon
HausartDoppelhaus
Bauweise Icon
BauweiseHolz-Tafelbau
Anzahl Räume Icon
Anzahl Räume4
Baustil Icon
BaustilKlassische Familienhäuser
Fassade Icon
FassadePutz
Außenmaße Icon
Außenmaße11.25 m x 73.5 m
Wohnfläche Icon
Wohnfläche125.88 m²
Dachform Icon
DachformSattel-/Giebeldach
Etagen Icon
Etagen2
Energiestandard Icon
EnergiestandardEffizienzhaus 55
Immobilientyp Icon
ImmobilientypPlanungsidee
Dachneigung Icon
Dachneigung45°
Kniestock Icon
Kniestock1.2 m
Hauseigenschaften Icon
HauseigenschaftenTerasse
Hausdämmstoff Icon
HausdämmstoffMineralfaser (Glaswolle, Steinwolle)
Heizungsart Icon
HeizungsartWärmepumpe (Luft, Wasser, oder beides)
Pfeil nach unten linksWir schaffen Platz für Ihre Träume

Grundriss

no description
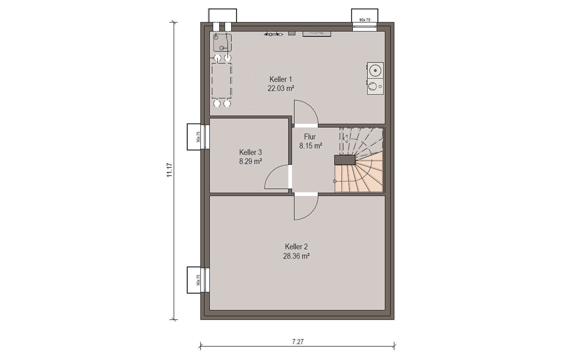
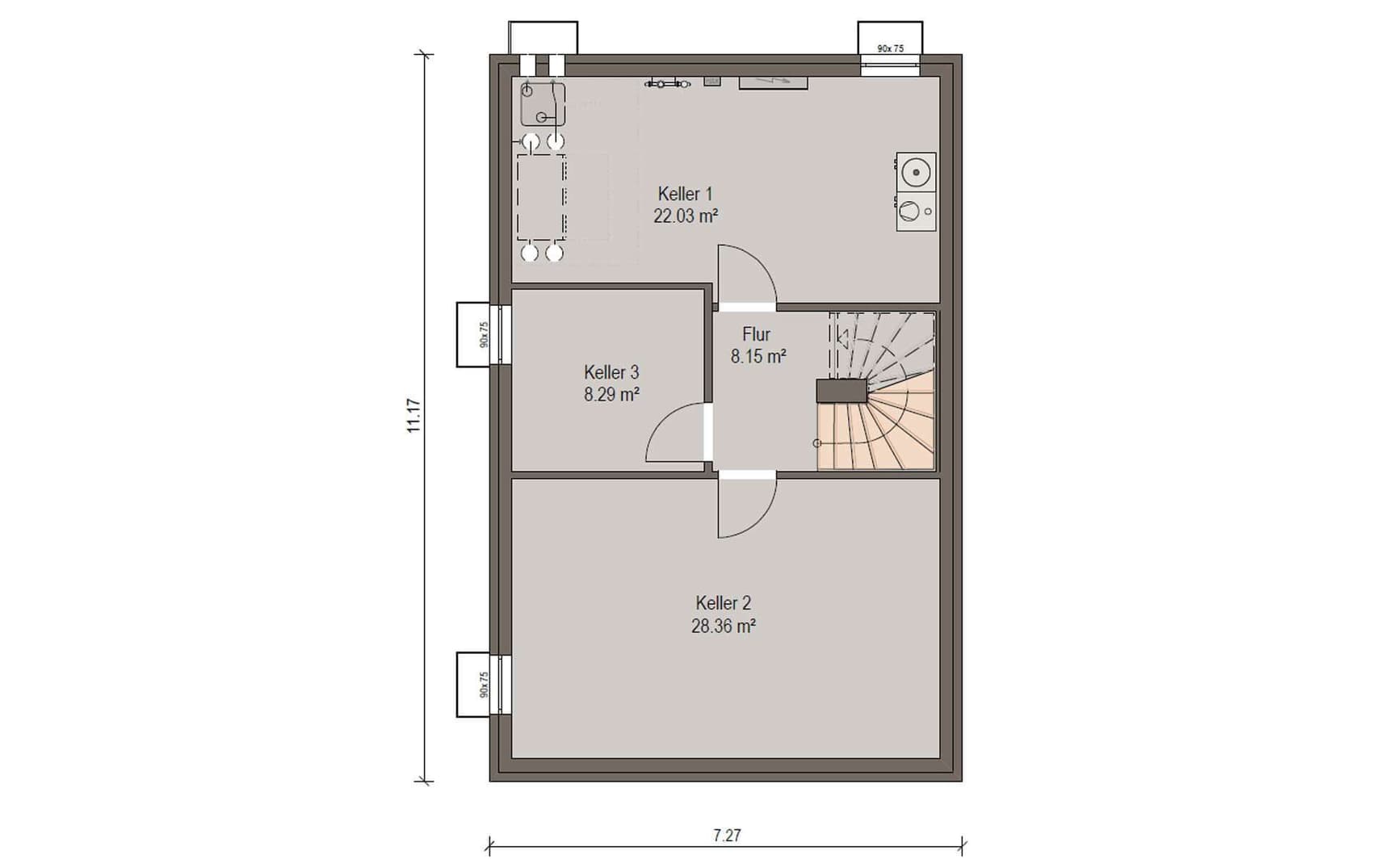
Haas Haus - D 128 A Grundriss (Keller)
no description
Haas Haus - D 128 A Grundriss (EG)Wohnfläche EG: 63,42 m²
no description
Haas Haus - D 128 A Grundriss (DG)Wohnfläche DG: 62,46 m²

Unser Team vor Ort

Haas Haus Team FalkenbergFachberater*in bei Haas Fertigbau GmbH
Default Avatar
Wir beraten Sie gerne!Arrow Icon

Kataloge

Haas Haus: Hauskatalog
Haas Fertigbau GmbH

Haas Haus: Hauskatalog


House and TreeParksHouse and PinMusterhausHouse on HandAnbieter