1. AnbieterArrow Icon
  2. Haas Fertigbau GmbHArrow Icon
  3. Haas Fertighaus - Vita 160
Slide 1
Location Icon
Slide 2
Location Icon
Slide 3
Location Icon
Slide 4
Location Icon
Slide 5
Location Icon
Slide 6
Location Icon
Slide 7
Location Icon
Slide 8
Location Icon
Slide 9
Location Icon
Haas_Logo.png
Haas Fertigbau GmbHHaas Fertighaus - Vita 160
homeKlassische Familienhäuser
livingArea168 m²
energyStandardEffizienzhaus 40
Preis anfragen

Haas Fertighaus - Vita 160

Einfallsreiches Einfamilienhaus 

Das Vita 160 von Haas Haus besitzt vieles, was sich Familien für ihr Fertighaus wünschen.

  • Zwei identisch geschnittene Kinderzimmer.
  •  Ein Elternschlafzimmer mit eigener Ankleide, die viel Platz bietet. 
  • Ein geräumiges Familienbad mit abgetrennter Dusche und WC, die Privatsphäre bieten. 
  • Eine offene Küche mit Küchenblock und Vorratskammer.
  • Ein Büro im Erdgeschoss, das als drittes Kinderzimmer dienen kann.
  • Ein Gäste-WC und ein großzügiger Flur mit Abstellraum unter der L-förmigen Treppe. 

Aber nicht nur die Raumplanung innen überzeugt. Auch von außen besticht das Einfamilienhaus mit seiner Architektur im Stil einer modernen Stadtvilla. Besonderes Highlight dabei ist die wirklich riesige Terrasse, die um zwei Ecken läuft und zu einem Teil überdacht ist.  

Weitere Informationen zum Fertighaus Haas Vita 160 von Haas Haus. 

Hausdaten

Hausart Icon
HausartEinfamilienhaus
Bauweise Icon
BauweiseHolz-Tafelbau
Anzahl Räume Icon
Anzahl Räume5
Baustil Icon
BaustilKlassische Familienhäuser
Fassade Icon
FassadePutz
Außenmaße Icon
Außenmaße112 m x 937 m
Wohnfläche Icon
Wohnfläche168.21 m²
Dachform Icon
DachformSattel-/Giebeldach
Energiestandard Icon
EnergiestandardEffizienzhaus 40
Immobilientyp Icon
ImmobilientypMusterhaus
Dachneigung Icon
Dachneigung22°
Hauseigenschaften Icon
HauseigenschaftenGästezimmer
Hausdämmstoff Icon
HausdämmstoffMineralfaser (Glaswolle, Steinwolle)
Heizungsart Icon
HeizungsartWärmepumpe (Luft, Wasser, oder beides)
Pfeil nach unten linksWir schaffen Platz für Ihre Träume

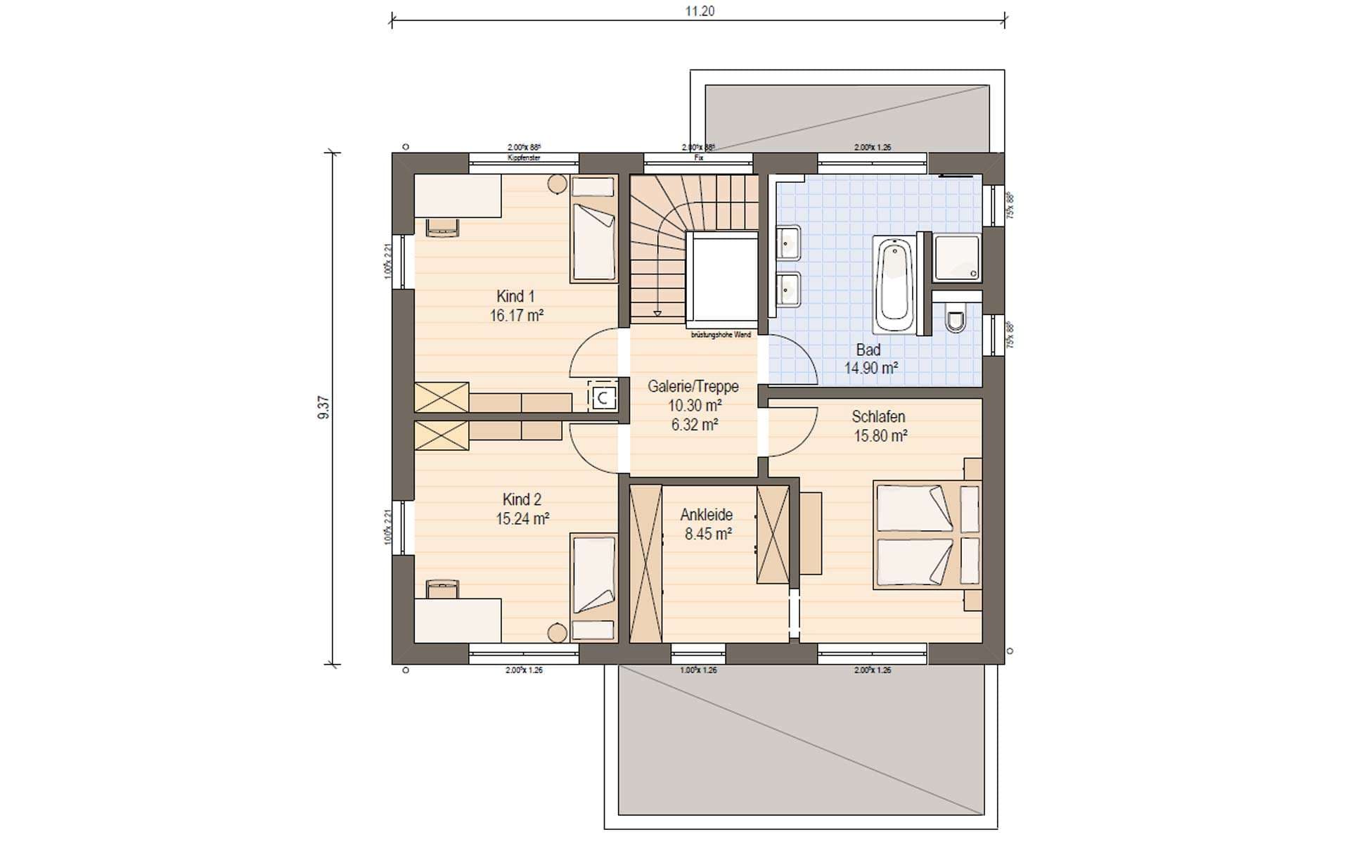
Grundriss

no description
Haas Fertighaus - Vita 160 Grundriss (EG)Wohnfläche EG: 87,35 m²
no description
Haas Fertighaus - Vita 160 Grundriss (OG)Wohnfläche OG: 80,86 m²

Haas Fertighaus - Vita 160

360°Rundgang starten
no description

Unser Team vor Ort

Haas Haus Team FalkenbergFachberater*in bei Haas Fertigbau GmbH
Default Avatar
Wir beraten Sie gerne!Arrow Icon
Haas Haus Team KölnFachberater*in bei Haas Fertigbau GmbH
Default Avatar
House and TreeParksHouse and PinMusterhausHouse on HandAnbieter