1. AnbieterArrow Icon
  2. Haas Fertigbau GmbHArrow Icon
  3. Haas Fertighaus - Haas Z 159 A
Slide 1
Slide 2
Slide 3
Slide 4
Slide 5
Slide 6
Slide 7
Haas_Logo.png
Haas Fertigbau GmbHHaas Fertighaus - Haas Z 159 A
homeKlassische Familienhäuser
livingArea168 m²
energyStandardEffizienzhaus 40
Preis anfragen
Katalog bestellen

Haas Fertighaus - Haas Z 159 A

Gemeinsam wohnen im Zweifamilienhaus

Sie spielen mit dem Gedanken, mit Ihren Freunden oder Geschwistern zusammen ein Haus zu bauen? Dann hat das Zweifamilienhaus Haas Z 159 A die ideale Größe. Außerdem bietet der Zweifamilienhaus Grundriss auf zwei Etagen alle, was ein Generationenhaus aufweisen sollte:

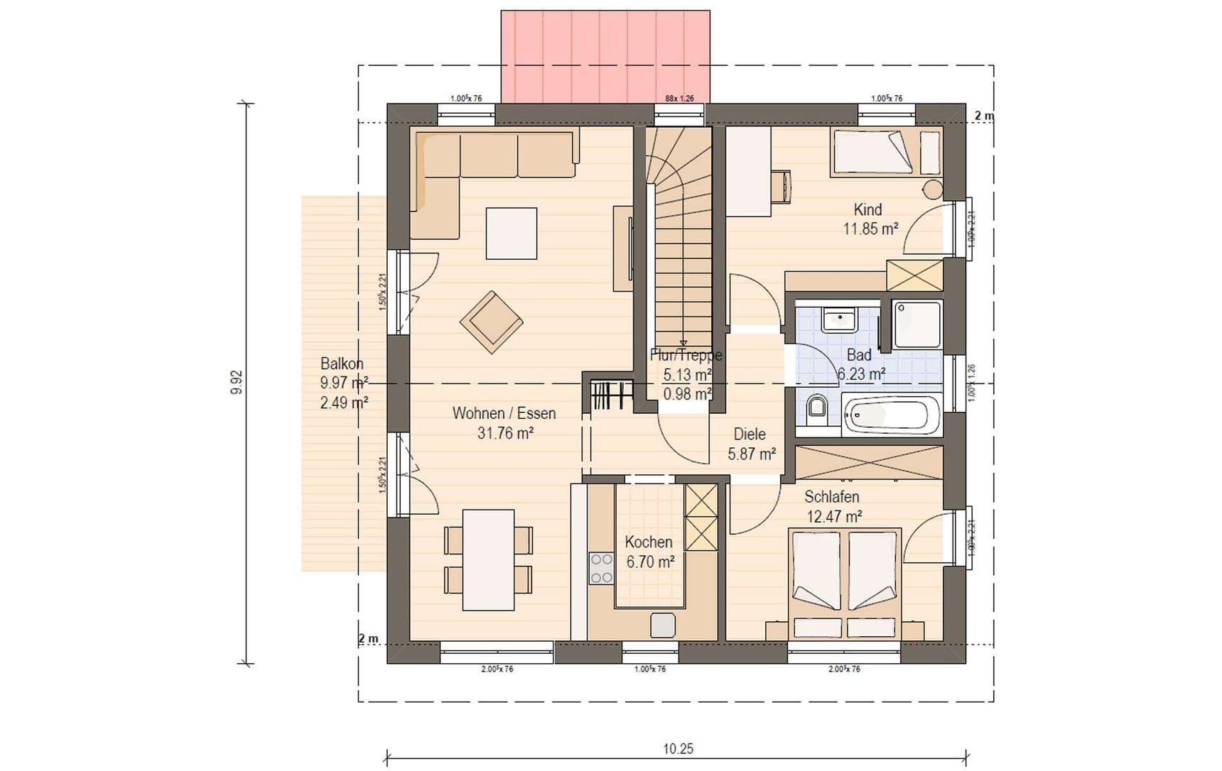
  • Im Erdgeschoss sind auf knapp 90 m² Wohnfläche ein großzügiger Wohn-Essbereich mit offener Küche und eigener Vorratskammer untergebracht. Über die Diele gelangt man zu den beiden Schlafzimmern, zwischen denen das Badezimmer angeordnet ist.
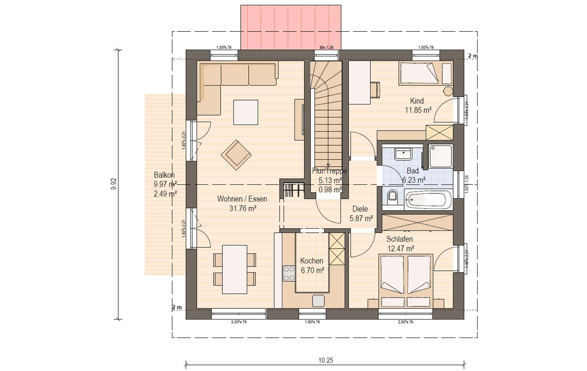
  • Im Obergeschoss verbirgt sich unter dem modernen Satteldach die zweite Wohnung. Diese verfügt über die gleichen Räume wie das Erdgeschoss des Zweifamilienhauses. Einziger Unterschied: Statt einer Vorratskammer ist die Diele größer und statt auf die Terrasse gelangt man auf den Balkon.

Weitere Informationen zum Baureihenhaus Haas Z 159 A von Haas Haus .

Hausdaten

Hausart Icon
HausartZweifamilienhaus
Bauweise Icon
BauweiseHolz-Tafelbau
Anzahl Räume Icon
Anzahl Räume6
Baustil Icon
BaustilKlassische Familienhäuser
Fassade Icon
FassadePutz
Außenmaße Icon
Außenmaße10.25 m x 9.92 m
Wohnfläche Icon
Wohnfläche167.81 m²
Dachform Icon
DachformSattel-/Giebeldach
Energiestandard Icon
EnergiestandardEffizienzhaus 40
Immobilientyp Icon
ImmobilientypPlanungsidee
Dachneigung Icon
Dachneigung22°
Kniestock Icon
Kniestock2.2 m
Hauseigenschaften Icon
HauseigenschaftenTerasse
Hausdämmstoff Icon
HausdämmstoffMineralfaser (Glaswolle, Steinwolle)
Heizungsart Icon
HeizungsartWärmepumpe (Luft, Wasser, oder beides)
Pfeil nach unten linksWir schaffen Platz für Ihre Träume

Grundriss

no description
Haas Fertighaus - Haas Z 159 A Grundriss (EG)Wohnfläche EG: 87,8 m²
no description
Haas Fertighaus - Haas Z 159 A Grundriss (DG)Wohnfläche DG: 80,01 m²

Unser Team vor Ort

Haas Haus Team FalkenbergFachberater*in bei Haas Fertigbau GmbH
Default Avatar
Wir beraten Sie gerne!Arrow Icon

Kataloge

Haas Haus: Hauskatalog
Haas Fertigbau GmbH

Haas Haus: Hauskatalog


House and TreeParksHouse and PinHäuser liveHouse on HandAnbieter