1. AnbieterArrow Icon
  2. Haas Fertigbau GmbHArrow Icon
  3. Haas Fertighaus - Haas D 137 B
Slide 1
Slide 2
Slide 3
Slide 4
Slide 5
Slide 6
Slide 7
Haas_Logo.png
Haas Fertigbau GmbHHaas Fertighaus - Haas D 137 B
homeKlassische Familienhäuser
livingArea132 m²
energyStandardEffizienzhaus 40 Plus
Preis anfragen
Katalog bestellen

Haas Fertighaus - Haas D 137 B

Doppelhaus im klassischen Stil

Mit einem herrlich hellen und offenen Wohn-Essbereich inkl. gemütlicher Küche begrüßt das Doppelhaus Haas D 137 B seine Bewohner. Darüber hinaus finden der Technikraum, ein WC und die geräumige Garderobe im Erdgeschoss Platz. Besonders praktisch ist der Stauraum unter der gewendelten Treppe. Da diese genau gegenüber der Küche liegt, kann man den Stauraum perfekt für Einkäufe oder Küchengeräte nutzen. Im Dachgeschoss befinden sich drei Schlafzimmer und ein Familienbad. Besonderer Clou hierbei sind die beiden Dachgauben, die in Bad und in eines der Schlafzimmer noch mehr Licht und Platz bringen. An Tageslicht mangelt es dem Doppelhaus aber auch sonst nicht, denn durch die zahlreichen bodentiefen Fenster kann es ungehindert in die Zimmer fließen. 

Weitere Informationen zum Fertighaus Haas D 137 B von Haas Haus.

Hausdaten

Hausart Icon
HausartDoppelhaus
Bauweise Icon
BauweiseHolz-Tafelbau
Anzahl Räume Icon
Anzahl Räume4
Baustil Icon
BaustilKlassische Familienhäuser
Fassade Icon
FassadePutz
Außenmaße Icon
Außenmaße11.25 m x 7.85 m
Wohnfläche Icon
Wohnfläche132 m²
Dachform Icon
DachformSattel-/Giebeldach
Energiestandard Icon
EnergiestandardEffizienzhaus 40 Plus
Immobilientyp Icon
ImmobilientypPlanungsidee
Dachneigung Icon
Dachneigung45°
Kniestock Icon
Kniestock0.5 m
Hauseigenschaften Icon
HauseigenschaftenDritter Giebel
Hausdämmstoff Icon
HausdämmstoffMineralfaser (Glaswolle, Steinwolle)
Heizungsart Icon
HeizungsartWärmepumpe (Luft, Wasser, oder beides)
Pfeil nach unten linksWir schaffen Platz für Ihre Träume

Grundriss

Grundriss_Haas_Fertighaus_D_137_B_EG.PNG
Haas Fertighaus - Haas D 137 B Grundriss (EG)Wohnfläche EG: 69,57 m²
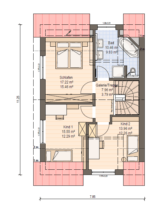
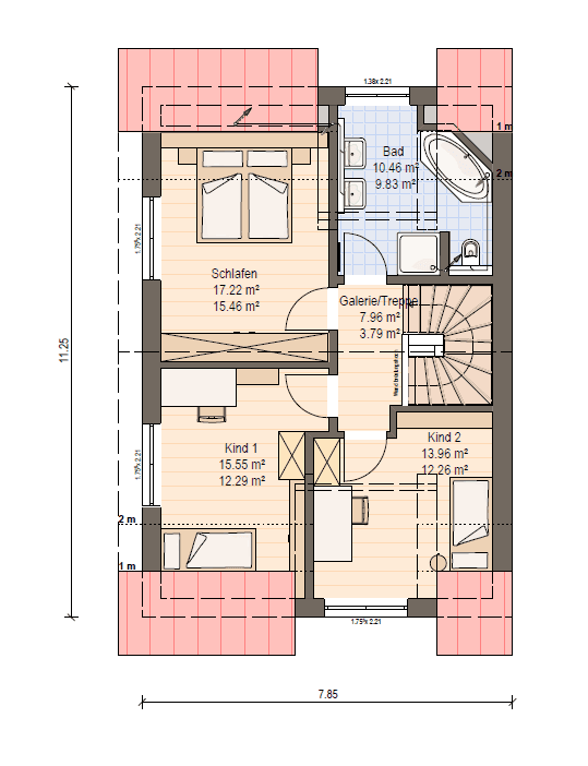
Grundriss_Haas_Fertighaus_D_137_B_DG.PNG
Haas Fertighaus - Haas D 137 B Grundriss (DG)Wohnfläche DG: 65,15 m²

Unser Team vor Ort

Haas Haus Team FalkenbergFachberater*in bei Haas Fertigbau GmbH
Default Avatar
Wir beraten Sie gerne!Arrow Icon

Kataloge

Haas Haus: Hauskatalog
Haas Fertigbau GmbH

Haas Haus: Hauskatalog


House and TreeParksHouse and PinMusterhausHouse on HandAnbieter