1. AnbieterArrow Icon
  2. Haas Fertigbau GmbHArrow Icon
  3. Haas Fertighaus - Haas D 114 B
Slide 1
Slide 2
Slide 3
Slide 4
Slide 5
Slide 6
Haas_Logo.png
Haas Fertigbau GmbHHaas Fertighaus - Haas D 114 B
homeKlassische Familienhäuser
livingArea147 m²
energyStandardEffizienzhaus 40 Plus
Preis anfragen
Katalog bestellen

Haas Fertighaus - Haas D 114 B

Doppelhaus mit schickem Studio

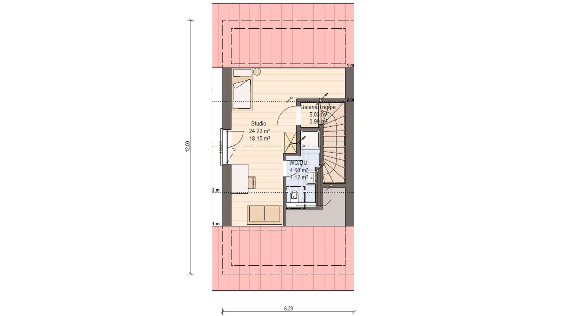
Dass ein Doppelhaus ausreichend Platz für eine Familie mit drei Kindern bietet, beweist das Haas D 114 B auf ganzer Linie. So ist im Erdgeschoss eine geräumige offene Küche mit lichtdurchflutetem Wohn-Essbereich untergebracht. Über die platzsparende Treppe mit integriertem Stauraum geht’s ins Obergeschoss. Hier sind drei Schlafzimmer sowie ein Badezimmer angesiedelt. Das Highlight steckt im Dachgeschoss. Dort findet ein geräumiges Studio Platz, das über ein eigenes Dusch-Bad verfügt.

Weitere Informationen zum Fertighaus Haas D 114 B von Haas Haus.
 

Hausdaten

Hausart Icon
HausartDoppelhaus
Bauweise Icon
BauweiseHolz-Tafelbau
Anzahl Räume Icon
Anzahl Räume5
Baustil Icon
BaustilKlassische Familienhäuser
Fassade Icon
FassadePutz
Außenmaße Icon
Außenmaße12 m x 6.2 m
Wohnfläche Icon
Wohnfläche146.7 m²
Dachform Icon
DachformSattel-/Giebeldach
Energiestandard Icon
EnergiestandardEffizienzhaus 40 Plus
Immobilientyp Icon
ImmobilientypPlanungsidee
Dachneigung Icon
Dachneigung33°
Hauseigenschaften Icon
HauseigenschaftenGästezimmer
Hausdämmstoff Icon
HausdämmstoffMineralfaser (Glaswolle, Steinwolle)
Heizungsart Icon
HeizungsartWärmepumpe (Luft, Wasser, oder beides)
Pfeil nach unten linksWir schaffen Platz für Ihre Träume

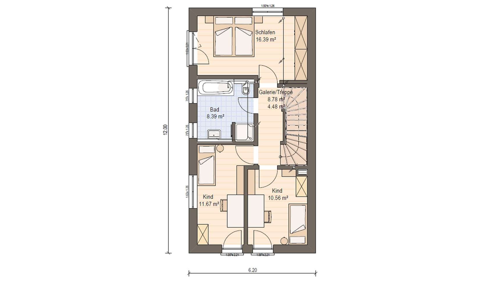
Grundriss

no description
Haas Fertighaus - Haas D 114 B Grundriss (EG)Wohnfläche EG: 57,06 m²
no description
Haas Fertighaus - Haas D 114 B Grundriss (OG)Wohnfläche OG: 55,78 m²
no description
Haas Fertighaus - Haas D 114 B Grundriss (DG)Wohnfläche DG: 33,86 m²

Unser Team vor Ort

Haas Haus Team FalkenbergFachberater*in bei Haas Fertigbau GmbH
Default Avatar
Wir beraten Sie gerne!Arrow Icon

Kataloge

Haas Haus: Hauskatalog
Haas Fertigbau GmbH

Haas Haus: Hauskatalog


House and TreeParksHouse and PinMusterhausHouse on HandAnbieter