1. AnbieterArrow Icon
  2. Haas Fertigbau GmbHArrow Icon
  3. Haas Fertighaus - Haas D 114 A
Slide 1
Slide 2
Slide 3
Slide 4
Slide 5
Slide 6
Haas_Logo.png
Haas Fertigbau GmbHHaas Fertighaus - Haas D 114 A
homeStadtvillen
livingArea112 m²
energyStandardEffizienzhaus 40
Preis anfragen
Katalog bestellen

Haas Fertighaus - Haas D 114 A

Doppelhaus als Stadtvilla

Kein Baustil ist derzeit so angesagt, wie der einer modernen Stadtvilla. Dass sich dieser Stil jederzeit auch als Doppelhaus realisieren lässt, beweist das Haas D 114 A. Es bietet ausreichend viel Platz für zwei Familien. Praktisch ist die viertel gewendelte Treppe. Sie ist kompakt und bietet zudem Stauraum. Auch ansonsten wird der vorhandene Raum in diesem Doppelhaus von Haas Haus perfekt genutzt. So haben im Dachgeschoss drei Schlafzimmer und ein Familienbad Platz, im Erdgeschoss der Wohn-Essbereich mit offener Küche, WC und Garderobe. Was braucht man mehr?

Gut zu wissen: Das Haas D 114 A ist ein Haus aus der Baureihe Haas D. Das bedeutet, dass Sie aus verschiedenen Grundrissen und Raumaufteilungsvarianten wählen können.

Weitere Informationen zum Fertighaus Haas D 114 A von Haas Haus.

Hausdaten

Hausart Icon
HausartDoppelhaus
Bauweise Icon
BauweiseHolz-Tafelbau
Anzahl Räume Icon
Anzahl Räume4
Baustil Icon
BaustilStadtvillen
Fassade Icon
FassadePutz
Außenmaße Icon
Außenmaße12 m x 6.2 m
Wohnfläche Icon
Wohnfläche111.79 m²
Dachform Icon
DachformWalm-/Zeltdach
Energiestandard Icon
EnergiestandardEffizienzhaus 40
Immobilientyp Icon
ImmobilientypPlanungsidee
Dachneigung Icon
Dachneigung20°
Hauseigenschaften Icon
HauseigenschaftenTerasse
Hausdämmstoff Icon
HausdämmstoffMineralfaser (Glaswolle, Steinwolle)
Heizungsart Icon
HeizungsartWärmepumpe (Luft, Wasser, oder beides)
Pfeil nach unten linksWir schaffen Platz für Ihre Träume

Grundriss

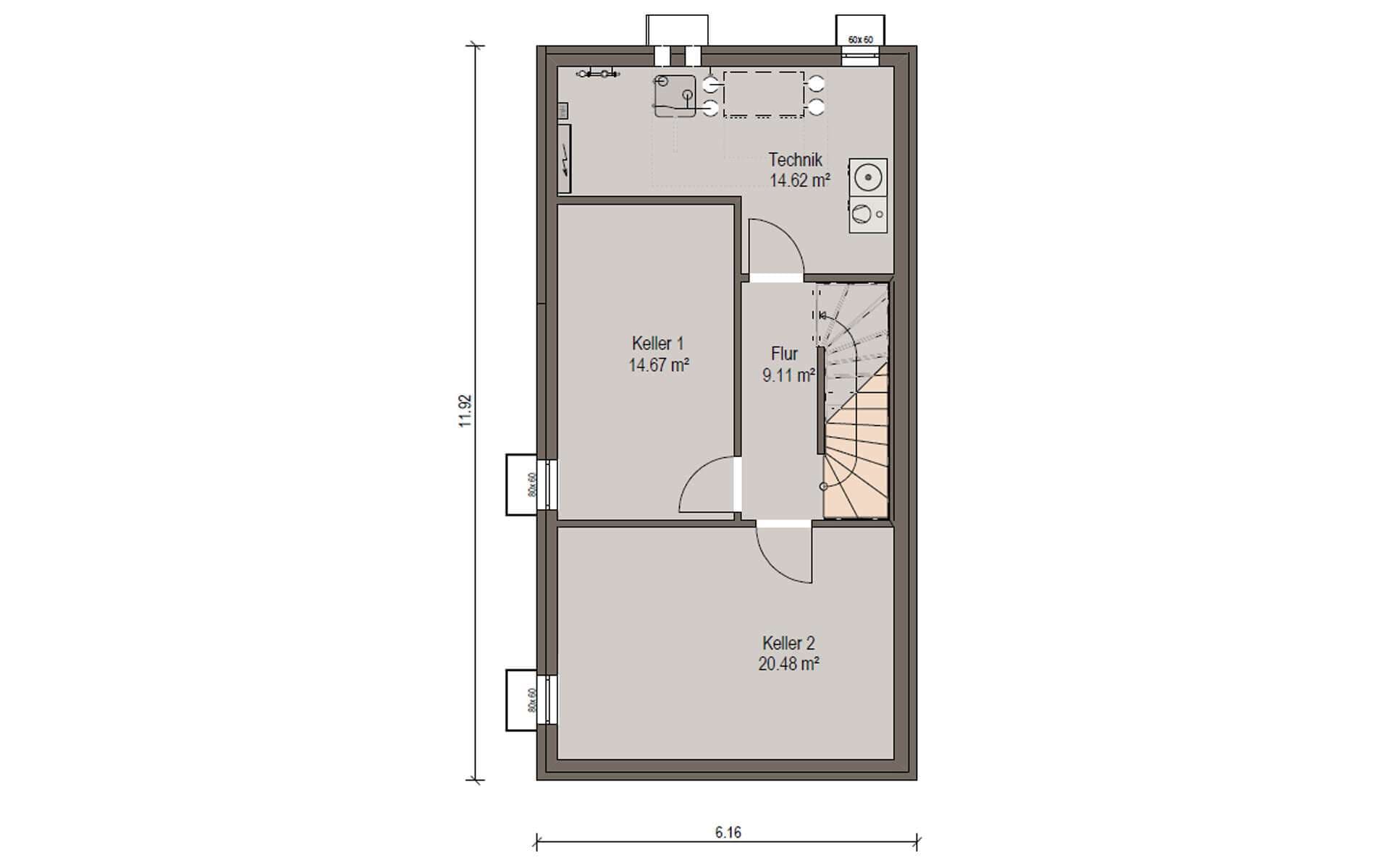
no description
Haas Fertighaus - Haas D 114 A Grundriss (Keller)
no description
Haas Fertighaus - Haas D 114 A Grundriss (EG)Wohnfläche EG: 55,96 m²
no description
Haas Fertighaus - Haas D 114 A Grundriss (OG)Wohnfläche OG: 55,83 m²

Unser Team vor Ort

Haas Haus Team FalkenbergFachberater*in bei Haas Fertigbau GmbH
Default Avatar
Wir beraten Sie gerne!Arrow Icon

Kataloge

Haas Haus: Hauskatalog
Haas Fertigbau GmbH

Haas Haus: Hauskatalog


House and TreeParksHouse and PinMusterhausHouse on HandAnbieter