1. AnbieterArrow Icon
  2. Haas Fertigbau GmbHArrow Icon
  3. Haas Fertighaus - Haas D 112 D
Slide 1
Slide 2
Slide 3
Slide 4
Slide 5
Slide 6
Slide 7
Slide 8
Slide 9
Haas_Logo.png
Haas Fertigbau GmbHHaas Fertighaus - Haas D 112 D
homeKlassische Familienhäuser
livingArea147 m²
energyStandardEffizienzhaus 40 Plus
Preis anfragen
Katalog bestellen

Haas Fertighaus - Haas D 112 D

Platzwunder Doppelhaus

Ein wahres Raumwunder ist das Doppelhaus Haas D 112 D von Haas Haus. Auf 2,5 Geschossen bietet das Fertighaus alles, was sich eine Familie wünschen kann:

  • Eine gemütliche Küche mit offenem Wohn-Essbereich bildet das Herz des Hauses.
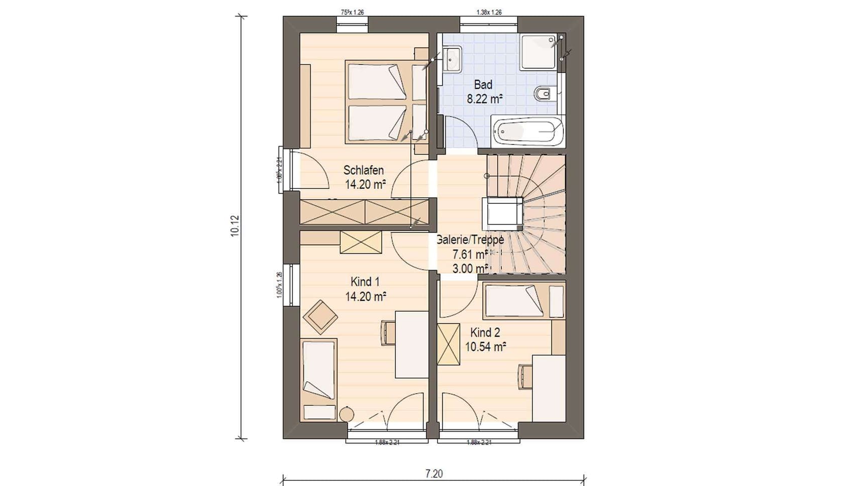
  • Im Obergeschoss sind drei Schlafzimmer sowie das große Familienbad untergebracht.
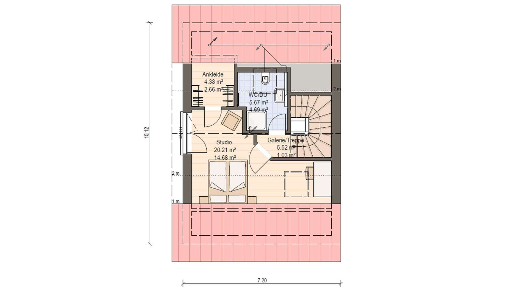
  • Ein kleines Highlight steckt unter dem Dach: Hier verbirgt sich ein Studio mit Ankleide, Schlaf- und Arbeitsbereich sowie ein Bad mit Dusche und WC. Perfekt als eigener Bereich für die Eltern oder ältere Kinder.

Weitere Informationen zum Fertighaus Haas D 112 D von Haas Haus.

Hausdaten

Hausart Icon
HausartDoppelhaus
Bauweise Icon
BauweiseHolz-Tafelbau
Anzahl Räume Icon
Anzahl Räume5
Baustil Icon
BaustilKlassische Familienhäuser
Fassade Icon
FassadePutz
Außenmaße Icon
Außenmaße10.12 m x 7.2 m
Wohnfläche Icon
Wohnfläche147.13 m²
Dachform Icon
DachformSattel-/Giebeldach
Etagen Icon
Etagen2.5
Energiestandard Icon
EnergiestandardEffizienzhaus 40 Plus
Immobilientyp Icon
ImmobilientypPlanungsidee
Dachneigung Icon
Dachneigung38°
Hauseigenschaften Icon
HauseigenschaftenGästezimmer
Hausdämmstoff Icon
HausdämmstoffMineralfaser (Glaswolle, Steinwolle)
Heizungsart Icon
HeizungsartWärmepumpe (Luft, Wasser, oder beides)
Pfeil nach unten linksWir schaffen Platz für Ihre Träume

Grundriss

no description
Haas Fertighaus - Haas D 112 D Grundriss (EG)Wohnfläche EG: 56,57 m²
no description
Haas Fertighaus - Haas D 112 D Grundriss (OG)Wohnfläche OG: 54,77 m²
no description
Haas Fertighaus - Haas D 112 D Grundriss (DG)Wohnfläche DG: 35,79 m²

Unser Team vor Ort

Haas Haus Team FalkenbergFachberater*in bei Haas Fertigbau GmbH
Default Avatar
Wir beraten Sie gerne!Arrow Icon

Kataloge

Haas Haus: Hauskatalog
Haas Fertigbau GmbH

Haas Haus: Hauskatalog


House and TreeParksHouse and PinMusterhausHouse on HandAnbieter