1. AnbieterArrow Icon
  2. Haas Fertigbau GmbHArrow Icon
  3. Haas Fertigbau - Haus S 155 A
Slide 1
Slide 2
Slide 3
Slide 4
Slide 5
Slide 6
Slide 7
Haas_Logo.png
Haas Fertigbau GmbHHaas Fertigbau - Haus S 155 A
homeKubushäuser im Bauhausstil
livingArea157 m²
energyStandardEffizienzhaus 40
Preis anfragen
Katalog bestellen

Haas Fertigbau - Haus S 155 A

Modernes Fertighaus im Bauhausstil

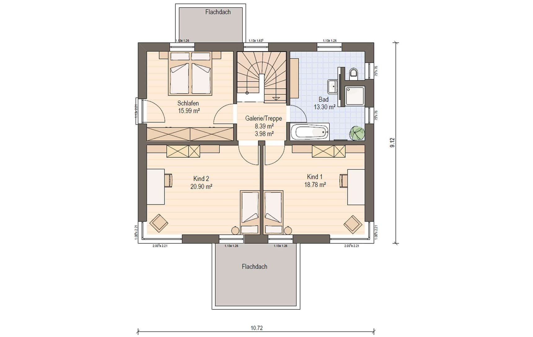
Klar, kubistisch, reduziert – das Haas S 155 A von Haas Haus ist das perfekte Beispiel für ein modernes Fertighaus im Bauhausstil. Auf einer Fläche von 10,60 m x 9 m zeigt der Fertighaus Kubus, wie modernes Wohnen aussehen kann. Im Erdgeschoss herrscht eine offene Raumgestaltung. So geht der Wohnbereich nahtlos in das Esszimmer über, an das sich die offene Küche anschließt. Natürlich gehört zum Fertighaus im Bauhausstil auch etwas Luxus, hier präsentiert durch eine über Eck gestaltete Küche mit freistehendem Küchenblock. Direkt unter dem Flachdach des Einfamilienhauses sind zwei großzügige Kinderzimmer sowie ein geräumiges Schlafzimmer für die Eltern und ein nicht minder großes Badezimmer untergebracht – groß genug für eine Sauna.

Auch mit einem Walmdach oder Pultdach kann das Fertighaus Haas S 155 A gestaltet werden, da es nur eine Version der Baureihe Haas S 155 ist. Ihr Fachberater von Haas Haus stellt Ihnen gerne die verschiedenen Varianten des Fertighauses vor, zeigt Ihnen, welche Architekturbauteile sie wählen können und welche der 59 Grundrisse Ihre Wünsche am besten erfüllen.

Weitere Informationen zum Baureihenhaus Haas S 155 A von Haas Haus

Hausdaten

Hausart Icon
HausartEinfamilienhaus
Bauweise Icon
BauweiseHolz-Tafelbau
Anzahl Räume Icon
Anzahl Räume4
Baustil Icon
BaustilKubushäuser im Bauhausstil
Fassade Icon
FassadePutz
Außenmaße Icon
Außenmaße10.72 m x 9.12 m
Wohnfläche Icon
Wohnfläche156.67 m²
Dachform Icon
DachformFlachdach
Energiestandard Icon
EnergiestandardEffizienzhaus 40
Immobilientyp Icon
ImmobilientypPlanungsidee
Hauseigenschaften Icon
HauseigenschaftenTerasse
Hausdämmstoff Icon
HausdämmstoffMineralfaser (Glaswolle, Steinwolle)
Heizungsart Icon
HeizungsartWärmepumpe (Luft, Wasser, oder beides)
Pfeil nach unten linksWir schaffen Platz für Ihre Träume

Grundriss

no description
Haas Fertigbau - Haus S 155 A Grundriss (EG)Wohnfläche EG: 79,31 m²
no description
Haas Fertigbau - Haus S 155 A Grundriss (OG)Wohnfläche OG: 77,36 m²

Unser Team vor Ort

Haas Haus Team FalkenbergFachberater*in bei Haas Fertigbau GmbH
Default Avatar
Wir beraten Sie gerne!Arrow Icon

Kataloge

Haas Haus: Hauskatalog
Haas Fertigbau GmbH

Haas Haus: Hauskatalog


House and TreeParksHouse and PinMusterhausHouse on HandAnbieter