1. AnbieterArrow Icon
  2. Haas Fertigbau GmbHArrow Icon
  3. Haas Fertigbau - Haus S 154 C
Slide 1
Slide 2
Slide 3
Slide 4
Slide 5
Slide 6
Slide 7
Haas_Logo.png
Haas Fertigbau GmbHHaas Fertigbau - Haus S 154 C
homeKlassische Familienhäuser
livingArea163 m²
energyStandardEffizienzhaus 40
Preis anfragen
Katalog bestellen

Haas Fertigbau - Haus S 154 C

Modernes Einfamilienhaus

Eine großzügige Terrasse mit praktischer Überdachung. Eine Familienküche mit eigener Vorratskammer. Ein großzügiger Wohn-/Essbereich mit Zugang zur Terrasse. Ein eigenes Gäste WC. Drei Kinderzimmer. Ein Elternschlafzimmer und ein großes Familienbad. All das findet bei dem Einfamilienhaus  Haas S 154 C Platz. Somit wird es zum passenden Fertighaus für Familien mit drei Kindern.

Weitere Informationen zum Baureihenhaus Haas S 154 C von Haas Haus

Hausdaten

Hausart Icon
HausartEinfamilienhaus
Bauweise Icon
BauweiseMassivholzkonstruktion
Anzahl Räume Icon
Anzahl Räume5
Baustil Icon
BaustilKlassische Familienhäuser
Fassade Icon
FassadePutz
Außenmaße Icon
Außenmaße11.62 m x 8.42 m
Wohnfläche Icon
Wohnfläche163.27 m²
Dachform Icon
DachformSattel-/Giebeldach
Energiestandard Icon
EnergiestandardEffizienzhaus 40
Immobilientyp Icon
ImmobilientypPlanungsidee
Dachneigung Icon
Dachneigung22°
Kniestock Icon
Kniestock2.2 m
Hauseigenschaften Icon
HauseigenschaftenGästezimmer
Hausdämmstoff Icon
HausdämmstoffMineralfaser (Glaswolle, Steinwolle)
Heizungsart Icon
HeizungsartWärmepumpe (Luft, Wasser, oder beides)
Pfeil nach unten linksWir schaffen Platz für Ihre Träume

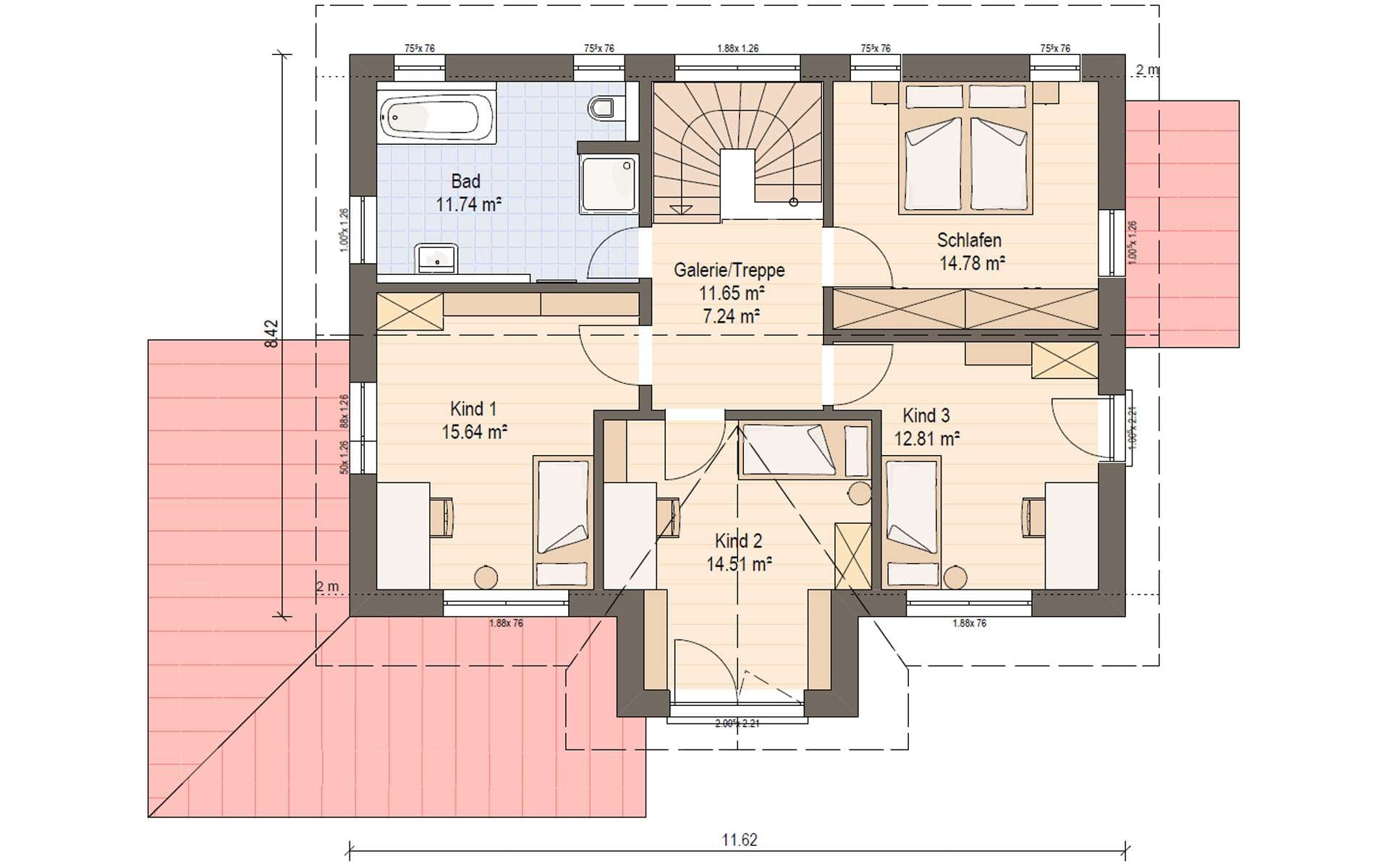
Grundriss

no description
Haas Fertigbau - Haus S 154 C Grundriss (EG)Wohnfläche EG: 82,14 m²
no description
Haas Fertigbau - Haus S 154 C Grundriss (DG)Wohnfläche DG: 81,13 m²

Unser Team vor Ort

Haas Haus Team FalkenbergFachberater*in bei Haas Fertigbau GmbH
Default Avatar
Wir beraten Sie gerne!Arrow Icon

Kataloge

Haas Haus: Hauskatalog
Haas Fertigbau GmbH

Haas Haus: Hauskatalog


House and TreeParksHouse and PinMusterhausHouse on HandAnbieter