1. AnbieterArrow Icon
  2. Haas Fertigbau GmbHArrow Icon
  3. Haas Fertigbau - Haus S 154 B
Slide 1
Slide 2
Slide 3
Slide 4
Slide 5
Slide 6
Haas_Logo.png
Haas Fertigbau GmbHHaas Fertigbau - Haus S 154 B
homeStadtvillen
livingArea163 m²
energyStandardEffizienzhaus 40
Preis anfragen
Katalog bestellen

Haas Fertigbau - Haus S 154 B

Toskanahaus mit mehr Platz fürs Leben

Familien mit zwei oder drei Kindern finden im Haas S 154 B ihr Traumhaus. Dieses Einfamilienhaus bietet ein Plus an Raum und Flexibilität. So stehen bei dem klassischen Toskanahaus mit Walmdach und einem Erker über Eck über 154 m² Nettogrundfläche zur Verfügung. Ausreichend Platz für:

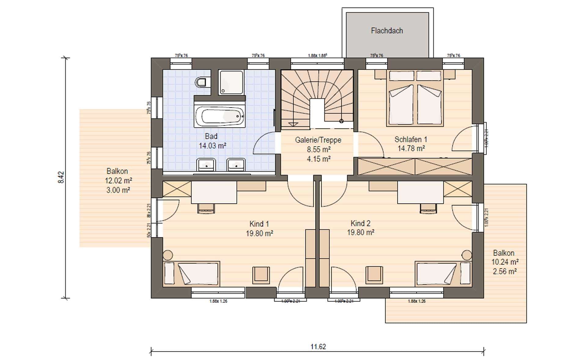
  • Einen eigenen Gästebereich mit Gästezimmer, Gästebad mit Badewanne, Dusche und WC sowie eine dritte Toilette. Perfekt für die Großeltern oder ein Au-Pair.
  • Einen über 45 m² großen Wohn-Essbereich mit offentoskana-hauser Küche und praktischer Platzierung des Wohnzimmers im Erker.
  • Ein großes Familienbad.
  • Zwei beinah 20 m² große Kinderzimmer, beide mit eigener Dachterrasse.

Sie können Haas S 154 B aber auch ganz anders gestalten, da es eine Variante der Baureihe Haas S 154 ist.

Weitere Informationen zum Baureihenhaus Haas S 154 B von Haas Haus

Hausdaten

Hausart Icon
HausartEinfamilienhaus
Bauweise Icon
BauweiseHolz-Tafelbau
Anzahl Räume Icon
Anzahl Räume5
Baustil Icon
BaustilStadtvillen
Fassade Icon
FassadePutz
Außenmaße Icon
Außenmaße11.62 m x 8.42 m
Wohnfläche Icon
Wohnfläche162.68 m²
Dachform Icon
DachformWalm-/Zeltdach
Energiestandard Icon
EnergiestandardEffizienzhaus 40
Immobilientyp Icon
ImmobilientypPlanungsidee
Dachneigung Icon
Dachneigung22°
Hauseigenschaften Icon
HauseigenschaftenGästezimmer
Hausdämmstoff Icon
HausdämmstoffMineralfaser (Glaswolle, Steinwolle)
Heizungsart Icon
HeizungsartWärmepumpe (Luft, Wasser, oder beides)
Pfeil nach unten linksWir schaffen Platz für Ihre Träume

Grundriss

no description
Haas Fertigbau - Haus S 154 B Grundriss (EG)Wohnfläche EG: 85,72 m²
no description
Haas Fertigbau - Haus S 154 B Grundriss (OG)Wohnfläche OG: 76,96 m²

Unser Team vor Ort

Haas Haus Team FalkenbergFachberater*in bei Haas Fertigbau GmbH
Default Avatar
Wir beraten Sie gerne!Arrow Icon

Kataloge

Haas Haus: Hauskatalog
Haas Fertigbau GmbH

Haas Haus: Hauskatalog


House and TreeParksHouse and PinMusterhausHouse on HandAnbieter