1. AnbieterArrow Icon
  2. Haas Fertigbau GmbHArrow Icon
  3. Haas Fertigbau - Haus S 154 A
Slide 1
Slide 2
Slide 3
Slide 4
Slide 5
Slide 6
Haas_Logo.png
Haas Fertigbau GmbHHaas Fertigbau - Haus S 154 A
homeStadtvillen
livingArea155 m²
energyStandardEffizienzhaus 40
Preis anfragen
Katalog bestellen

Haas Fertigbau - Haus S 154 A

Toskanahaus mit raffinierten Ein- und Ausblicken

Sie möchten möglichst viel Sonnenlicht in Ihr Haus lassen? Dann ist das hier vorgestellte Haas S 154 A einen Blick Wert. Durch das spezielle Fensterpaket besitzt das Toskana Haus zwei über Eck gestaltete Verglasungen. Von außen ist das ein raffinierter Hingucker, innen bietet die großzügige Verglasung tolle Ausblicke und lässt viel Licht in die Räume des Toskana Hauses fließen. Weiteres Highlight des Fertighauses ist die große Terrasse mit Überdachung.

Wenn dieser Baustil für Sie nicht in Frage kommt, können Sie das Haus der Baureihe Haas S 154 auch ohne Fensterpaket und stattdessen mit anderen Architekturbauteilen wie einem Erker oder Balkon gestalten. 

Weitere Informationen zum Baureihenhaus Haas S 154 A von Haas Haus

Hausdaten

Hausart Icon
HausartEinfamilienhaus
Bauweise Icon
BauweiseMassivholzkonstruktion
Anzahl Räume Icon
Anzahl Räume4
Baustil Icon
BaustilStadtvillen
Fassade Icon
FassadePutz
Außenmaße Icon
Außenmaße11.62 m x 8.42 m
Wohnfläche Icon
Wohnfläche155.02 m²
Dachform Icon
DachformWalm-/Zeltdach
Energiestandard Icon
EnergiestandardEffizienzhaus 40
Immobilientyp Icon
ImmobilientypPlanungsidee
Dachneigung Icon
Dachneigung22°
Hauseigenschaften Icon
HauseigenschaftenTerasse
Hausdämmstoff Icon
HausdämmstoffMineralfaser (Glaswolle, Steinwolle)
Heizungsart Icon
HeizungsartWärmepumpe (Luft, Wasser, oder beides)
Pfeil nach unten linksWir schaffen Platz für Ihre Träume

Grundriss

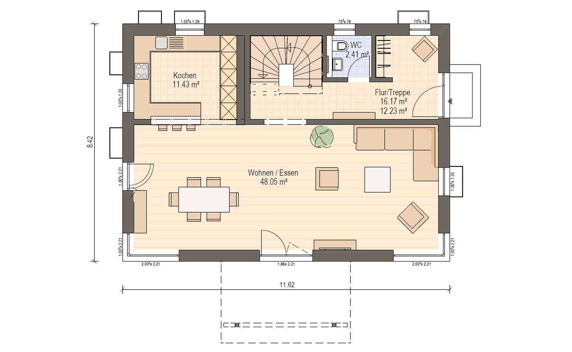
no description
Haas Fertigbau - Haus S 154 A Grundriss (EG)Wohnfläche EG: 78,06 m²
no description
Haas Fertigbau - Haus S 154 A Grundriss (OG)Wohnfläche OG: 76,96 m²

Unser Team vor Ort

Haas Haus Team FalkenbergFachberater*in bei Haas Fertigbau GmbH
Default Avatar
Wir beraten Sie gerne!Arrow Icon

Kataloge

Haas Haus: Hauskatalog
Haas Fertigbau GmbH

Haas Haus: Hauskatalog


House and TreeParksHouse and PinMusterhausHouse on HandAnbieter