1. AnbieterArrow Icon
  2. Haas Fertigbau GmbHArrow Icon
  3. Haas Fertigbau - Haus S 140 D
Slide 1
Slide 2
Slide 3
Slide 4
Slide 5
Slide 6
Slide 7
Slide 8
Slide 9
Haas_Logo.png
Haas Fertigbau GmbHHaas Fertigbau - Haus S 140 D
homeLandhäuser
livingArea149 m²
energyStandardEffizienzhaus 40
Preis anfragen
Katalog bestellen

Haas Fertigbau - Haus S 140 D

Wohnen unter dem praktischen Pultdach

Genießen Sie die Vorzüge von zwei kompletten Vollgeschossen im Haas S 140 D – einem Einfamilienhaus mit Pultdach! Kombiniert mit einem zweigeschossigen Erker, dem zweigeteilten Balkon und einer partiellen Holzverkleidung erhält das Fertighaus einen modernen Touch. Im Innern des Hauses ist alles geboten, was eine Familie benötigt:

  • Das Erdgeschoss dominiert der große Wohn-Essbereich mit offener Küche.
  • Eine Vorratskammer grenzt direkt an die Küche an und ist für Familien unverzichtbar.
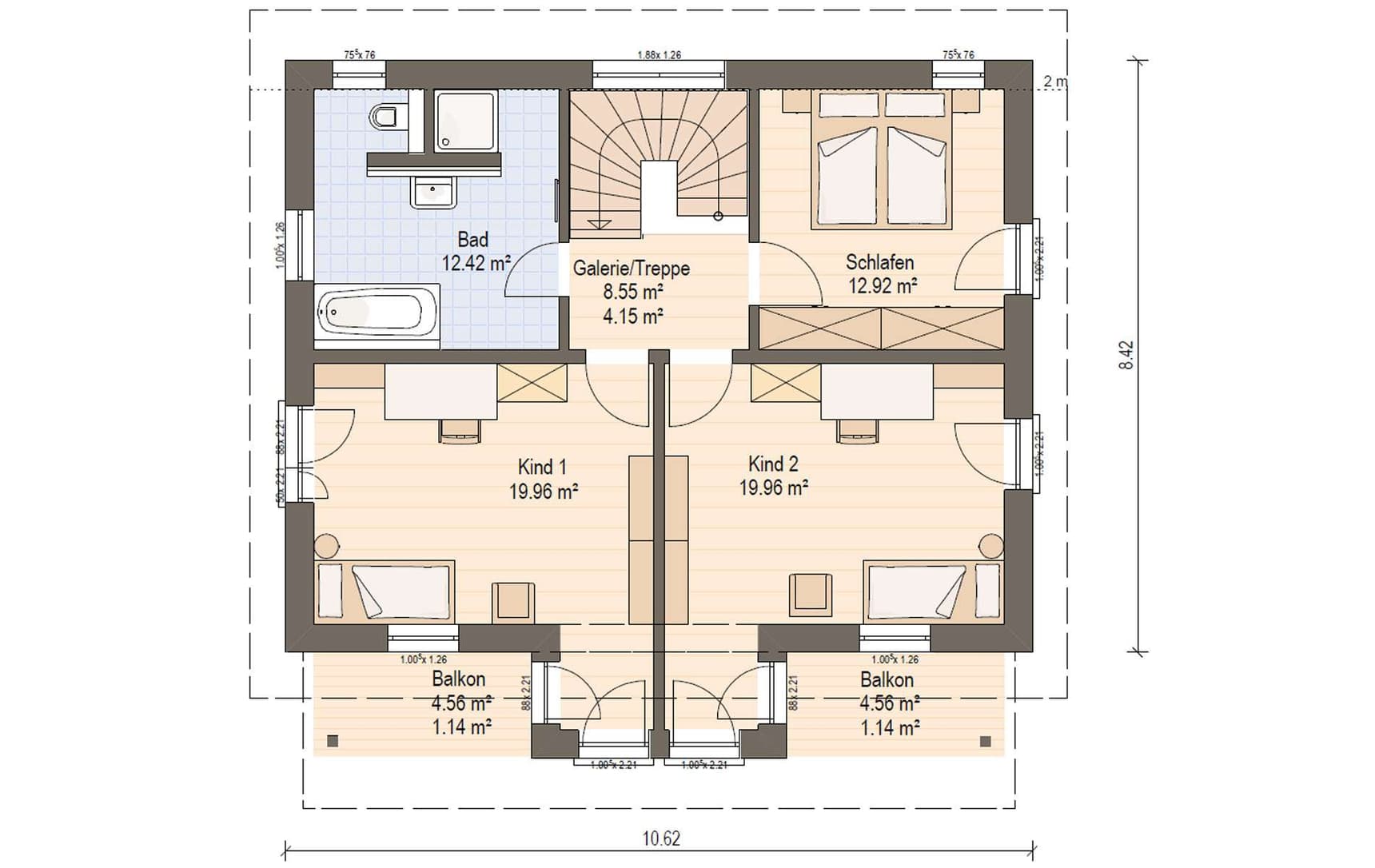
  • Im Obergeschoss sind zwei 20 m² große Kinderzimmer untergebracht, die jeweils über einen eigenen Balkon verfügen.
  • Auch ein großes Familienbad und das Elternschlafzimmer haben im ersten Stock des Einfamilienhauses ausreichend Platz.

Anderes Dach gefällig? Kein Problem! Wenn Sie möchten, können Sie Haas S 140 D auch mit einer anderen Dachform, einem Keller oder ohne Balkon gestalten.

Weitere Informationen zum Baureihenhaus Haas S 140 D von Haas Haus

Hausdaten

Hausart Icon
HausartEinfamilienhaus
Bauweise Icon
BauweiseMassivholzkonstruktion
Anzahl Räume Icon
Anzahl Räume4
Baustil Icon
BaustilLandhäuser
Fassade Icon
FassadePutz
Außenmaße Icon
Außenmaße10.62 m x 8.42 m
Wohnfläche Icon
Wohnfläche149.17 m²
Dachform Icon
DachformPultdach
Energiestandard Icon
EnergiestandardEffizienzhaus 40
Immobilientyp Icon
ImmobilientypPlanungsidee
Dachneigung Icon
Dachneigung14°
Kniestock Icon
Kniestock2.2 m
Hauseigenschaften Icon
HauseigenschaftenTerasse
Hausdämmstoff Icon
HausdämmstoffMineralfaser (Glaswolle, Steinwolle)
Heizungsart Icon
HeizungsartWärmepumpe (Luft, Wasser, oder beides)
Pfeil nach unten linksWir schaffen Platz für Ihre Träume

Grundriss

no description
Haas Fertigbau - Haus S 140 D Grundriss (EG)Wohnfläche EG: 75,36 m²
no description
Haas Fertigbau - Haus S 140 D Grundriss (DG)Wohnfläche DG: 73,81 m²

Unser Team vor Ort

Haas Haus Team FalkenbergFachberater*in bei Haas Fertigbau GmbH
Default Avatar
Wir beraten Sie gerne!Arrow Icon

Kataloge

Haas Haus: Hauskatalog
Haas Fertigbau GmbH

Haas Haus: Hauskatalog


House and TreeParksHouse and PinMusterhausHouse on HandAnbieter