1. AnbieterArrow Icon
  2. Haas Fertigbau GmbHArrow Icon
  3. Haas Fertigbau - Haus S 140 A
Slide 1
Slide 2
Slide 3
Slide 4
Slide 5
Slide 6
Slide 7
Haas_Logo.png
Haas Fertigbau GmbHHaas Fertigbau - Haus S 140 A
homeKlassische Familienhäuser
livingArea144 m²
energyStandardEffizienzhaus 40
Preis anfragen
Katalog bestellen

Haas Fertigbau - Haus S 140 A

Fertighaus mit Satteldach - Ideal für Familien

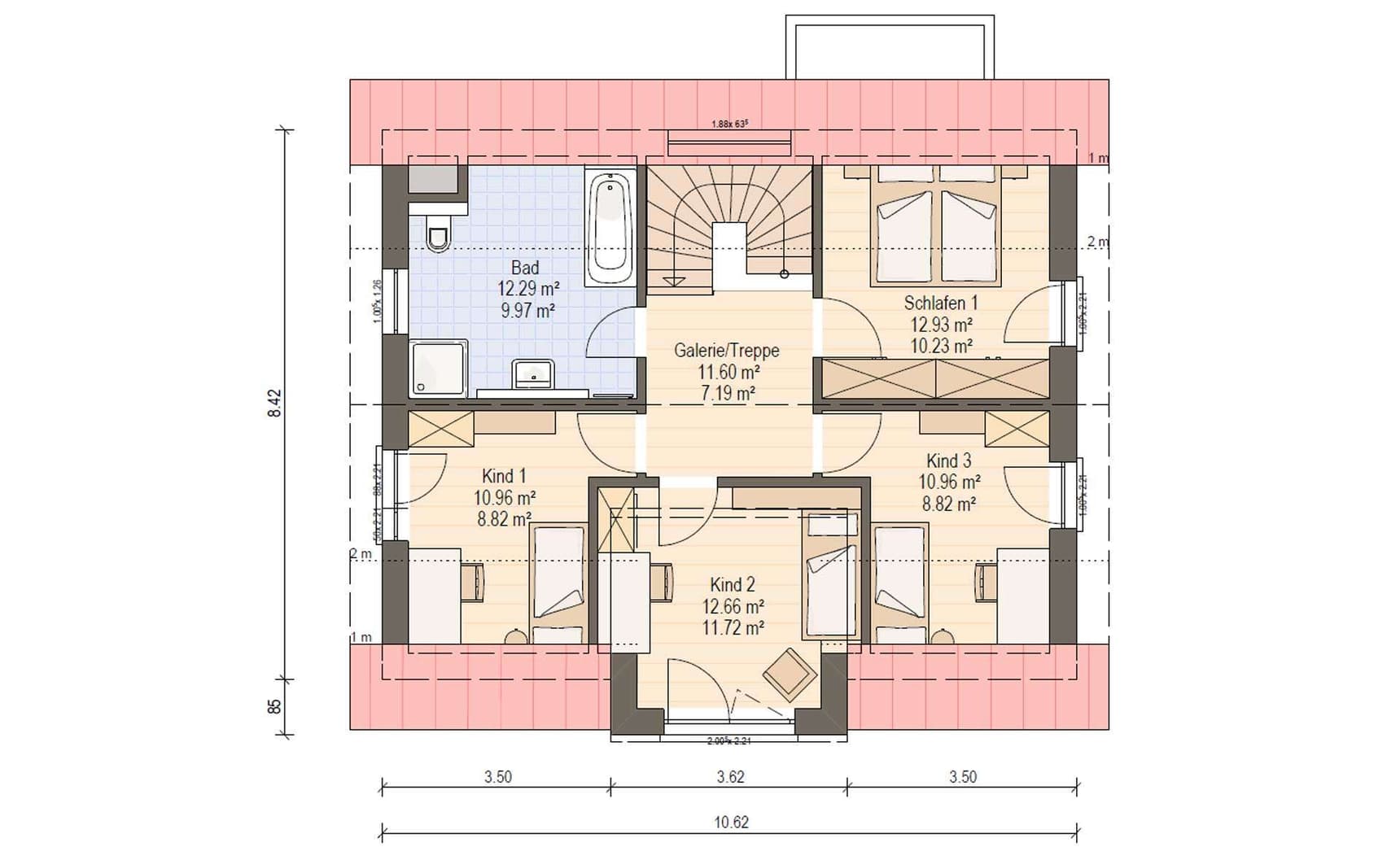
Modern und zugleich klassisch, das sind die Attribute vom Haas S 140 A – einem Fertighaus mit Satteldach und zweigeschossigem Erker. Das Flachdach des Erkers verleiht dem Einfamilienhaus  zeitgemäßes Flair. Der Erker ist aber nicht nur schick, sondern auch funktional. So ist im Obergeschoss ein drittes Kinderzimmer untergebracht, im Erdgeschoss wird der Wohnbereich um ein lichtdurchflutetes Element erweitert. Obwohl das Fertighaus Platz für eine Familie mit drei Kindern bietet, ist es mit seinen Außenmaßen von gut 10 m x 8 m noch kompakt genug für kleinere Grundstücken in der Stadt.

Weitere Informationen zum Baureihenhaus Haas S 140 A von Haas Haus

Hausdaten

Hausart Icon
HausartEinfamilienhaus
Bauweise Icon
BauweiseMassivholzkonstruktion
Anzahl Räume Icon
Anzahl Räume5
Baustil Icon
BaustilKlassische Familienhäuser
Fassade Icon
FassadePutz
Außenmaße Icon
Außenmaße10.62 m x 8.42 m
Wohnfläche Icon
Wohnfläche144.18 m²
Dachform Icon
DachformSattel-/Giebeldach
Energiestandard Icon
EnergiestandardEffizienzhaus 40
Immobilientyp Icon
ImmobilientypPlanungsidee
Dachneigung Icon
Dachneigung32°
Kniestock Icon
Kniestock1 m
Hauseigenschaften Icon
HauseigenschaftenGästezimmer
Hausdämmstoff Icon
HausdämmstoffMineralfaser (Glaswolle, Steinwolle)
Heizungsart Icon
HeizungsartWärmepumpe (Luft, Wasser, oder beides)
Pfeil nach unten linksWir schaffen Platz für Ihre Träume

Grundriss

no description
Haas Fertigbau - Haus S 140 A Grundriss (EG)Wohnfläche EG: 72,78 m²
no description
Haas Fertigbau - Haus S 140 A Grundriss (DG)Wohnfläche DG: 71,4 m²

Unser Team vor Ort

Haas Haus Team FalkenbergFachberater*in bei Haas Fertigbau GmbH
Default Avatar
Wir beraten Sie gerne!Arrow Icon

Kataloge

Haas Haus: Hauskatalog
Haas Fertigbau GmbH

Haas Haus: Hauskatalog


House and TreeParksHouse and PinMusterhausHouse on HandAnbieter