1. AnbieterArrow Icon
  2. Haas Fertigbau GmbHArrow Icon
  3. Haas Fertigbau - Haas Z 244 A
Slide 1
Slide 2
Slide 3
Slide 4
Slide 5
Slide 6
Slide 7
Slide 8
Slide 9
Slide 10
Slide 11
Slide 12
Slide 13
Haas_Logo.png
Haas Fertigbau GmbHHaas Fertigbau - Haas Z 244 A
homeStadtvillen
livingArea243 m²
energyStandardEffizienzhaus 40
Preis anfragen
Katalog bestellen

Haas Fertigbau - Haas Z 244 A

Das geklonte Zweifamilienhaus

Ein Zweifamilienhaus, das im Erdgeschoss genauso aussieht wie im Obergeschoss, gibt es nicht? Doch! Bei dem Zweifamilienhaus Haas Z 244 A von Haas Haus gleicht eine Etage der anderen. Jede Wohnfläche der Stadtvilla verfügt über:

  • ein Elternschlafzimmer sowie zwei Kinderzimmer
  • ein geräumiges Familienbad sowie ein separates Gäste-WC
  • eine offene Küche mit direkt angrenzendem Wohn-Essbereich und Zugang zur Terrasse bzw. dem Balkon

Kurzum: Das perfekte Generationenhaus für Geschwister, die zusammen bauen wollen. Natürlich eignet sich das Fertighaus auch für den Bau mit Freunden oder den Eltern. Am besten vereinbaren Sie einen Beratungstermin und informieren sich darin über die Vorteile der Zweifamilienhäuser. 

Weitere Informationen zum Baureihenhaus Haas Z 244 A von Haas Haus.

Hausdaten

Hausart Icon
HausartZweifamilienhaus
Bauweise Icon
BauweiseMassivholzkonstruktion
Anzahl Räume Icon
Anzahl Räume8
Baustil Icon
BaustilStadtvillen
Fassade Icon
FassadePutz
Außenmaße Icon
Außenmaße16.25 m x 11.75 m
Wohnfläche Icon
Wohnfläche243.04 m²
Dachform Icon
DachformWalm-/Zeltdach
Energiestandard Icon
EnergiestandardEffizienzhaus 40
Immobilientyp Icon
ImmobilientypPlanungsidee
Dachneigung Icon
Dachneigung22°
Hauseigenschaften Icon
HauseigenschaftenTerasse
Hausdämmstoff Icon
HausdämmstoffMineralfaser (Glaswolle, Steinwolle)
Heizungsart Icon
HeizungsartWärmepumpe (Luft, Wasser, oder beides)
Pfeil nach unten linksWir schaffen Platz für Ihre Träume

Grundriss

no description
Haas Fertigbau - Haas Z 244 A Grundriss (Keller)
no description
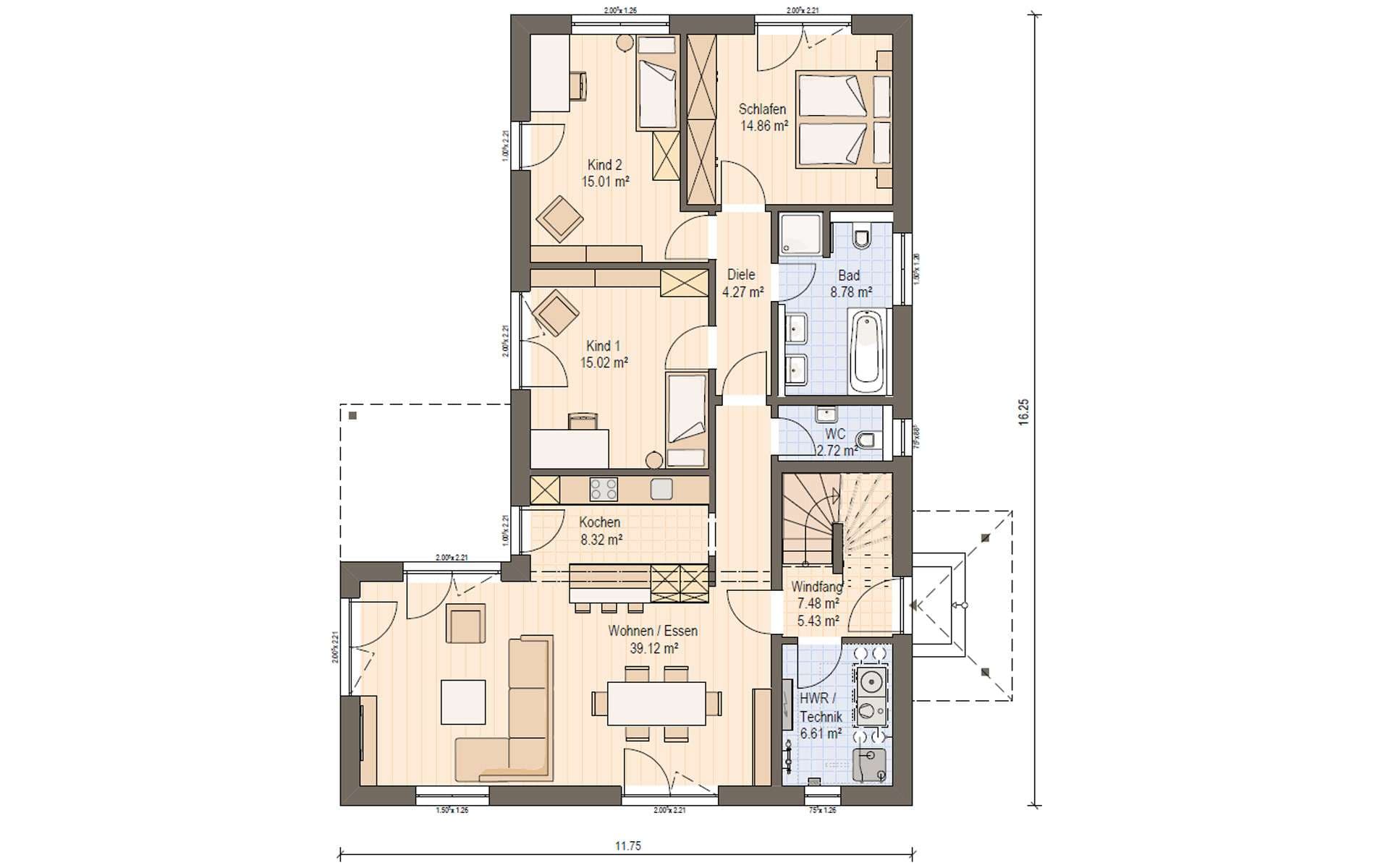
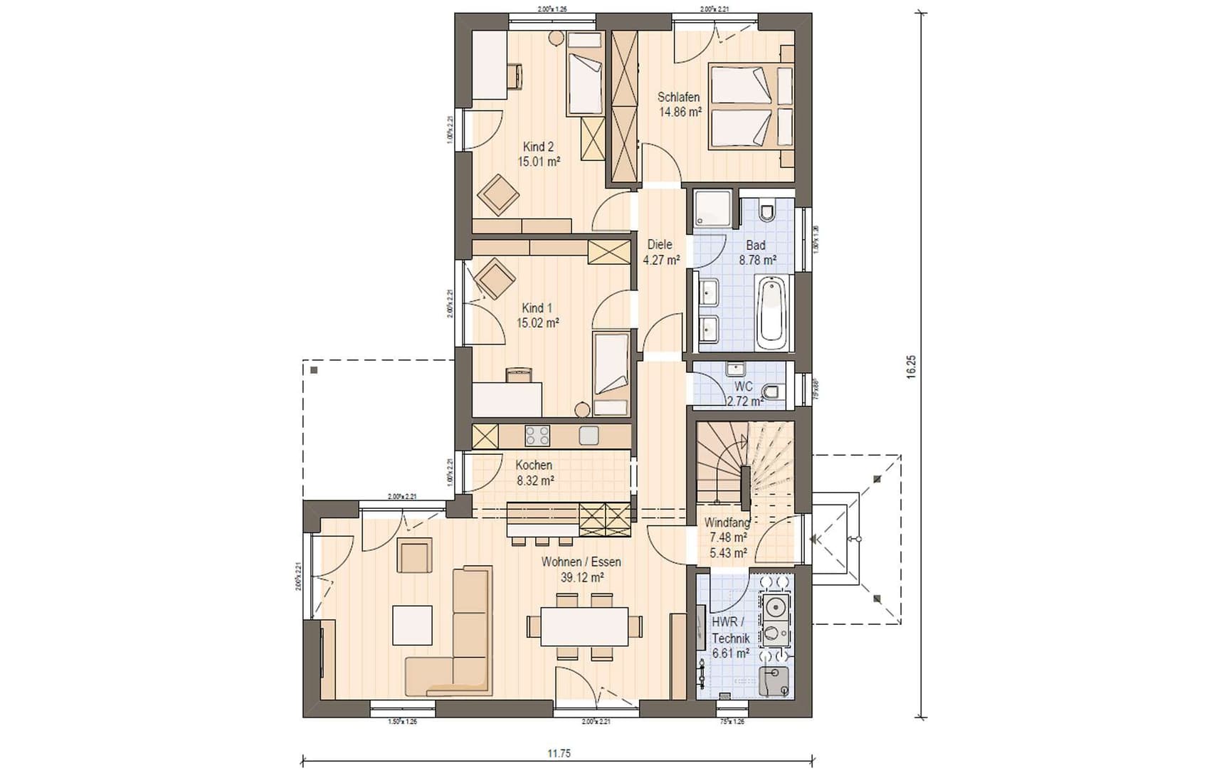
Haas Fertigbau - Haas Z 244 A Grundriss (EG)Wohnfläche EG: 122,19 m²
no description
Haas Fertigbau - Haas Z 244 A Grundriss (OG)Wohnfläche OG: 120,85 m²

Unser Team vor Ort

Haas Haus Team FalkenbergFachberater*in bei Haas Fertigbau GmbH
Default Avatar
Wir beraten Sie gerne!Arrow Icon

Kataloge

Haas Haus: Hauskatalog
Haas Fertigbau GmbH

Haas Haus: Hauskatalog


House and TreeParksHouse and PinMusterhausHouse on HandAnbieter