1. AnbieterArrow Icon
  2. Haas Fertigbau GmbHArrow Icon
  3. Haas Fertigbau - Haas Z 159 C
Slide 1
Slide 2
Slide 3
Slide 4
Slide 5
Slide 6
Slide 7
Haas_Logo.png
Haas Fertigbau GmbHHaas Fertigbau - Haas Z 159 C
homeStadtvillen
livingArea160 m²
energyStandardEffizienzhaus 40
Preis anfragen
Katalog bestellen

Haas Fertigbau - Haas Z 159 C

Das ideale Zweifamilien Fertighaus

Sie schätzen den mediterranen Baustil, der allerdings etwas moderner interpretiert sein soll? Zugleich wollen Sie ein Zweifamilienhaus bauen, das Platz für je drei Personen bietet? Dann lohnt sich ein Blick auf das Zweifamilien Fertighaus Haas Z 159 C von Haas Haus. Die moderne Stadtvilla besitzt mit knapp 160 m² Wohnfläche die perfekte Größe für zwei Familien, die auf zwei Etagen untergebracht werden. So finden sich sowohl im Erdgeschoss als auch im Obergeschoss je zwei Schlafzimmer, ein Badezimmer und eine offene Küche mit angrenzendem Wohn-Essbereich. Ein Highlight ist die großzügige Terrasse, die teils überdacht ist. Dieses Dach fungiert wiederum als Balkon für den zweiten Stock des Zweifamilien Fertighauses. 

Weitere Informationen zum Baureihenhaus Haas Z 159 C von Haas Haus.

Hausdaten

Hausart Icon
HausartZweifamilienhaus
Bauweise Icon
BauweiseHolz-Tafelbau
Anzahl Räume Icon
Anzahl Räume6
Baustil Icon
BaustilStadtvillen
Fassade Icon
FassadePutz
Außenmaße Icon
Außenmaße10.25 m x 9.92 m
Wohnfläche Icon
Wohnfläche160.14 m²
Dachform Icon
DachformWalm-/Zeltdach
Energiestandard Icon
EnergiestandardEffizienzhaus 40
Immobilientyp Icon
ImmobilientypPlanungsidee
Dachneigung Icon
Dachneigung22°
Hauseigenschaften Icon
HauseigenschaftenTerasse
Hausdämmstoff Icon
HausdämmstoffMineralfaser (Glaswolle, Steinwolle)
Heizungsart Icon
HeizungsartWärmepumpe (Luft, Wasser, oder beides)
Pfeil nach unten linksWir schaffen Platz für Ihre Träume

Grundriss

no description
Haas Fertigbau - Haas Z 159 C Grundriss (EG)Wohnfläche EG: 80,13 m²
no description
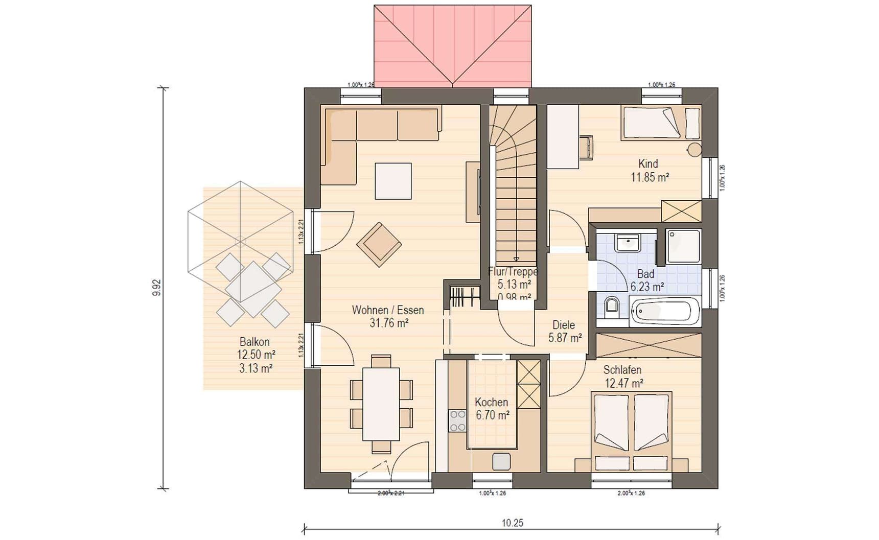
Haas Fertigbau - Haas Z 159 C Grundriss (OG)Wohnfläche OG: 80,01 m²

Unser Team vor Ort

Haas Haus Team FalkenbergFachberater*in bei Haas Fertigbau GmbH
Default Avatar
Wir beraten Sie gerne!Arrow Icon

Kataloge

Haas Haus: Hauskatalog
Haas Fertigbau GmbH

Haas Haus: Hauskatalog


House and TreeParksHouse and PinMusterhausHouse on HandAnbieter