1. AnbieterArrow Icon
  2. Haas Fertigbau GmbHArrow Icon
  3. Haas Fertigaus - Haas D 128 B
Slide 1
Slide 2
Slide 3
Slide 4
Slide 5
Slide 6
Slide 7
Slide 8
Slide 9
Haas_Logo.png
Haas Fertigbau GmbHHaas Fertigaus - Haas D 128 B
livingArea159 m²
energyStandardEffizienzhaus 40
Preis anfragen
Katalog bestellen

Haas Fertigaus - Haas D 128 B

Modernes Doppelhaus mit viel Platz

Beim Bau eines Doppelhauses geht es meist darum, den vorhandenen Raum bestmöglich auszunutzen. Das Haas D 128 B zeigt gekonnt, wie das geht. Dadurch dass das Dach des Hauses ausgebaut ist, findet dort ein Studio mit eigenem kleinem Bad mit Dusche Platz. Im Obergeschoss befinden sich drei weitere Schlafzimmer und das relativ großzügige Familienbad. Im Erdgeschoss bilden Küche, Wohn- und Essbereich eine große Einheit. Durch die bodentiefen und großzügig bemessenen Fenster auf der Traufseite fließt viel Sonnenlicht in die Räume. Das schafft eine angenehme Atmosphäre.

Da das Fertighaus nur eine der zahlreichen Variante der Baureihe Haas D ist, können Sie den Grundriss sogar noch ändern. Weitere Informationen zum Fertighaus Haas D 128 B von Haas Haus. 

Hausdaten

Hausart Icon
HausartDoppelhaus
Bauweise Icon
BauweiseHolz-Tafelbau
Anzahl Räume Icon
Anzahl Räume5
Fassade Icon
FassadePutz
Außenmaße Icon
Außenmaße11.25 m x 7.35 m
Wohnfläche Icon
Wohnfläche159.05 m²
Dachform Icon
DachformSattel-/Giebeldach
Energiestandard Icon
EnergiestandardEffizienzhaus 40
Immobilientyp Icon
ImmobilientypPlanungsidee
Dachneigung Icon
Dachneigung30°
Hauseigenschaften Icon
HauseigenschaftenTerasse
Hausdämmstoff Icon
HausdämmstoffMineralfaser (Glaswolle, Steinwolle)
Heizungsart Icon
HeizungsartWärmepumpe (Luft, Wasser, oder beides)
Pfeil nach unten linksWir schaffen Platz für Ihre Träume

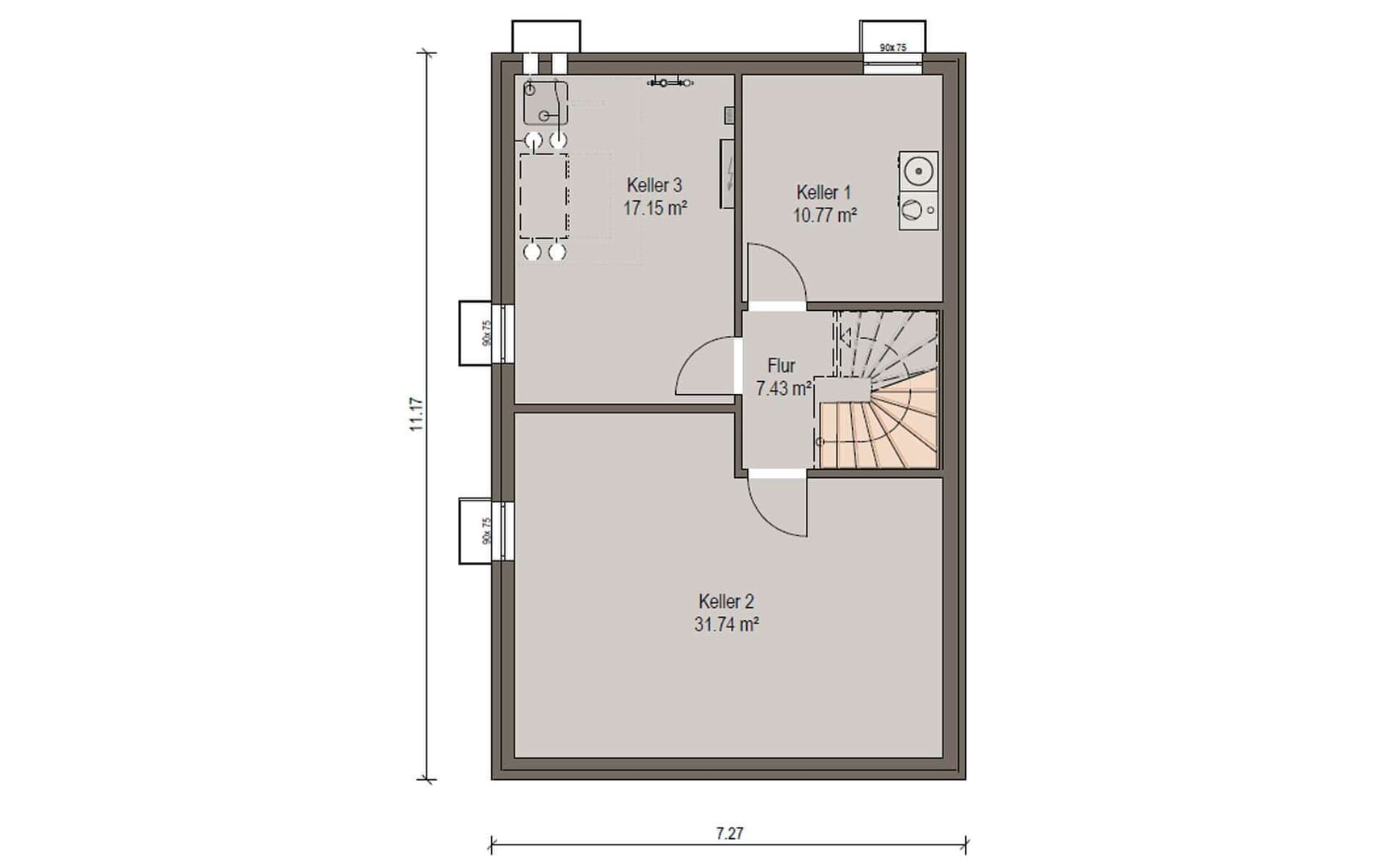
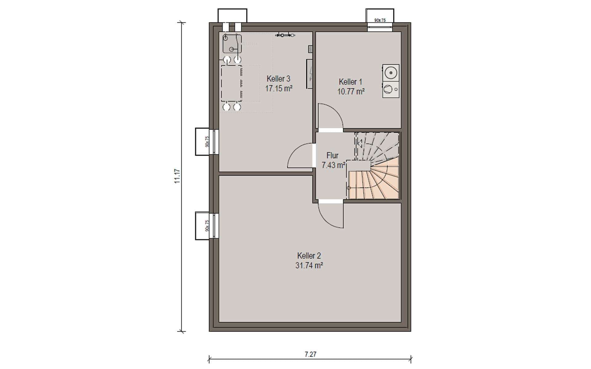
Grundriss

no description
Haas Fertigaus - Haas D 128 B Grundriss (Keller)
no description
Haas Fertigaus - Haas D 128 B Grundriss (EG)Wohnfläche EG: 63,55 m²
no description
Haas Fertigaus - Haas D 128 B Grundriss (OG)Wohnfläche OG: 63,47 m²
no description
Haas Fertigaus - Haas D 128 B Grundriss (DG)Wohnfläche DG: 32,03 m²

Unser Team vor Ort

Haas Haus Team FalkenbergFachberater*in bei Haas Fertigbau GmbH
Default Avatar
Wir beraten Sie gerne!Arrow Icon

Kataloge

Haas Haus: Hauskatalog
Haas Fertigbau GmbH

Haas Haus: Hauskatalog


House and TreeParksHouse and PinMusterhausHouse on HandAnbieter