1. AnbieterArrow Icon
  2. Haas Fertigbau GmbHArrow Icon
  3. Haas Fertigbau - Haus D 112 B
Slide 1
Slide 2
Slide 3
Slide 4
Slide 5
Slide 6
Slide 7
Slide 8
Haas_Logo.png
Haas Fertigbau GmbHHaas Fertigbau - Haus D 112 B
homeStadtvillen
livingArea111 m²
energyStandardEffizienzhaus 40
Preis anfragen
Katalog bestellen

Haas Fertigbau - Haus D 112 B

Doppelhaus mit großer Gestaltungsfreiheit

Wer sich entscheidet, ein Doppelhaus zu bauen, genießt verschiedene Vorzüge: Die Kosten für den Hausbau verteilen sich auf zwei Parteien. Auch die Baukosten für Keller, Bodenplatte oder Erschließung tragen beide Parteien. Viele schrecken dennoch davor zurück, ein Doppelhaus zu kaufen, da sie befürchten, dass sie beim Bau viele Kompromisse eingehen müssen. Daher hat Haas Haus die Baureihe Haas D entwickelt. Sie bietet Doppelhäuser an, bei denen jede Doppelhaushälfte so individuell wie möglich geplant werden kann.

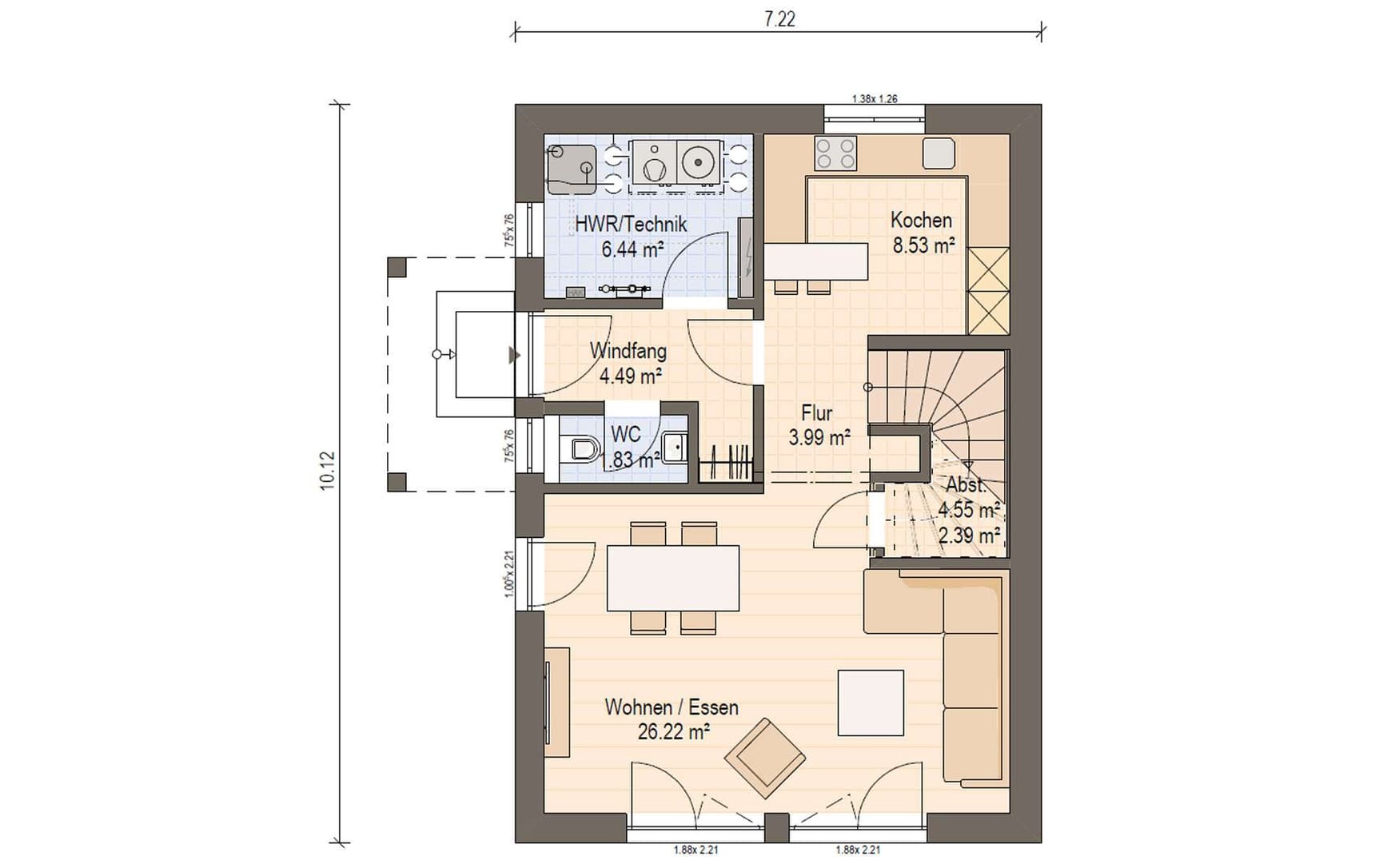
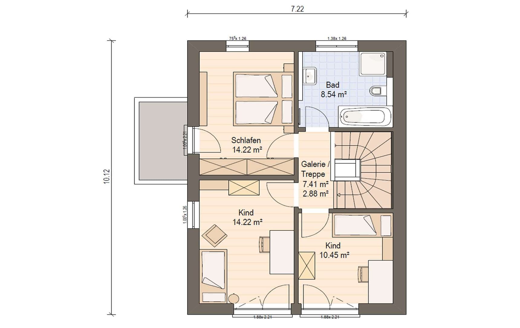
Der Haustyp Haas D 112 B bietet beispielsweise auf zwei Ebenen Wohnfläche für eine Familie mit ein bis zwei Kindern. Im Eingangsbereich befinden sich rechter Hand Gäste-WC und Garderobe, links der Technikraum. Der Windfang führt in den Flur, von dem zur einen Seite die Küche von der anderen der großzügige Wohn-Essbereich abgeht. Eine gewendelte Treppe führt in die Galerie im Obergeschoss. Von dort aus gelangt man in das Familienbad und drei Schlafzimmer, von denen eines auch als Büro oder Ankleidezimmer genutzt werden kann. Besonderes Highlight des Doppelhauses sind die großzügigen, bodentiefen Fenster in Erd- und Obergeschoss, die viel Sonnenlicht ins Fertighaus lassen.

Wie Sie das Haas D 112 B auf Ihre Wünsche anpassen können und welche weiteren Versionen es gibt, verrät Ihnen gerne einer unserer Fachberater im Beratungsgespräch.

Weitere Informationen zum Baureihenhaus Haas D 112 B von Haas Haus

Hausdaten

Hausart Icon
HausartDoppelhaus
Bauweise Icon
BauweiseHolz-Tafelbau
Anzahl Räume Icon
Anzahl Räume4
Baustil Icon
BaustilStadtvillen
Fassade Icon
FassadePutz
Außenmaße Icon
Außenmaße10.12 m x 7.22 m
Wohnfläche Icon
Wohnfläche110.89 m²
Dachform Icon
DachformWalm-/Zeltdach
Energiestandard Icon
EnergiestandardEffizienzhaus 40
Immobilientyp Icon
ImmobilientypPlanungsidee
Dachneigung Icon
Dachneigung22°
Hauseigenschaften Icon
HauseigenschaftenTerasse
Hausdämmstoff Icon
HausdämmstoffMineralfaser (Glaswolle, Steinwolle)
Heizungsart Icon
HeizungsartWärmepumpe (Luft, Wasser, oder beides)
Pfeil nach unten linksWir schaffen Platz für Ihre Träume

Grundriss

no description
Haas Fertigbau - Haus D 112 B Grundriss (EG)Wohnfläche EG: 56,05 m²
no description
Haas Fertigbau - Haus D 112 B Grundriss (OG)Wohnfläche OG: 54,84 m²

Unser Team vor Ort

Haas Haus Team FalkenbergFachberater*in bei Haas Fertigbau GmbH
Default Avatar
Wir beraten Sie gerne!Arrow Icon

Kataloge

Haas Haus: Hauskatalog
Haas Fertigbau GmbH

Haas Haus: Hauskatalog


House and TreeParksHouse and PinMusterhausHouse on HandAnbieter
Haas Fertigbau - Haus D 112 B