1. AnbieterArrow Icon
  2. Haas Fertigbau GmbHArrow Icon
  3. Haas Fertigbau - Haus D 112 A
Slide 1
Slide 2
Slide 3
Slide 4
Slide 5
Slide 6
Slide 7
Slide 8
Slide 9
Slide 10
Slide 11
Slide 12
Haas_Logo.png
Haas Fertigbau GmbHHaas Fertigbau - Haus D 112 A
homeStadtvillen
livingArea143 m²
energyStandardEffizienzhaus 40
Preis anfragen
Katalog bestellen

Haas Fertigbau - Haus D 112 A

Doppelhaus bauen, viele Highlights genießen

Ein Doppelhaus bietet keinen Freiraum bei der Planung. Für jede Doppelhaushälfte ist der Grundriss festgeschrieben. Die Architektur der Doppelhäuser ist langweilig und eintönig – mit Vorurteilen wie diesen sehen sich oft Bauherren konfrontiert, die ein Doppelhaus kaufen. Daher hat Haas Haus die Baureihe Haas D entwickelt. Sie bietet allen, die ein Doppelhaus bauen, größtmögliche Individualität. Nur bei der Dachform müssen sich die beiden Parteien einig sein, der Rest ist individuell planbar. So stehen beispielsweise neun Erdgeschoss Grundrisse zur Wahl, die mit verschiedenen Dach- bzw. Obergeschossen kombiniert werden können.

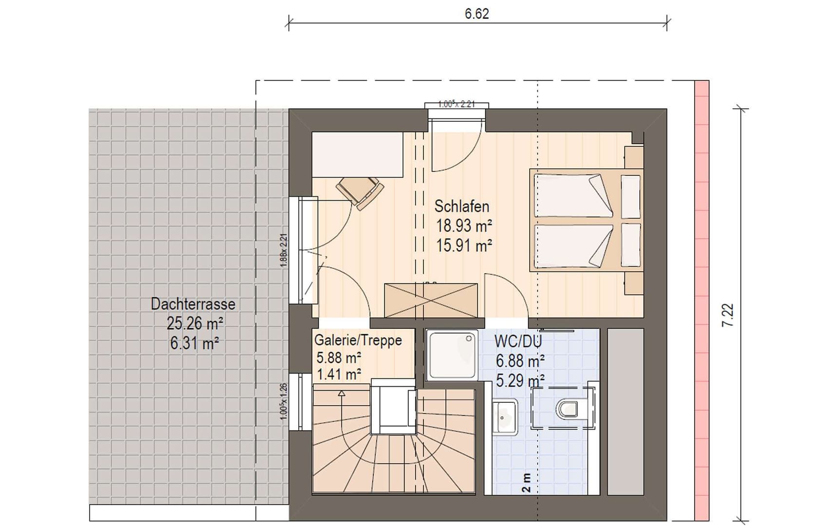
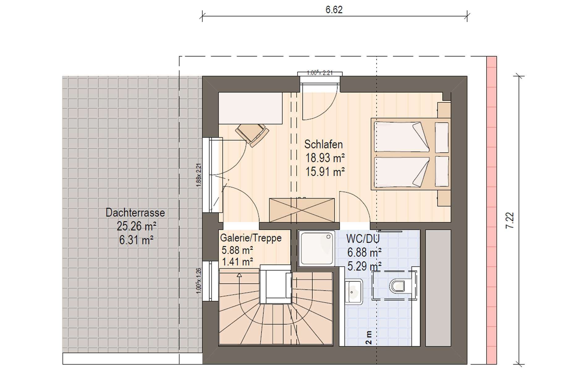
Ein besonders auffälliger Haustyp ist beispielsweise das hier gezeigte Haas D 112 A mit modernem Pultdach und großer Dachterrasse. Diese kann direkt vom großen Elternschlafzimmer aus betreten werden. Stellen Sie sich nur mal vor, wie Sie gemeinsam bei einem Glas Wein den Abend ausklingen lassen und den traumhaften Ausblick genießen. Natürlich verfügt das Dachgeschoss über ein eigenes Badezimmer. Eine Treppe führt in den ersten Stock des Doppelhauses hinunter. Hier haben die Kinder ihre Wohnräume mit drei Kinderzimmern und großem Bad mit Wanne. Im Erdgeschoss wartet das Fertighaus mit einem großen, lichtdurchfluteten Wohnzimmer auf. Nicht fehlen darf natürlich die Küche, die direkt an den Wohn/-Essbereich angrenzt. Neben dem Technikraum finden noch eine Garderobe und ein Gäste-WC im Haus Platz. Nähere Informationen zum Haas D 112 A und den Doppelhäusern der Baureihe Haas D erhalten Sie im Beratungstermin mit einem unserer Fachberater.

Weitere Informationen zum Baureihenhaus Haas D 112 A von Haas Haus.

Hausdaten

Hausart Icon
HausartDoppelhaus
Bauweise Icon
BauweiseHolz-Tafelbau
Anzahl Räume Icon
Anzahl Räume5
Baustil Icon
BaustilStadtvillen
Fassade Icon
FassadePutz
Außenmaße Icon
Außenmaße10.12 m x 7.22 m
Wohnfläche Icon
Wohnfläche143.14 m²
Dachform Icon
DachformPultdach
Energiestandard Icon
EnergiestandardEffizienzhaus 40
Immobilientyp Icon
ImmobilientypPlanungsidee
Dachneigung Icon
Dachneigung20°
Kniestock Icon
Kniestock1.5 m
Hauseigenschaften Icon
HauseigenschaftenGästezimmer
Hausdämmstoff Icon
HausdämmstoffMineralfaser (Glaswolle, Steinwolle)
Heizungsart Icon
HeizungsartWärmepumpe (Luft, Wasser, oder beides)
Pfeil nach unten linksWir schaffen Platz für Ihre Träume

Grundriss

no description
Haas Fertigbau - Haus D 112 A Grundriss (EG)Wohnfläche EG: 56,61 m²
no description
Haas Fertigbau - Haus D 112 A Grundriss (OG)Wohnfläche OG: 54,84 m²
no description
Haas Fertigbau - Haus D 112 A Grundriss (DG)Wohnfläche DG: 31,69 m²

Unser Team vor Ort

Haas Haus Team FalkenbergFachberater*in bei Haas Fertigbau GmbH
Default Avatar
Wir beraten Sie gerne!Arrow Icon

Kataloge

Haas Haus: Hauskatalog
Haas Fertigbau GmbH

Haas Haus: Hauskatalog


House and TreeParksHouse and PinMusterhausHouse on HandAnbieter