1. AnbieterArrow Icon
  2. Haas Fertigbau GmbHArrow Icon
  3. Haas Fertigbau - Haas Haus BT 84 A
Slide 1
Slide 2
Slide 3
Slide 4
Slide 5
Slide 6
Slide 7
Haas_Logo.png
Haas Fertigbau GmbHHaas Fertigbau - Haas Haus BT 84 A
homeBungalow
livingArea83 m²
energyStandardEffizienzhaus 40
Preis anfragen
Katalog bestellen

Haas Fertigbau - Haas Haus BT 84 A

Traumhaus für zwei 

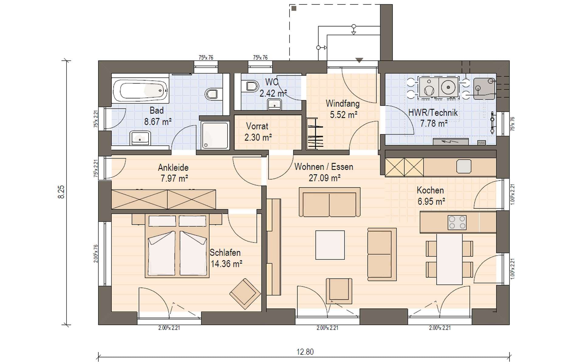
Großzügige Zweisamkeit: Den Bungalow Haas BT 84 A haben wir für zwei Bewohner konzipiert, die großen Wert auf eine moderne Architektur legen. Daher wurde der Bungalow mit einem Flachdach gestaltet, das ihn in ein Fertighaus im Bauhausstil verwandelt. Innen bietet dieser Haustyp auf einer Etage alle Wohnräume, die ein Paar benötigt:

  • Einen großen Wohn-Essbereich mit offener Küche
  • Einen geräumigen Garderobenbereich, in dem sogar ein Gäste-WC und eine Abstellkammer Platz finden.
  • Einen privaten Schlafbereich mit Ankleide und Badezimmer

Ein Highlight sind die zahlreichen Fenster, die wir so gesetzt haben, dass sie den Bungalow von außen und innen strukturieren. Weiterer Vorteil der zahlreichen Fensterflächen: Der offene Wohn- und Essbereich wird mit Licht durchflutet.

Konfigurieren Sie sich Ihr persönliches Traumhaus

Wir wissen: Jede Baufamilie ist einzigartig. Daher bietet Ihnen der Haus-Konfigurator die Möglichkeit, selbst zum Architekten zu werden. Versuchen Sie es und verwandeln Sie dieses Haus in Ihr Traumhaus!

Weitere Informationen zum Baureihenhaus Haas BT 84 A von Haas Haus

Hausdaten

Hausart Icon
HausartEinfamilienhaus
Bauweise Icon
BauweiseMassivholzkonstruktion
Anzahl Räume Icon
Anzahl Räume2
Baustil Icon
BaustilBungalow
Fassade Icon
FassadePutz
Außenmaße Icon
Außenmaße12.8 m x 8.25 m
Wohnfläche Icon
Wohnfläche83.06 m²
Dachform Icon
DachformFlachdach
Energiestandard Icon
EnergiestandardEffizienzhaus 40
Immobilientyp Icon
ImmobilientypPlanungsidee
Hauseigenschaften Icon
HauseigenschaftenTerasse
Hausdämmstoff Icon
HausdämmstoffMineralfaser (Glaswolle, Steinwolle)
Heizungsart Icon
HeizungsartWärmepumpe (Luft, Wasser, oder beides)
Pfeil nach unten linksWir schaffen Platz für Ihre Träume

Grundriss

no description
Haas Fertigbau - Haas Haus BT 84 A Grundriss (EG)Wohnfläche EG: 83,06 m²

Unser Team vor Ort

Haas Haus Team FalkenbergFachberater*in bei Haas Fertigbau GmbH
Default Avatar
Wir beraten Sie gerne!Arrow Icon

Kataloge

Haas Haus: Hauskatalog
Haas Fertigbau GmbH

Haas Haus: Hauskatalog


House and TreeParksHouse and PinMusterhausHouse on HandAnbieter