1. AnbieterArrow Icon
  2. Haas Fertigbau GmbHArrow Icon
  3. Haas Fertigbau - Haus BT 133 A
Slide 1
Slide 2
Slide 3
Slide 4
Slide 5
Slide 6
Haas_Logo.png
Haas Fertigbau GmbHHaas Fertigbau - Haus BT 133 A
homeBungalow
livingArea133 m²
energyStandardEffizienzhaus 40
Preis anfragen
Katalog bestellen

Haas Fertigbau - Haus BT 133 A

Moderner Bungalow im Bauhausstil

Sie legen Wert auf Design, schätzen klare Linien? Dann ist der für Sie passende Haustyp ein Cube Fertighaus. Besonders schönes Beispiel für ein Fertighaus im Bauhausstil ist der Bungalow Haas BT 133 A. Das Flachdach verleiht dem Kubus die für diesen Baustil typische modern-reduzierte Architektur. Aufgelockert wird diese durch die partielle Holzverkleidung. Modernes und zugleich funktionales Highlight ist der überdachte Freisitz und die große Terrasse. Auf dieser gemütlich den Abend ausklingen zu lassen – ein Traum!

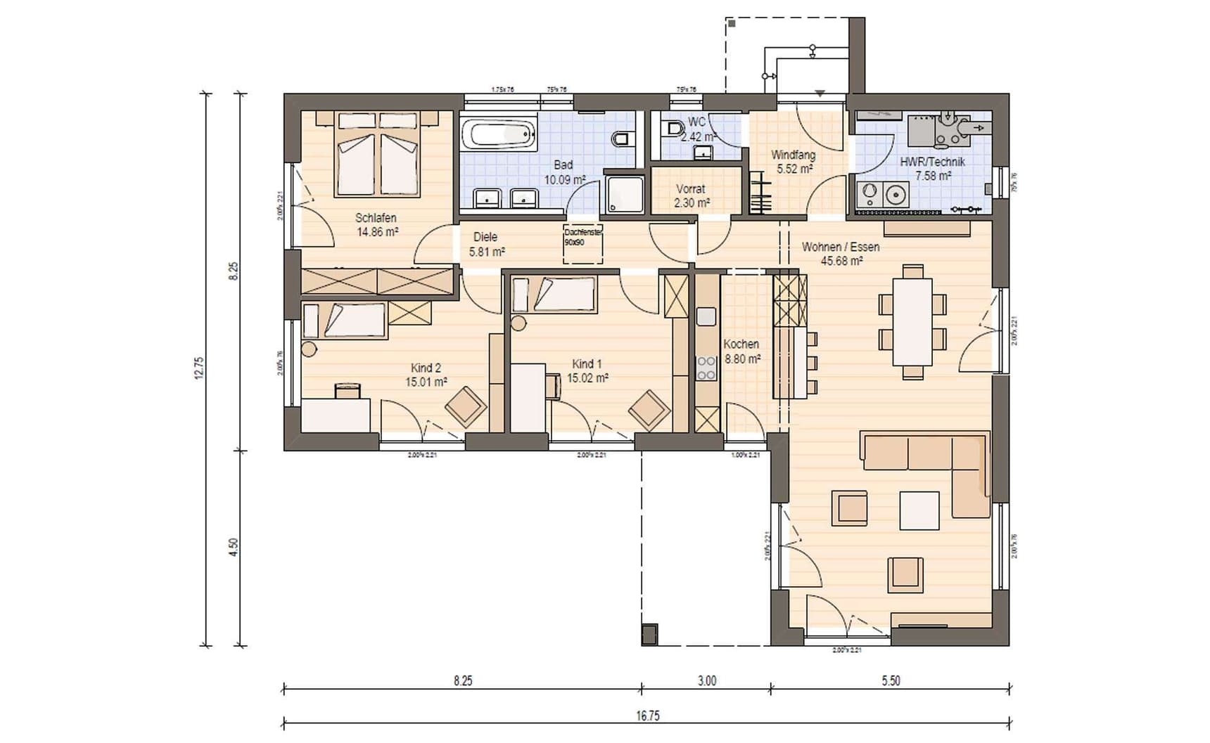
Innen bietet das Fertighaus im Bauhausstil auf einer Wohnfläche von 133 m² Platz für eine Familie mit zwei Kindern. Wie es sich für ein Fertighaus Bauhaus gehört, herrschen dabei auch im Inneren klare Linien vor. So ist der Wohnbereich bestehende aus offener Küche, Ess- und Wohnzimmer vom Schlafbereich abgetrennt. Der Schlafbereich setzt sich aus drei Schlafzimmern und einem großzügigen Familienbad zusammen. Intelligentes Highlight hier ist das Dachfenster, das den Flur des Schlafbereichs mit Tageslicht versorgt. Auch für Stauraum ist gesorgt mit einer Vorratskammer und dem Technikraum. Natürlich darf auch ein Gäste WC bei diesem Entwurf nicht fehlen.

Persönliches Cube Fertighaus planen - individuell mit System
Ihnen gefällt zwar der Grundriss von dem Fertighaus, aber nicht die Dachform? Oder Sie wollen statt drei Schlafzimmern nur zwei und dafür eine Ankleide? Alles kein Problem, denn der Bungalow Haas BT 133 A ist ein Haus der Baureihe Haas B 133. Das bedeutet, Sie haben beim Bau Planungsfreiheit und können das Fertighaus nach Ihren Wünschen bauen. Auch die Möglichkeit ein modernes Fertighaus im Bauhausstil mit Staffelgeschoss zu erweitern ist gegeben Wir empfehlen Ihnen einen Beratungstermin zu vereinbaren. Hier werden Ihnen die Möglichkeiten genau vorgestellt.

Weitere Informationen zum Baureihenhaus Haas BT 133 A von Haas Haus

Hausdaten

Hausart Icon
HausartEinfamilienhaus
Bauweise Icon
BauweiseMassivholzkonstruktion
Anzahl Räume Icon
Anzahl Räume4
Baustil Icon
BaustilBungalow
Fassade Icon
FassadePutz
Außenmaße Icon
Außenmaße16.75 m x 12.75 m
Wohnfläche Icon
Wohnfläche133.09 m²
Dachform Icon
DachformFlachdach
Energiestandard Icon
EnergiestandardEffizienzhaus 40
Immobilientyp Icon
ImmobilientypPlanungsidee
Hauseigenschaften Icon
HauseigenschaftenTerasse
Hausdämmstoff Icon
HausdämmstoffMineralfaser (Glaswolle, Steinwolle)
Heizungsart Icon
HeizungsartWärmepumpe (Luft, Wasser, oder beides)
Pfeil nach unten linksWir schaffen Platz für Ihre Träume

Grundriss

no description
Haas Fertigbau - Haus BT 133 A Grundriss (EG)Wohnfläche EG: 133,09 m²

Unser Team vor Ort

Haas Haus Team FalkenbergFachberater*in bei Haas Fertigbau GmbH
Default Avatar
Wir beraten Sie gerne!Arrow Icon

Kataloge

Haas Haus: Hauskatalog
Haas Fertigbau GmbH

Haas Haus: Hauskatalog


House and TreeParksHouse and PinMusterhausHouse on HandAnbieter