1. AnbieterArrow Icon
  2. Haas Fertigbau GmbHArrow Icon
  3. Haas Fertigbau - Haus BT 111 B 
Slide 1
Slide 2
Slide 3
Slide 4
Slide 5
Slide 6
Slide 7
Slide 8
Haas_Logo.png
Haas Fertigbau GmbHHaas Fertigbau - Haus BT 111 B 
homeBungalow
livingArea110 m²
energyStandardEffizienzhaus 40
Preis anfragen
Katalog bestellen

Haas Fertigbau - Haus BT 111 B 

Barrierefreiheit Winkelbungalow

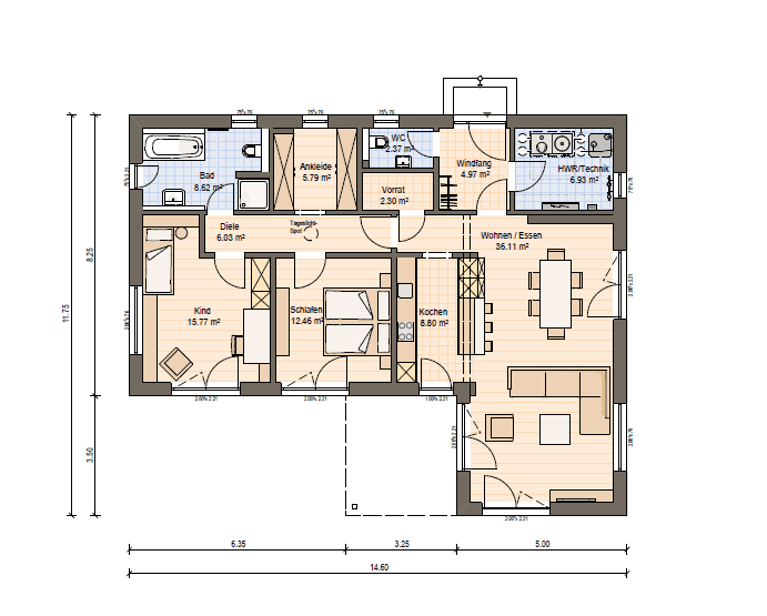
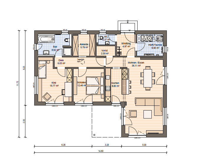
Einen Bungalow zu bauen bietet den Bauherren viele Vorteile, allen voran die barrierefreie Gestaltung, die es möglich macht, bis ins hohe Alter im eigenen Haus zu wohnen. Dass Bungalows dabei keineswegs altbacken aussehen müssen, beweist der Winkelbungalow Haas Bungalow BT 111 B von Haas Haus. So hat das Fertighaus dank flachem Walmdach in anthrazit den Charakter von einem modernen Toskana Haus. Natürlich darf auch der großzügig überdachte Freisitz nicht unerwähnt bleiben. Wer würde es nicht genießen, abends auf der Terrasse des Winkelbungalows zu sitzen und bei einem Glas Wein den Tag ausklingen zu lassen? Auch innen kann der Bungalow überzeugen. So ist der Winkelbungalow Grundriss so konzipiert, dass die Zimmer von Wohn- und Schlafbereiche voneinander getrennt sind.

  • Der Wohnbereich wurde offen konzipiert. Hier setzen wir vor allem auf fließende Übergänge und wirkungsvolle Blickachsen. Praktisch auch der kombinierte Hauswirtschafts- und Technikraum: Er spart den Bau von einem Keller und kann zugleich als Abstellraum genutzt werden.
  • Im Schlafbereich ist Platz für eine Familie mit Kind vorgesehen. Hier liegt auch das geräumige Familienbad. Das Kinderzimmer ist natürlich auch als Büro mit Aussicht in den Garten nutzbar.

Realisieren Sie Ihr persönliches Traumhaus mit dem Haus-Konfigurator

Nutzen Sie den Haus-Konfigurator von Haas, um dieses Haus zu Ihrem Traumhaus zu machen. Ändern Sie die Räume, ergänzen Sie Anbauten, bearbeiten Sie Fenster und Türen, verschieben Sie Wände und Möbel oder passen Sie Bodenbeläge, Einrichtungsstil und Fassade an. Dabei können Sie sicher sein, dass alles, was im Konfigurator möglich ist, auch umgesetzt werden kann. Und dank der mitlaufenden Preisindizierung wissen Sie, ob das Haus zu Ihrem Budget passt.

Weitere Informationen zum Baureihenhaus Haas BT 111 B von Haas Haus

Hausdaten

Hausart Icon
HausartEinfamilienhaus
Bauweise Icon
BauweiseHolz-Tafelbau
Anzahl Räume Icon
Anzahl Räume3
Baustil Icon
BaustilBungalow
Fassade Icon
FassadePutz
Außenmaße Icon
Außenmaße14.6 m x 11.75 m
Wohnfläche Icon
Wohnfläche110.15 m²
Dachform Icon
DachformWalm-/Zeltdach
Energiestandard Icon
EnergiestandardEffizienzhaus 40
Immobilientyp Icon
ImmobilientypPlanungsidee
Dachneigung Icon
Dachneigung22°
Hauseigenschaften Icon
HauseigenschaftenTerasse
Hausdämmstoff Icon
HausdämmstoffMineralfaser (Glaswolle, Steinwolle)
Heizungsart Icon
HeizungsartWärmepumpe (Luft, Wasser, oder beides)
Pfeil nach unten linksWir schaffen Platz für Ihre Träume

Grundriss

Grundriss_Haas_Winkelbungalow_BT_111_B.PNG
Haas Fertigbau - Haus BT 111 B  Grundriss (EG)Wohnfläche EG: 110,15 m²

Unser Team vor Ort

Haas Haus Team FalkenbergFachberater*in bei Haas Fertigbau GmbH
Default Avatar
Wir beraten Sie gerne!Arrow Icon

Kataloge

Haas Haus: Hauskatalog
Haas Fertigbau GmbH

Haas Haus: Hauskatalog


House and TreeParksHouse and PinMusterhausHouse on HandAnbieter
Haas Fertigbau - Haus BT 111 B