1. AnbieterArrow Icon
  2. Haas Fertigbau GmbHArrow Icon
  3. Haas Fertigbau - Haas Haus BT 111 A
Slide 1
Slide 2
Slide 3
Slide 4
Slide 5
Slide 6
Slide 7
Haas_Logo.png
Haas Fertigbau GmbHHaas Fertigbau - Haas Haus BT 111 A
homeBungalow
livingArea109 m²
energyStandardEffizienzhaus 40
Preis anfragen
Katalog bestellen

Haas Fertigbau - Haas Haus BT 111 A

Modern, moderner, Bungalow im Kubus-Stil

111 m² Wohnfläche, eine offene Architektur mit bodentiefen Panoramafenstern für einen freien Blick in den Garten, lichtdurchflutete Räume – das nennt sich modernes Lebensgefühl. Das Fertighaus Bungalow Haas BT 111 A bietet diesen modernen Standard sowie zahlreiche reizvolle Details:

  • Achten Sie z.B. auf den überdachten Eingangsbereich oder die großen Fensterflächen, die als Aussichtsort in den Garten dienen.
  • Nicht zu vergessen die moderne Holzverkleidung.

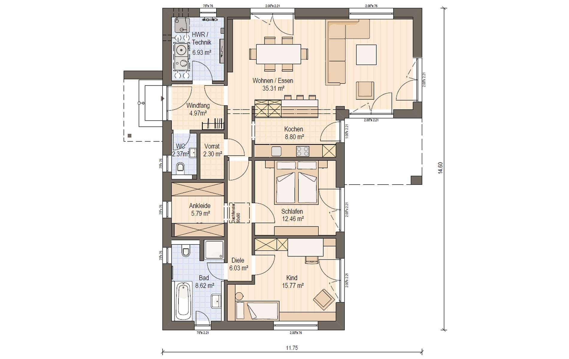
Als modernes Fertighaus im Bauhausstil aus Holz kann der Bungalow aber nicht nur von außen, sondern auch von innen überzeugen. So verfügt das Bauhaus über zwei geräumige Schlafzimmer, ein Familienbad und ein eigenes Gäste-WC. Darüber hinaus verbirgt das moderne Einfamilienhaus unter seinem Flachdach eine offene Küche mir direkt angrenzendem Wohn-Essbereich. Sogar für den nötigen Stauraum ist bei diesem Haustyp gesorgt, mit Ankleide und Vorratskammer. Kurzum: Das Haus bietet all das, was Häuser für eine Familie mit Kind benötigen.

Fertighaus Kubus oder doch lieber mediterranes Toskana Haus
Der Bungalow Haas BT 111 A ist nur ein Entwurf von vielen aus der Baureihe Haas B 111. Deren Konzept der variablen Grundrissgestaltung sorgt für viel Flexibilität beim Bau und passt sich auf Ihre Wünsche an.

  • So können Sie die Dachform variieren. Wie wäre es beispielsweise mit einem Walmdach, das den Bungalow in ein Toskanahaus verwandelt?
  • Darüber hinaus können Sie den Fertighaus Cube mit einem Staffelgeschoss bauen. Diese Bauweise schafft zusätzliche Wohnnutzfläche.

Lassen Sie sich von uns beraten und erfahren Sie mehr über die vielen Möglichkeiten, die Ihnen ein Bungalow der Baureihe Haas B 111 beim Hausbau bietet.

Weitere Informationen zum Baureihenhaus Haas BT 111 A von Haas Haus

Hausdaten

Hausart Icon
HausartEinfamilienhaus
Bauweise Icon
BauweiseMassivholzkonstruktion
Anzahl Räume Icon
Anzahl Räume3
Baustil Icon
BaustilBungalow
Fassade Icon
FassadePutz
Außenmaße Icon
Außenmaße14.6 m x 11.75 m
Wohnfläche Icon
Wohnfläche109.35 m²
Dachform Icon
DachformFlachdach
Energiestandard Icon
EnergiestandardEffizienzhaus 40
Immobilientyp Icon
ImmobilientypPlanungsidee
Hauseigenschaften Icon
HauseigenschaftenTerasse
Hausdämmstoff Icon
HausdämmstoffMineralfaser (Glaswolle, Steinwolle)
Heizungsart Icon
HeizungsartWärmepumpe (Luft, Wasser, oder beides)
Pfeil nach unten linksWir schaffen Platz für Ihre Träume

Grundriss

no description
Haas Fertigbau - Haas Haus BT 111 A Grundriss (EG)Wohnfläche EG: 109,35 m²

Unser Team vor Ort

Haas Haus Team FalkenbergFachberater*in bei Haas Fertigbau GmbH
Default Avatar
Wir beraten Sie gerne!Arrow Icon

Kataloge

Haas Haus: Hauskatalog
Haas Fertigbau GmbH

Haas Haus: Hauskatalog


House and TreeParksHouse and PinMusterhausHouse on HandAnbieter