1. AnbieterArrow Icon
  2. Haas Fertigbau GmbHArrow Icon
  3. Haas Fertigbau - Haas Haus BS 129 A
Slide 1
Slide 2
Slide 3
Slide 4
Slide 5
Haas_Logo.png
Haas Fertigbau GmbHHaas Fertigbau - Haas Haus BS 129 A
homeKubushäuser im Bauhausstil
livingArea128 m²
energyStandardEffizienzhaus 40
Preis anfragen
Katalog bestellen

Haas Fertigbau - Haas Haus BS 129 A

Modernes Fertighaus Kubus im Bauhausstil

Sie schätzen den modernen Bauhausstil und sind auf der Suche nach einem modernen Einfamilienhaus mit Platz für Sie, Ihren Partner und Ihr Kind? Dann ist das Haus Haas BS 129 A vielleicht der passende Entwurf. Schon von außen beeindruckt die klare, geradlinige Architektur. Eine partielle Holzverkleidung strukturiert den Baukörper.

Doch nicht nur die Hülle des Fertighaus Kubus ist beeindrucken. Innen überzeugt dieser Haustyp mit seiner intelligenten Raumaufteilung. So verfügt das Haus über zwei Bereiche: den der Eltern im Erd- und den für das Kind oder Gäste im Obergeschoss.

  • Der Elternbereich setzt sich aus einem Schlafzimmer, eine Ankleide und ein geräumiges Bad zusammen.
  • Der Kinderbereich verfügt über ein Schlafzimmer, eine Galerie, die als eigener Wohn- oder Arbeitsbereich genutzt werden kann und ein Bad mit Dusche.

Im Erdgeschoss finden Sie zudem einen großen Wohn- und Essbereich mit offener Küche sowie das Gäste-WC und den Technikraum.

Gestaltungsfreiheit bei der Planung ihres Fertighauses
Der Fertighaus Kubus Haas BS 129 A ist übrigens ein Entwurf der Baureihe Haas B 129. Was das bedeutet? Freiheit beim Hausbau! Denn bei Haas B 129 können Sie z.B. aus verschiedenen Dachformen wählen. Auch stehen Ihnen verschiedene Grundrissvarianten zur Verfügung. Also vereinbaren Sie am besten einen Beratungstermin und lassen Sie sich informieren!

Weitere Informationen zum Baureihenhaus Haas BS 129 A von Haas Haus

Hausdaten

Hausart Icon
HausartEinfamilienhaus
Bauweise Icon
BauweiseMassivholzkonstruktion
Anzahl Räume Icon
Anzahl Räume3
Baustil Icon
BaustilKubushäuser im Bauhausstil
Fassade Icon
FassadePutz
Außenmaße Icon
Außenmaße12 m x 11.75 m
Wohnfläche Icon
Wohnfläche128.02 m²
Dachform Icon
DachformFlachdach
Energiestandard Icon
EnergiestandardEffizienzhaus 40
Immobilientyp Icon
ImmobilientypPlanungsidee
Hauseigenschaften Icon
HauseigenschaftenTerasse
Hausdämmstoff Icon
HausdämmstoffMineralfaser (Glaswolle, Steinwolle)
Heizungsart Icon
HeizungsartWärmepumpe (Luft, Wasser, oder beides)
Pfeil nach unten linksWir schaffen Platz für Ihre Träume

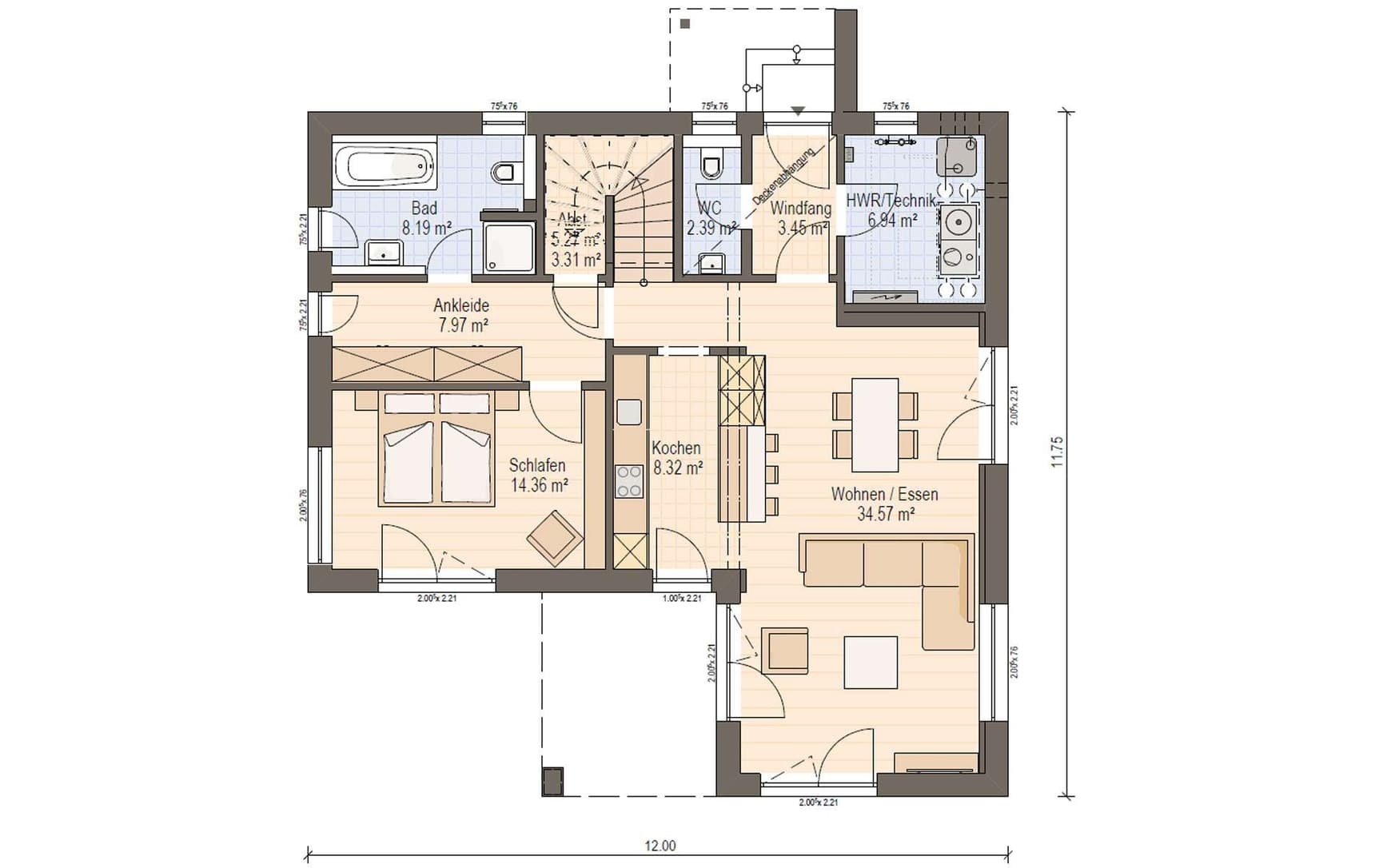
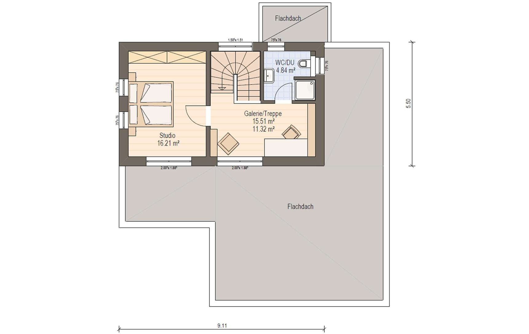
Grundriss

no description
Haas Fertigbau - Haas Haus BS 129 A Grundriss (EG)Wohnfläche EG: 91,46 m²
no description
Haas Fertigbau - Haas Haus BS 129 A Grundriss (OG)Wohnfläche OG: 36,56 m²

Unser Team vor Ort

Haas Haus Team FalkenbergFachberater*in bei Haas Fertigbau GmbH
Default Avatar
Wir beraten Sie gerne!Arrow Icon

Kataloge

Haas Haus: Hauskatalog
Haas Fertigbau GmbH

Haas Haus: Hauskatalog


House and TreeParksHouse and PinMusterhausHouse on HandAnbieter