1. AnbieterArrow Icon
  2. Haas Fertigbau GmbHArrow Icon
  3. Doppelhaus Leva D128
Slide 1
Slide 2
Slide 3
Haas_Logo.png
Haas Fertigbau GmbHDoppelhaus Leva D128
homeKlassische Familienhäuser
livingArea128 m²
energyStandardEffizienzhaus 40 Plus
Preis anfragen
Katalog bestellen

Doppelhaus Leva D128

Leva. Viel Raum für ein gutes Leben

Gekonnt vereint dieses Doppelhaus von Haas Haus moderne Form und Wohnkultur. Eine Wohnfläche von 128 m²
bietet alle Aspekte, die für Lebensgemeinschaften wichtig sind. Und wie wäre es, wenn Ihre besten Freunde auch Ihre Nachbarn wären?

Weitere Informationen zum Doppelhaus Leva D128 von Haas Haus.

Hausdaten

Hausart Icon
HausartDoppelhaus
Anzahl Räume Icon
Anzahl Räume4
Baustil Icon
BaustilKlassische Familienhäuser
Außenmaße Icon
Außenmaße7.35 m x 11.25 m
Wohnfläche Icon
Wohnfläche128 m²
Dachform Icon
DachformSattel-/Giebeldach
Etagen Icon
Etagen2.5
Energiestandard Icon
EnergiestandardEffizienzhaus 40 Plus
Immobilientyp Icon
ImmobilientypPlanungsidee
Dachneigung Icon
Dachneigung30°
Pfeil nach unten linksWir schaffen Platz für Ihre Träume

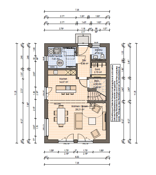
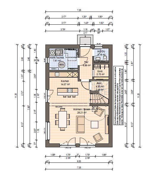
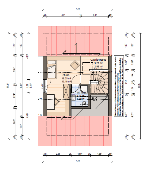
Grundriss

Grundriss_Haas_Doppelhaus_EG.PNG
Doppelhaus Leva D128 Grundriss (EG)
Grundriss_Haas_Doppelhaus_OG.PNG
Doppelhaus Leva D128 Grundriss (OG)
Grundriss_Haas_Doppelhaus_DG.PNG
Doppelhaus Leva D128 Grundriss (DG)

Unser Team vor Ort

Haas Haus Team FalkenbergFachberater*in bei Haas Fertigbau GmbH
Default Avatar
Wir beraten Sie gerne!Arrow Icon

Kataloge

Haas Haus: Hauskatalog
Haas Fertigbau GmbH

Haas Haus: Hauskatalog


House and TreeParksHouse and PinHäuser liveHouse on HandAnbieter