1. AnbieterArrow Icon
  2. Büdenbender HausbauArrow Icon
  3. Vitalis 135
puristische-wohnideen-vitalis-135-fertighaus-l-1024x683.jpg
no description
Büdenbender HausbauVitalis 135
homeKlassische Familienhäuser
livingArea132 m²
energyStandardEffizienzhaus 40
Preis anfragen
Katalog bestellen

Vitalis 135

Puristisches Einfamilienhaus mit klaren Formen und offenem Ambiente

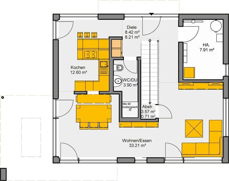
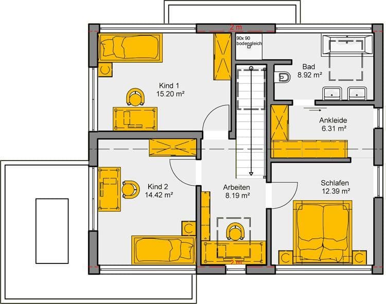
Die schneeweiße Fassade ist klar und schnörkellos gegliedert. Graue Putzflächen und harmonische Proportionen vermitteln Ruhe und Entspanntheit. Regelmäßige Fensterformen unterstreichen das anspruchsvolle Gestaltungsprinzip. Von der Diele aus gelangt man in die offene Küche mit Theke, die sich an den großzügigen Ess- und Wohnbereich anschließt. Großformatige Fenster- und Türelemente schaffen Transparenz und Offenheit. Von sämtlichen Wohnräumen im Erdgeschoss ist der Austritt auf die großzügigen Terrassenflächen und in den Garten möglich. Über die geradläufige Treppe gelangt man in das Obergeschoss. Dort befinden sich zwei große, helle Kinderzimmer und ein separater Arbeitsbereich. Das Elternschlafzimmer wird durch eine komfortable Ankleide ergänzt. Daran anschließend befindet sich das geräumige Bad mit mit Badewanne und bodengleicher Dusche, zwei Waschtischen und WC.

Hausdaten

Hausart Icon
HausartEinfamilienhaus
Bauweise Icon
BauweiseHolz-Tafelbau
Baustil Icon
BaustilKlassische Familienhäuser
Fassade Icon
FassadePutz
Außenmaße Icon
Außenmaße8.5 m x 10 m
Wohnfläche Icon
Wohnfläche131.95 m²
Dachform Icon
DachformSattel-/Giebeldach
Energiestandard Icon
EnergiestandardEffizienzhaus 40
Immobilientyp Icon
ImmobilientypPlanungsidee
Dachneigung Icon
Dachneigung22°
Kniestock Icon
Kniestock2.15 m
Hauseigenschaften Icon
HauseigenschaftenViel Glas, Terasse
Hausdämmstoff Icon
HausdämmstoffMineralfaser (Glaswolle, Steinwolle)
Heizungsart Icon
HeizungsartWärmepumpe (Luft, Wasser, oder beides)
Pfeil nach unten linksWir schaffen Platz für Ihre Träume

Grundriss

vitalis-135-eg.jpg
Vitalis 135 Grundriss (EG)
vitalis-135-og.jpg
Vitalis 135 Grundriss (OG)

Kataloge

Büdenbender Hausbau: Hauskatalog
Büdenbender Hausbau

Büdenbender Hausbau: Hauskatalog


House and TreeParksHouse and PinMusterhausHouse on HandAnbieter