1. AnbieterArrow Icon
  2. Büdenbender HausbauArrow Icon
  3. Flaviano
architektenhaus-flaviano-fertighaus-l-1024x683.jpg
no description
Büdenbender HausbauFlaviano
homeVillen
livingArea299 m²
energyStandardEffizienzhaus 40
Preis anfragen
Katalog bestellen

Flaviano

Exklusive Villa mit Penthouse

Das Erdgeschoss wird dominiert vom großzügigen Wohn-Essbereich mit offener Küche, der den familiären Mittelpunkt des Hauses bildet. Im Obergeschoss finden drei Kinder reichlich Platz – inklusive eigenem Kinderbad. Der Elternbereich mit traumhaften Wohlfühlbad und Ankleide bietet eine Ruhezone der Extraklasse. Das Penthouse im Staffelgeschoss ist ein gestalterisches Highlight und der ideale Ort für Wellness und Entspannung.

Hausdaten

Hausart Icon
HausartEinfamilienhaus
Bauweise Icon
BauweiseHolz-Tafelbau
Baustil Icon
BaustilVillen
Fassade Icon
FassadePutz, Holz
Außenmaße Icon
Außenmaße18.4 m x 9.6 m
Wohnfläche Icon
Wohnfläche298.8 m²
Dachform Icon
DachformPultdach
Energiestandard Icon
EnergiestandardEffizienzhaus 40
Immobilientyp Icon
ImmobilientypPlanungsidee
Hauseigenschaften Icon
HauseigenschaftenBalkon, Terasse, Gästezimmer, Integriertes Carport, Erker, Keller, Viel Glas
Hausdämmstoff Icon
HausdämmstoffMineralfaser (Glaswolle, Steinwolle)
Heizungsart Icon
HeizungsartWärmepumpe (Luft, Wasser, oder beides)
Pfeil nach unten linksWir schaffen Platz für Ihre Träume

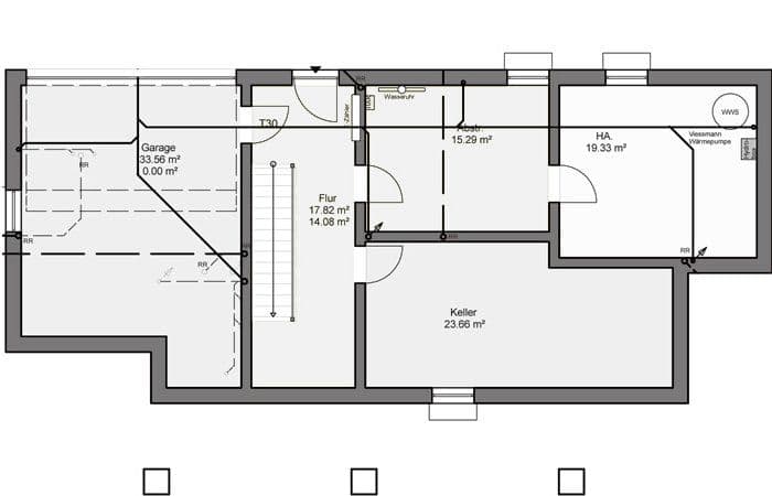
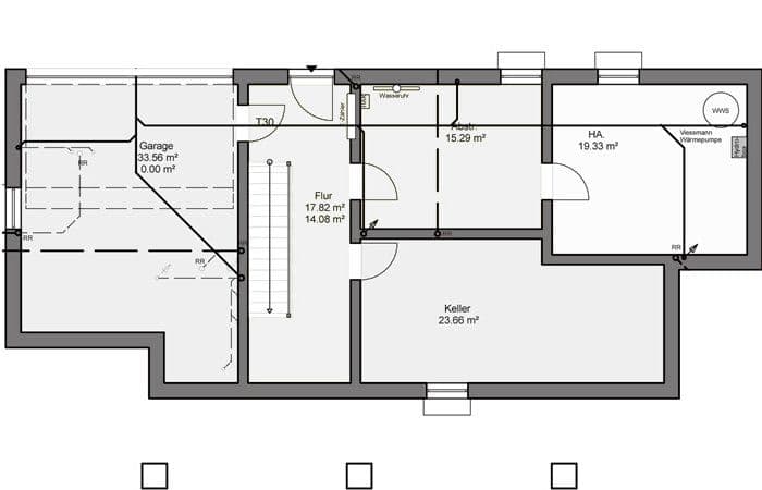
Grundriss

Flaviano-Grundriss-KG.jpg
Flaviano Grundriss (Keller)
bbh_hauser_flaviano_grundriss-eg_20200103.png
Flaviano Grundriss (EG)
bbh_hauser_flaviano_grundriss-og_20200103.png
Flaviano Grundriss (OG)
bbh_hauser_flaviano_grundriss-ph_20200103.png
Flaviano Grundriss (DG)

Kataloge

Büdenbender Hausbau: Hauskatalog
Büdenbender Hausbau

Büdenbender Hausbau: Hauskatalog


House and TreeParksHouse and PinMusterhausHouse on HandAnbieter