1. AnbieterArrow Icon
  2. Büdenbender HausbauArrow Icon
  3. Avellino
Avelino_Giesberg_01.jpg
no description
Büdenbender HausbauAvellino
homeKlassische Familienhäuser
livingArea237 m²
energyStandardEffizienzhaus 40
Preis anfragen
Katalog bestellen

Avellino

Individuelles Fertighaus mit offenem Wohnbereich

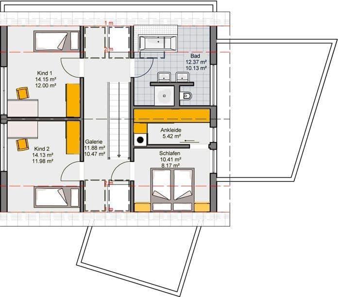
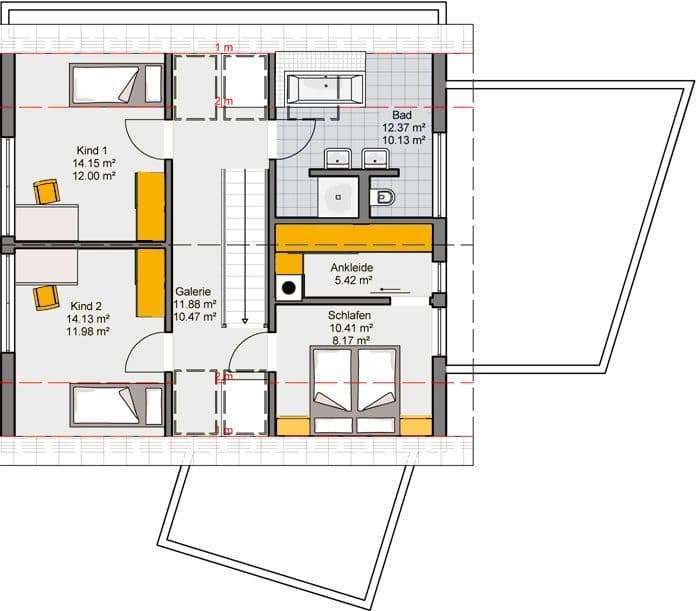
Die geradläufige Treppe im Zentrum gliedert den außergewöhnlichen Grundriss, bei dem der rechte Winkel aufgelöst wird: der sehr helle, sonnige Wohnraum ist schräg angesetzt und bietet einen direkten Zugang zum Balkon. Zwei Kinderzimmer, ein raffiniertes Familienbad und Elternschlafzimmer mit angegliederter Ankleide bieten viel Wohnraum im Dachgeschoss. Die Belichtung der Galerie durch Dachflächenfenster, erfüllt auch das im Erdgeschoss liegende Wohnzimmer mit reichlich Tageslicht und im weitläufigen Keller findet sich noch viel Platz für Hobbies.

Hausdaten

Hausart Icon
HausartEinfamilienhaus
Bauweise Icon
BauweiseHolz-Tafelbau
Baustil Icon
BaustilKlassische Familienhäuser
Fassade Icon
FassadePutz, Holz
Außenmaße Icon
Außenmaße9.9 m x 10 m
Wohnfläche Icon
Wohnfläche237.07 m²
Dachform Icon
DachformSattel-/Giebeldach
Energiestandard Icon
EnergiestandardEffizienzhaus 40
Immobilientyp Icon
ImmobilientypPlanungsidee
Dachneigung Icon
Dachneigung40°
Kniestock Icon
Kniestock1 m
Hauseigenschaften Icon
HauseigenschaftenIntegriertes Carport, Balkon, Keller
Hausdämmstoff Icon
HausdämmstoffMineralfaser (Glaswolle, Steinwolle)
Heizungsart Icon
HeizungsartWärmepumpe (Luft, Wasser, oder beides)
Pfeil nach unten linksWir schaffen Platz für Ihre Träume

Grundriss

Avellino-Grundriss-KG.jpg
Avellino Grundriss (Keller)
Avellino-Grundriss-EG.jpg
Avellino Grundriss (EG)
Avellino-Grundriss-OG.jpg
Avellino Grundriss (DG)

Kataloge

Büdenbender Hausbau: Hauskatalog
Büdenbender Hausbau

Büdenbender Hausbau: Hauskatalog


House and TreeParksHouse and PinMusterhausHouse on HandAnbieter