1. AnbieterArrow Icon
  2. Büdenbender HausbauArrow Icon
  3. Uno 101
B++denbender_Uno_101_01.jpg
no description
Büdenbender HausbauUno 101
homeKubushäuser im Bauhausstil
livingArea101 m²
energyStandardEffizienzhaus 40
Preis anfragen
Katalog bestellen

Uno 101

Individuelle Penthouse-Architektur

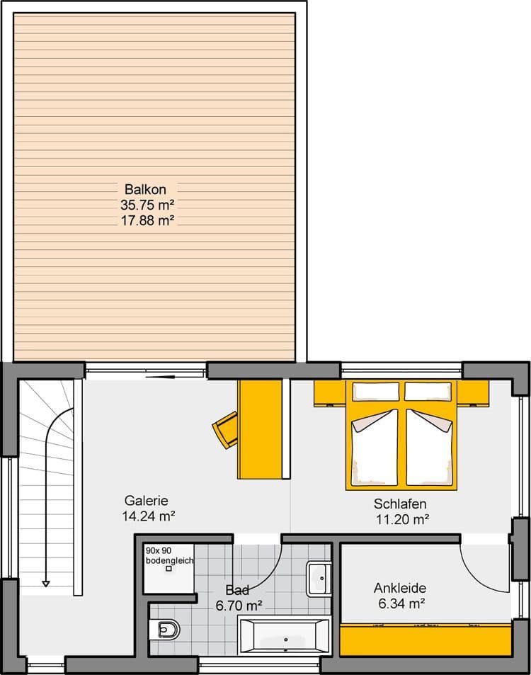
Klare Strukturen in der Grundrissgestaltung und optische Ruhe der Fassade unterstreichen den architektonischen Entwurfsgedanken. Im Erdgeschoss dominiert der offene Koch-, Ess- und Wohnbereich mit einer großen Fensterfront zum Garten. Der Hauswirtschaftsraum und das Gäste-WC sind im Dielenbereich angeordnet. Im Staffelgeschoss ist die Galerie der zentrale Bereich. Von dort erreicht  man das komfortable Bad mit Badewanne und bodengleicher Dusche und den behaglichen Schlafraum mit der sich anschließenden Ankleide. Ebenfalls von der Galerie aus betritt man die herrliche, weitläufige Dachterrasse, die ideale Vorraussetzungen für Ruhe und Erholung aber auch für gesellige Feste mit Freunden und Familie bietet.

Hausdaten

Hausart Icon
HausartEinfamilienhaus
Bauweise Icon
BauweiseHolz-Tafelbau
Baustil Icon
BaustilKubushäuser im Bauhausstil
Fassade Icon
FassadePutz, Holz
Außenmaße Icon
Außenmaße9.5 m x 12.1 m
Wohnfläche Icon
Wohnfläche100.6 m²
Dachform Icon
DachformFlachdach
Energiestandard Icon
EnergiestandardEffizienzhaus 40
Immobilientyp Icon
ImmobilientypPlanungsidee
Hauseigenschaften Icon
HauseigenschaftenBalkon, Erker
Hausdämmstoff Icon
HausdämmstoffMineralfaser (Glaswolle, Steinwolle)
Heizungsart Icon
HeizungsartWärmepumpe (Luft, Wasser, oder beides)
Pfeil nach unten linksWir schaffen Platz für Ihre Träume

Grundriss

uno-101-eg.jpg
Uno 101 Grundriss (EG)
uno-101-og.jpg
Uno 101 Grundriss (OG)

Kataloge

Büdenbender Hausbau: Hauskatalog
Büdenbender Hausbau

Büdenbender Hausbau: Hauskatalog


House and TreeParksHouse and PinMusterhausHouse on HandAnbieter