1. AnbieterArrow Icon
  2. Büdenbender HausbauArrow Icon
  3. Musterhaus Köln Brentano
Slide 1
Location Icon
Slide 2
Location Icon
Slide 3
Location Icon
Slide 4
Location Icon
Slide 5
Location Icon
Slide 6
Location Icon
Slide 7
Location Icon
Slide 8
Location Icon
Slide 9
Location Icon
Slide 10
Location Icon
no description
Büdenbender HausbauMusterhaus Köln Brentano
homeKlassische Familienhäuser
livingArea168 m²
energyStandardEffizienzhaus 40
Preis anfragen

Musterhaus Köln Brentano

Modernes Haus in klassischer Form 

Das Ausstellungshaus „Brentano“ in der Fertighauswelt in Frechen bei Köln zeichnet sich durch seine Geradlinigkeit in der Grundrissgestaltung und die moderne Fassadenstruktur aus. 

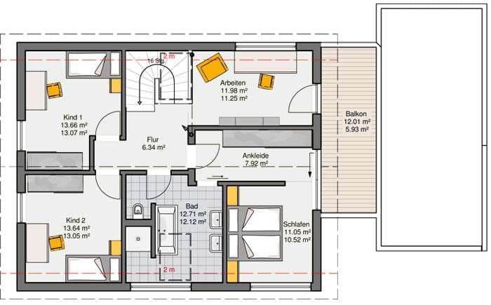
Im Erdgeschoss dominiert der helle, freundliche und offen gestaltete Wohn-, Ess- und Kochbereich. Bodentiefe Fenster geben den Räumen Großzügigkeit, die durch die Raumhöhe von 2,70 m noch betont wird. Im Dachgeschoss befinden sich zwei schöne, helle Kinderzimmer, ein Elternschlafzimmer mit Ankleide und ein elegantes Familienbad mit raffinierter Aufteilung. Dazu kommt noch ein offen gestaltetes, galerieartiges Arbeitszimmer. 

Die Fassade wirkt durch die Holzverschalung und farbig abgesetzten Putzflächen sowie den angrenzenden Carport mit der abgestimmten Gestaltung sehr modern und harmonisch. Technisch ist das Haus mit modernster Heizungs- und Lüftungstechnik von Viessmann ausgestattet. 

Natürlich, wie immer bei Büdenbender, mit dem besonderen Wohnklima der diffusionsoffenen Außenwand atmo-tec®. 
 

Hausdaten

Hausart Icon
HausartEinfamilienhaus
Bauweise Icon
BauweiseHolz-Tafelbau
Baustil Icon
BaustilKlassische Familienhäuser
Fassade Icon
FassadePutz
Außenmaße Icon
Außenmaße11 m x 9 m
Wohnfläche Icon
Wohnfläche167.7 m²
Dachform Icon
DachformSattel-/Giebeldach
Energiestandard Icon
EnergiestandardEffizienzhaus 40
Pfeil nach unten linksWir schaffen Platz für Ihre Träume

Grundriss

no description
Musterhaus Köln Brentano Grundriss (EG)
no description
Musterhaus Köln Brentano Grundriss (DG)

Öffnungszeiten

Montag:Geschlossen
Dienstag:Geschlossen
Mittwoch:09:00 - 16:00 Uhr
Donnerstag:09:00 - 16:00 Uhr
Freitag:09:00 - 16:00 Uhr
Samstag:09:00 - 16:00 Uhr
Sonntag:09:00 - 16:00 Uhr

(öffnet Sonntag um 13:00 Uhr)

Reformationstag
09:00 - 16:00 Uhr
Allerheiligen
09:00 - 16:00 Uhr
Heiligabend
Geschlossen

Adresse

Europaallee 45
Frechen 50226

Anfahrt planen

Beratungstermin

Fertighaus Team in Frechen

Unser Team vor Ort

Rita LangFachberater*in bei Büdenbender Hausbau
lang-rita.jpg
Wir beraten Sie gerne!Arrow Icon
Jörg PogorzelskiFachberater*in bei Büdenbender Hausbau
Pogorzelski_200-280.jpg
House and TreeParksHouse and PinHäuser liveHouse on HandAnbieter