1. AnbieterArrow Icon
  2. Büdenbender HausbauArrow Icon
  3. Mehrfamilienhaus Stadtvilla
no description
no description
Büdenbender HausbauMehrfamilienhaus Stadtvilla
homeStadtvillen
livingArea630 m²
energyStandardEffizienzhaus 40
Preis anfragen
Katalog bestellen

Mehrfamilienhaus Stadtvilla

Elegante Stadtville mit Walmdach bietet 5 Wohnparteien Platz

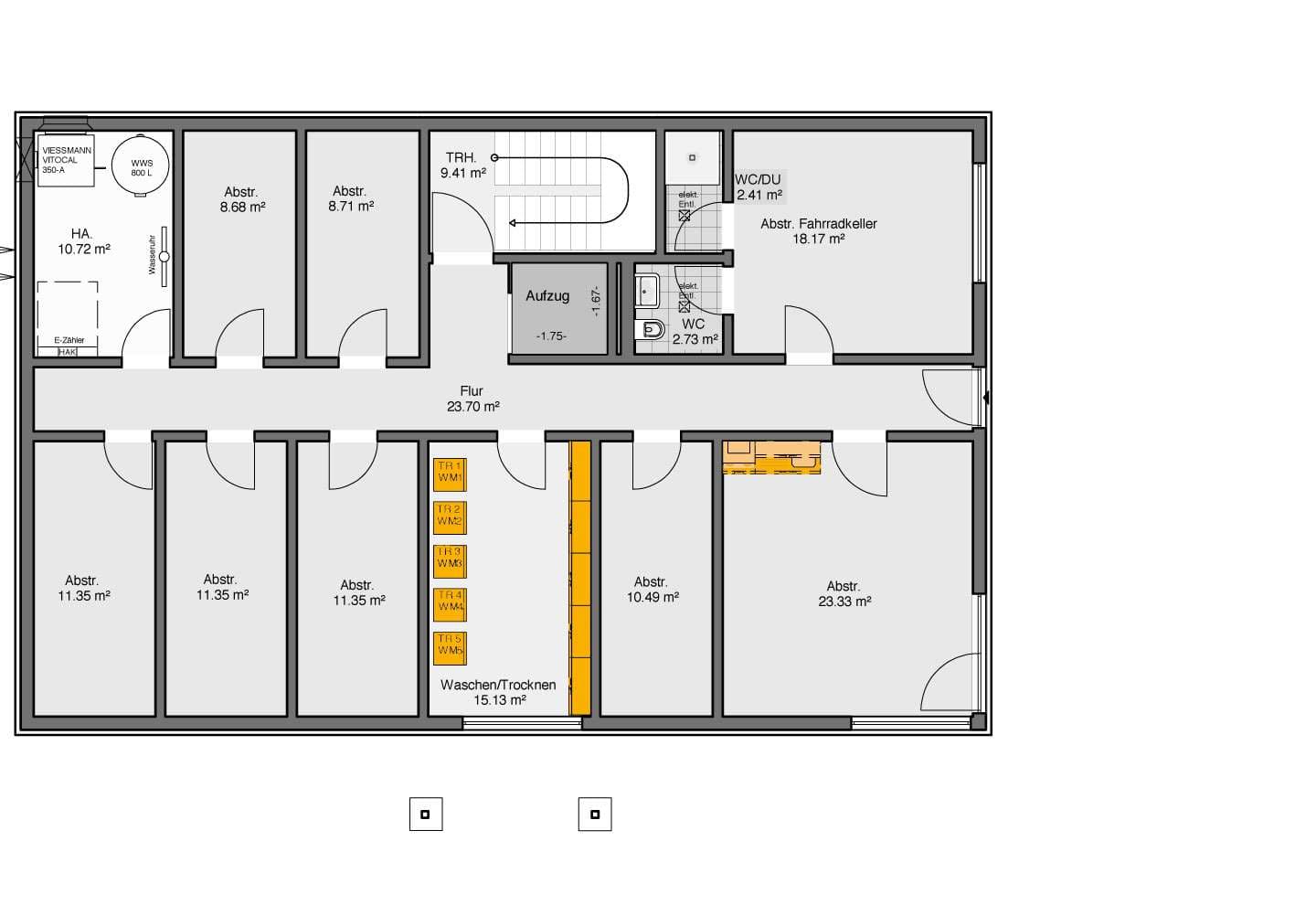
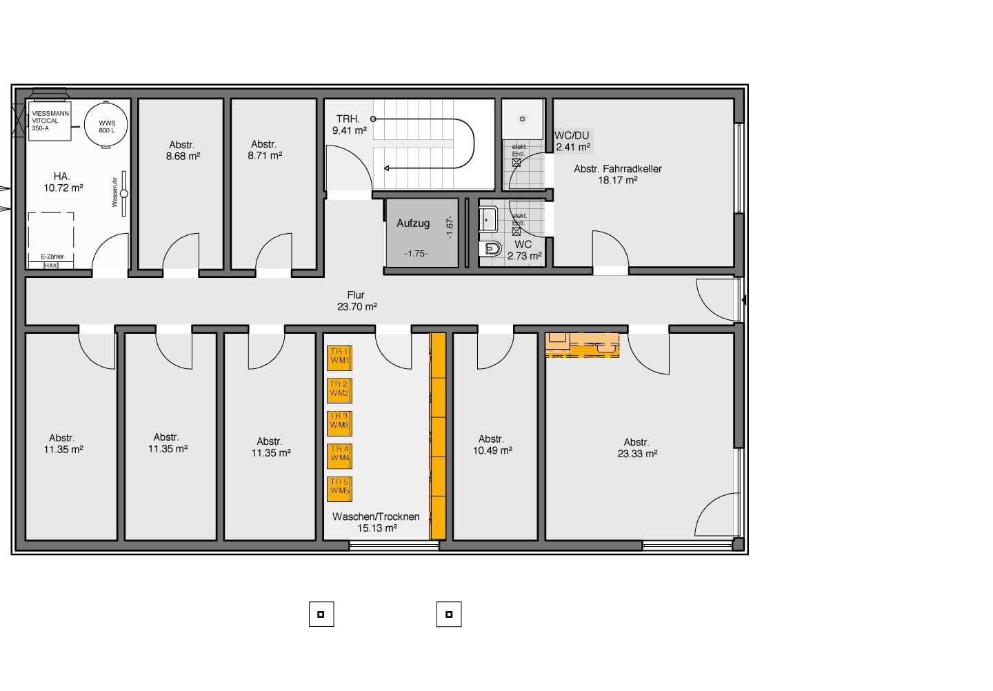
Im Erd- und im 1. Obergeschoss sind jeweils zwei individuell geplante Wohnungen angeordnet. Das Erdgeschoss und das 1. Obergeschoss verfügen jeweils über eine 2-Zimmer Wohnung mit sonnigem Wohn-/ Essbereich, Küche, einem Schlafraum, einem Arbeitszimmer und einem komfortablen Bad. Die zweite Wohnung im Erdgeschoss ist sehr großzügig konzipiert und verfügt über vier Wohnräume, eine separate Küche, ein elegantes Bad und ein Gäste-WC. Im 1. Obergeschoss ist die Grundrissplanung etwas offener gestaltet. Der Kochbereich ist Teil des bodentief verglasten Wohn- und Esszimmers. Die Ankleide, das Bad und der Schlafbereich gehen fließend ineinander über. Ein Arbeitszimmer, das Gäste-WC und der sonnige Balkon machen die exklusive Wohnung komplett. Im 2. Obergeschoss ist eine Zweigenerationen-Wohnung vorgesehen, mit einer traumhaften Dachterrrasse als Highlight. Die Hauptwohnung verfügt über drei Zimmer, eine teiloffene Küche, einen großen Wohn-/ Essbereich und ein Bad. Die  angegliederte, kleinere Wohneinheit besteht aus einem Wohn-/ Kochbereich, einem Schlafzimmer und einem Bad. Für alle Bewohner befinden sich im Kellergeschoss die entsprechenden Abstellräume, ein Fahrradkeller, ein Wasch- und Trockenraum und die haustechnischen Einrichtungen.

Hausdaten

Bauweise Icon
BauweiseHolz-Tafelbau
Baustil Icon
BaustilStadtvillen
Fassade Icon
FassadePutz
Außenmaße Icon
Außenmaße18 m x 11.5 m
Wohnfläche Icon
Wohnfläche630 m²
Dachform Icon
DachformWalm-/Zeltdach
Energiestandard Icon
EnergiestandardEffizienzhaus 40
Immobilientyp Icon
ImmobilientypPlanungsidee
Dachneigung Icon
Dachneigung22°
Kniestock Icon
Kniestock0.14 m
Hauseigenschaften Icon
HauseigenschaftenGästezimmer
Hausdämmstoff Icon
HausdämmstoffMineralfaser (Glaswolle, Steinwolle)
Heizungsart Icon
HeizungsartWärmepumpe (Luft, Wasser, oder beides)
Pfeil nach unten linksWir schaffen Platz für Ihre Träume

Grundriss

no description
Mehrfamilienhaus Stadtvilla Grundriss (Keller)
no description
Mehrfamilienhaus Stadtvilla Grundriss (EG)
no description
Mehrfamilienhaus Stadtvilla Grundriss (OG)
no description
Mehrfamilienhaus Stadtvilla Grundriss (DG)

Unser Team vor Ort

Paul LeggeFachberater*in bei Büdenbender Hausbau
Default Avatar
Wir beraten Sie gerne!Arrow Icon

Kataloge

Büdenbender Hausbau: Hauskatalog
Büdenbender Hausbau

Büdenbender Hausbau: Hauskatalog


House and TreeParksHouse and PinMusterhausHouse on HandAnbieter