1. AnbieterArrow Icon
  2. Büdenbender HausbauArrow Icon
  3. Mehrfamilienhaus in modernem Design
Slide 1
Slide 2
no description
Büdenbender HausbauMehrfamilienhaus in modernem Design
homeKlassische Familienhäuser
livingArea902 m²
energyStandardEffizienzhaus 40
Preis anfragen
Katalog bestellen

Mehrfamilienhaus in modernem Design

Facettenreich und im zukunftsorientierten Design

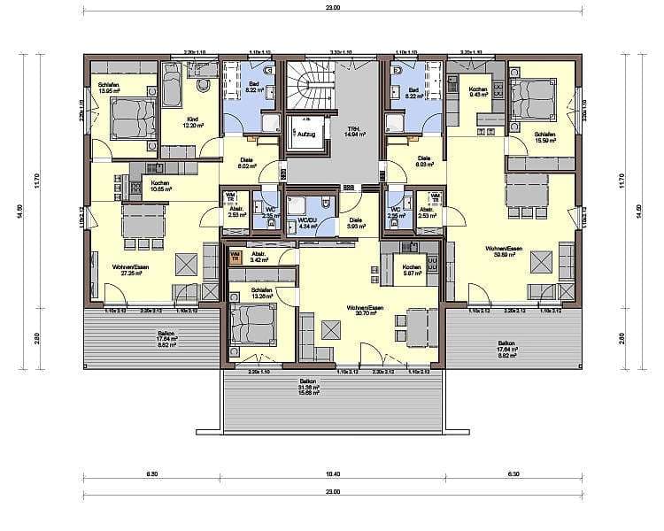
Für ganz viel Leben gemacht: Das Mehrfamilienhaus Cervino VI bietet auf drei Stockwerken Platz für 8 Wohneinheiten. Schon von außen beeindruckt das Haus mit einer modern-eleganten Architektur und einer farblich akzentuierten Fassadengestaltung. Durch die bodentiefen Glasfronten strömt viel Tageslicht in jede einzelne Wohnung. Im Cervino VI ist für fast jeden Bedarf das Passende dabei: Die 8 Wohneinheiten sind unterschiedlich groß und bieten zwischen 68,80 m2 und 108,80 m2 Wohnfläche. Jede der Zwei- bzw. Drei-Zimmer-Wohnungen hat einen Balkon oder eine Terrasse – Entspannen an der frischen Luft ist also inklusive. Besonderen Komfort bietet ein Aufzug, mit dem jede Etage mühelos erreicht werden kann – gerade im Alter, mit Kinderwagen, bei eingeschränkter Mobilität oder auch beim Transport der Einkäufe eine bequeme Angelegenheit.

Hausdaten

Hausart Icon
HausartObjektbau
Bauweise Icon
BauweiseHolz-Tafelbau
Baustil Icon
BaustilKlassische Familienhäuser
Fassade Icon
FassadePutz
Außenmaße Icon
Außenmaße14.5 m x 23 m
Wohnfläche Icon
Wohnfläche901.86 m²
Dachform Icon
DachformVersetztes Pultdach
Energiestandard Icon
EnergiestandardEffizienzhaus 40
Immobilientyp Icon
ImmobilientypPlanungsidee
Dachneigung Icon
Dachneigung12°
Hauseigenschaften Icon
HauseigenschaftenGästezimmer
Hausdämmstoff Icon
HausdämmstoffMineralfaser (Glaswolle, Steinwolle)
Heizungsart Icon
HeizungsartWärmepumpe (Luft, Wasser, oder beides)
Pfeil nach unten linksWir schaffen Platz für Ihre Träume

Grundriss

no description
Mehrfamilienhaus in modernem Design Grundriss (EG)
no description
Mehrfamilienhaus in modernem Design Grundriss (OG)
no description
Mehrfamilienhaus in modernem Design Grundriss (DG)

Unser Team vor Ort

Paul LeggeFachberater*in bei Büdenbender Hausbau
Default Avatar
Wir beraten Sie gerne!Arrow Icon

Kataloge

Büdenbender Hausbau: Hauskatalog
Büdenbender Hausbau

Büdenbender Hausbau: Hauskatalog


House and TreeParksHouse and PinMusterhausHouse on HandAnbieter