1. AnbieterArrow Icon
  2. Büdenbender HausbauArrow Icon
  3. Jedermann XL - darf es etwas größer sein?
no description
no description
Büdenbender HausbauJedermann XL - darf es etwas größer sein?
homeKlassische Familienhäuser
livingArea154 m²
energyStandardEffizienzhaus 40
Preis anfragen
Katalog bestellen

Jedermann XL - darf es etwas größer sein?

Der große Bruder unseres Bestsellers Jedermann - jetzt mit noch mehr Wohnraum!

Jetzt mit noch mehr Wohnraum zum besten Preis-Leistungsverhältnis! Die XL-Variante kommt auf über 166m² Grundfläche. Dank optimierter Grunrissgestaltung, effizienter Konstruktion und Planung können wir das Jedermann XL zu attraktiven Konditionen anbieten.

Wodurch zeichnet sich ein Jedermann®-Haus aus?

Unsere Jedermann®-Häuser sind bereits profes­sionell vorgeplant und besonders effi­zient konstruiert, bieten Ihnen aber gleichzeitig zu 100 % die bewährt hohe Büden­bender-Qualität sowie Freiraum für indi­viduelle Gestaltung und Ausstattung. Sie können sich zwischen drei Hausvarianten ent­schei­den und es stehen Ihnen zwei verschiedene Grundrisse sowie zahlreiche weitere Ausstattungs­möglichkeiten zur Auswahl.
Träumen Sie nicht länger Ihr Haus, bauen Sie es!

Hausdaten

Hausart Icon
HausartEinfamilienhaus
Bauweise Icon
BauweiseHolz-Tafelbau
Anzahl Räume Icon
Anzahl Räume7
Baustil Icon
BaustilKlassische Familienhäuser
Fassade Icon
FassadePutz
Außenmaße Icon
Außenmaße11 m x 9.5 m
Wohnfläche Icon
Wohnfläche154 m²
Dachform Icon
DachformSattel-/Giebeldach
Energiestandard Icon
EnergiestandardEffizienzhaus 40
Immobilientyp Icon
ImmobilientypPlanungsidee
Dachneigung Icon
Dachneigung35°
Kniestock Icon
Kniestock1.5 m
Hauseigenschaften Icon
HauseigenschaftenGästezimmer
Hausdämmstoff Icon
HausdämmstoffMineralfaser (Glaswolle, Steinwolle)
Heizungsart Icon
HeizungsartWärmepumpe (Luft, Wasser, oder beides)
Pfeil nach unten linksWir schaffen Platz für Ihre Träume

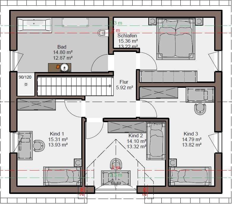
Grundriss

no description
Jedermann XL - darf es etwas größer sein? Grundriss (EG)
no description
Jedermann XL - darf es etwas größer sein? Grundriss (DG)

Kataloge

Büdenbender Hausbau: Hauskatalog
Büdenbender Hausbau

Büdenbender Hausbau: Hauskatalog


House and TreeParksHouse and PinMusterhausHouse on HandAnbieter