1. AnbieterArrow Icon
  2. Büdenbender HausbauArrow Icon
  3. Jedermann -klassik-
Jedermann -klassik-
no description
Büdenbender HausbauJedermann -klassik-
homeKlassische Familienhäuser
livingArea123 m²
energyStandardEffizienzhaus 40
Preis anfragen
Katalog bestellen

Jedermann -klassik-

Die neue Hausmarke von Büdenbender

Hell und geradlinig - so präsentiert sich unser Jedermann -klassik-. Bodentiefe Fenster lassen viel Licht in den Wohn/Essbereich hinein. Der hochwertige weiße Kratzputz bietet in Verbindung mit dunklen Dachuntersichten einen harmonischen Kontrast. Die weißen Fenster und Haustürelemnte verleihen dem Haus ein hell-freundliches Erscheinungsbild.

Hausdaten

Hausart Icon
HausartEinfamilienhaus
Bauweise Icon
BauweiseHolz-Tafelbau
Anzahl Räume Icon
Anzahl Räume5
Baustil Icon
BaustilKlassische Familienhäuser
Fassade Icon
FassadePutz
Außenmaße Icon
Außenmaße10.5 m x 8.5 m
Wohnfläche Icon
Wohnfläche123.11 m²
Dachform Icon
DachformSattel-/Giebeldach
Energiestandard Icon
EnergiestandardEffizienzhaus 40
Immobilientyp Icon
ImmobilientypPlanungsidee
Dachneigung Icon
Dachneigung35°
Kniestock Icon
Kniestock1.5 m
Hauseigenschaften Icon
HauseigenschaftenTerasse
Heizungsart Icon
HeizungsartWärmepumpe (Luft, Wasser, oder beides)
Pfeil nach unten linksWir schaffen Platz für Ihre Träume

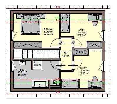
Grundriss

no description
Jedermann -klassik- Grundriss (EG)
no description
Jedermann -klassik- Grundriss (DG)

Kataloge

Büdenbender Hausbau: Hauskatalog
Büdenbender Hausbau

Büdenbender Hausbau: Hauskatalog


House and TreeParksHouse and PinMusterhausHouse on HandAnbieter