1. AnbieterArrow Icon
  2. Büdenbender HausbauArrow Icon
  3. Jedermann Design
Jedermann Design
no description
Büdenbender HausbauJedermann Design
homeKlassische Familienhäuser
livingArea123 m²
energyStandardEffizienzhaus 40
Preis anfragen
Katalog bestellen

Jedermann Design

Die neue Hausmarke von Büdenbender

Ein echtes Statement: Das Jedermann®-Design setzt neue Trends in der Fassaden­gestaltung. Diese ist komplett mit Fassaden­platten verkleidet und gibt dem Haus dadurch ein einzigartiges Erschei­nungs­bild. Das Highlight: die anders­farbigen Fassaden­platten, welche rund um die Terrassen­tür angebracht sind und einen abso­luten Blick­fang darstellen.

Zudem verleihen die erhöhten Giebelwände dem Haus einen zusätzlichen Blickfang.

Hausdaten

Hausart Icon
HausartEinfamilienhaus
Bauweise Icon
BauweiseHolz-Tafelbau
Anzahl Räume Icon
Anzahl Räume5
Baustil Icon
BaustilKlassische Familienhäuser
Fassade Icon
FassadeMaterialkombination
Außenmaße Icon
Außenmaße10.5 m x 8.5 m
Wohnfläche Icon
Wohnfläche123.11 m²
Dachform Icon
DachformSattel-/Giebeldach
Energiestandard Icon
EnergiestandardEffizienzhaus 40
Immobilientyp Icon
ImmobilientypPlanungsidee
Dachneigung Icon
Dachneigung35°
Kniestock Icon
Kniestock1.5 m
Hausdämmstoff Icon
HausdämmstoffMineralfaser (Glaswolle, Steinwolle)
Heizungsart Icon
HeizungsartWärmepumpe (Luft, Wasser, oder beides)
Pfeil nach unten linksWir schaffen Platz für Ihre Träume

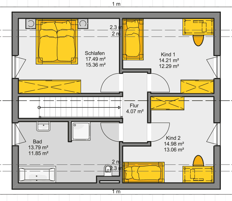
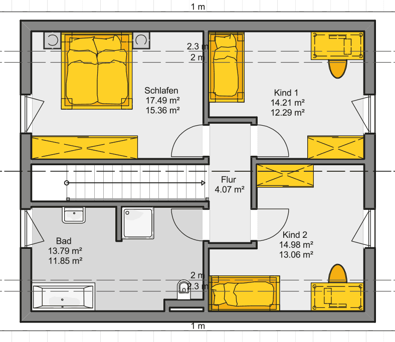
Grundriss

no description
Jedermann Design Grundriss (EG)
no description
Jedermann Design Grundriss (DG)

Kataloge

Büdenbender Hausbau: Hauskatalog
Büdenbender Hausbau

Büdenbender Hausbau: Hauskatalog


House and TreeParksHouse and PinHäuser liveHouse on HandAnbieter