1. AnbieterArrow Icon
  2. Büdenbender HausbauArrow Icon
  3. Fortuna 154
Fortuna 154
no description
Büdenbender HausbauFortuna 154
homeKlassische Familienhäuser
livingArea140 m²
energyStandardEffizienzhaus 40
Preis anfragen
Katalog bestellen

Fortuna 154

Familienfreundlich und modern - Fortuna 154

Moderne Architektur auf cleverem Grundriss mit drei großen Kinderzimmern, einem großzügigem Familienbad und einer Galerie, die zum Spielen, Treffen und Lesen einlädt, zeichnet unser Fertighaus Fortuna aus. Durch den vorgezogenen Rechteck-Erker - durch einen dritten Giebel besonders betont - wird der Wohn- und Essbereich optisch gegliedert.

Hausdaten

Hausart Icon
HausartEinfamilienhaus
Bauweise Icon
BauweiseHolz-Tafelbau
Anzahl Räume Icon
Anzahl Räume6
Baustil Icon
BaustilKlassische Familienhäuser
Fassade Icon
FassadePutz
Außenmaße Icon
Außenmaße10.5 m x 9 m
Wohnfläche Icon
Wohnfläche140.09 m²
Dachform Icon
DachformSattel-/Giebeldach
Energiestandard Icon
EnergiestandardEffizienzhaus 40
Immobilientyp Icon
ImmobilientypPlanungsidee
Dachneigung Icon
Dachneigung38°
Kniestock Icon
Kniestock1 m
Hauseigenschaften Icon
HauseigenschaftenGästezimmer
Hausdämmstoff Icon
HausdämmstoffMineralfaser (Glaswolle, Steinwolle)
Heizungsart Icon
HeizungsartWärmepumpe (Luft, Wasser, oder beides)
Pfeil nach unten linksWir schaffen Platz für Ihre Träume

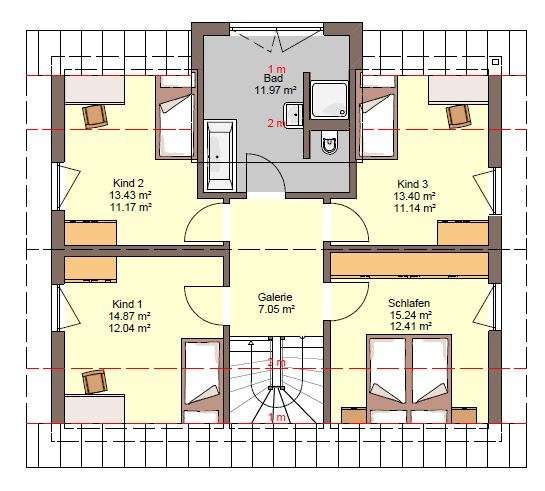
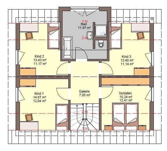
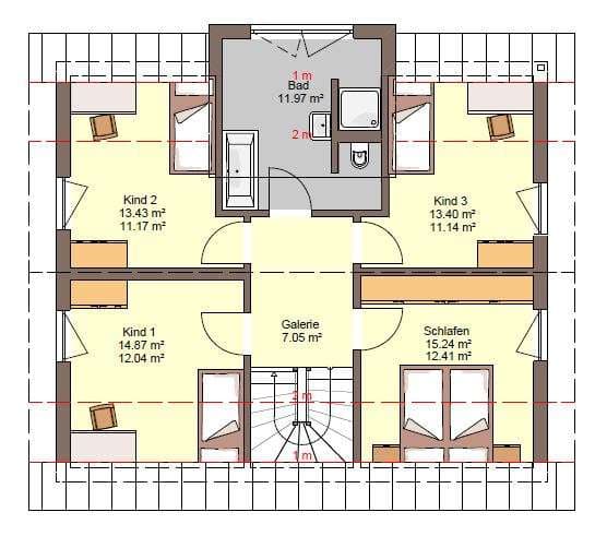
Grundriss

no description
Fortuna 154 Grundriss (EG)
no description
Fortuna 154 Grundriss (DG)

Unser Team vor Ort

Marcus HellwigFachberater*in bei Büdenbender Hausbau
Hellwig_Marcus_200-280.png
Wir beraten Sie gerne!Arrow Icon

Kataloge

Büdenbender Hausbau: Hauskatalog
Büdenbender Hausbau

Büdenbender Hausbau: Hauskatalog


House and TreeParksHouse and PinMusterhausHouse on HandAnbieter